22% off ALL House Plans Sitewide
22% off ALL House Plans Sitewide

House Plan: DFD-10060

See All 28 Photos > (photographs may reflect modified homes)
© copyright by designer
SQ FT
2,577
BEDS
3
BATHS
2.5
STORIES
2
CARS
3
HOUSE PLANS SALE 
START AT  $1,053.00
For questions and help, live chat, email or call us at 877-895-5299
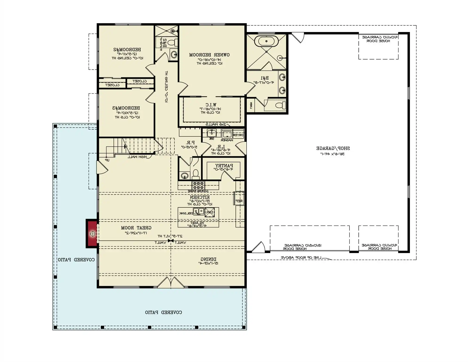
Floor Plans
Click to Zoom In on Floor Plan
 
About House Plan 10060:
House Plan 10060 brings a modern touch to barndominium living with its open, family-friendly layout. Spanning 2,577 square feet over two stories, it includes 3 bedrooms and 2.5 baths, with the option to add a fourth bedroom and bath in the unfinished second floor. The two-story great room, dining area, and gourmet kitchen flow together seamlessly, creating an ideal space for gatherings. The kitchen offers a large island and spacious walk-in pantry with prep space. The private primary suite includes a luxurious bath and walk-in closet, while two additional bedrooms and a three-car garage complete the main floor. The unfinished loft upstairs adds flexibility for future expansion. House Plan 10060 combines space, style, and functionality.
House Plan Pricing
STEP 1 Select Your Package

PDF Single Build


Digital plans emailed to you in PDF format that allows for printing copies and sharing electronically with contractors, subs, decorators, and more. This package includes a license to build the home one time.

PDF Single Build $1,350
Most recommended package

CAD + PDF Single Build


CAD files are a complete set of construction drawings delivered electronically. They can be used for any type of modification—including major design changes and engineering—and include a release granting permission to modify the plan. Most CAD plan orders are emailed the same or next business day.
 
This package also comes with a PDF set of plans and a copyright release for making modifications and printing unlimited copies.
 
CAD files are provided in .dwg format. For details on the specific CAD program used, please refer to the PLAN DETAILS section located above the floor plan on each plan’s page.

CAD + PDF Single Build $2,200
2D electronic editable computer files
STEP 2 Need To Reverse This Plan?
STEP 3 CHOOSE YOUR FOUNDATION
STEP 4 OPTIONAL ADD-ONS
Subtotal:
$1350
FREE SHIPPING
 
Plan Details
See All Details
Finished Square Footage
2,214 Sq. Ft.
Main Level:
363 Sq. Ft.
Upper Level:
2,577 Sq. Ft.
Total:
Room Details
3
Bedrooms:
2
Full Baths:
1
Half Baths:
General House Information
2
Number of Stories:
81' 0"
Width:
69' 6"
Depth:
Single
Dwelling Number:
2nd Floor
Bonus Access:
Unfinished Square Footage
1674 Sq. Ft.
Garage:
793 Sq. Ft.
Porch:
704 Sq. Ft.
Bonus Room:
GARAGE
Front
Garage Location:
3
Garage Size:
Exterior Style
Barndominium
Country
Farmhouse
Modern Farmhouse
Collections
Kitchens
Primary Suites
Open Floor Plan
Outdoor Living
Foundation
Crawlspace
Slab
Framing Information
2x6
Exterior Wall Framing:
Roof Pitch
6/12
Primary:
Insulation (R)
House And Ceiling Heights
10
First Floor Ceiling:
8
Second Floor Ceiling:
28' 1"
Maximum House Height:
Key Features
Attached
Bonus Room
Covered Front Porch
Dining Room
Double Vanity Sink
Fireplace
Front-entry
Kitchen Island
Laundry 1st Fl
Loft / Balcony
L-Shaped
Primary Bdrm Main Floor
Open Floor Plan
Outdoor Living Space
Suited for corner lot
Suited for view lot
Vaulted Great Room/Living
Walk-in Closet
Walk-in Pantry
Wraparound Porch

Our Guarantees

  • Only the highest quality plans
  • Int’l Residential Code Compliant
  • Full structural details on all plans
  • Best plan price guarantee
  • Free modification Estimates
  • Builder-ready construction drawings
  • Expert advice from leading designers
  •  PDFs NOW!™ plans in minutes
  • 100% satisfaction guarantee
  • Free Home Building Organizer