20% off ALL House Plans Sitewide
20% off ALL House Plans Sitewide

House Plan: DFD-11958

See All 19 Photos > (photographs may reflect modified homes)
© copyright by designer
SQ FT
3,556
BEDS
3
BATHS
2.5
STORIES
2
CARS
2
HOUSE PLANS SALE 
START AT  $1,036.00
For questions and help, live chat, email or call us at 877-895-5299
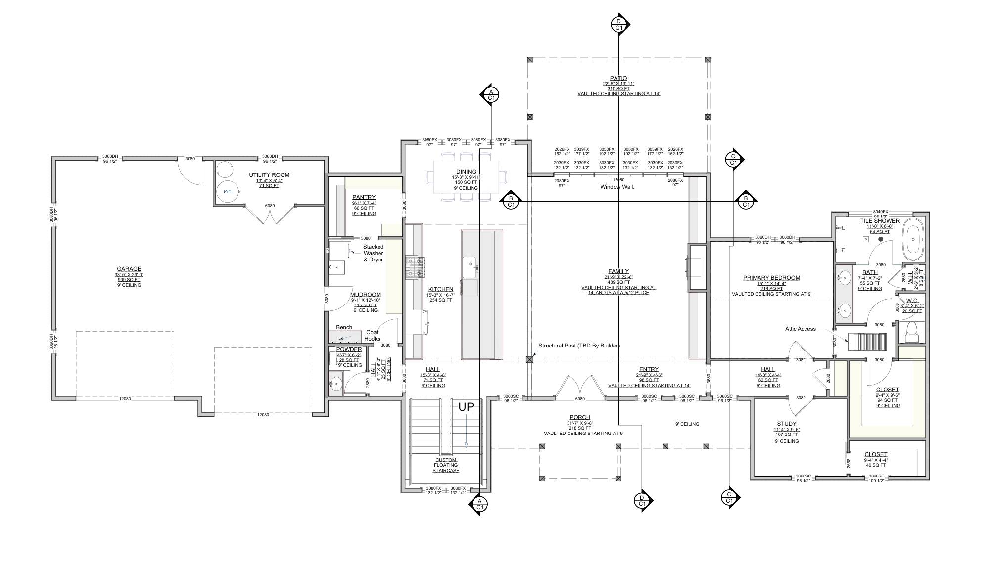
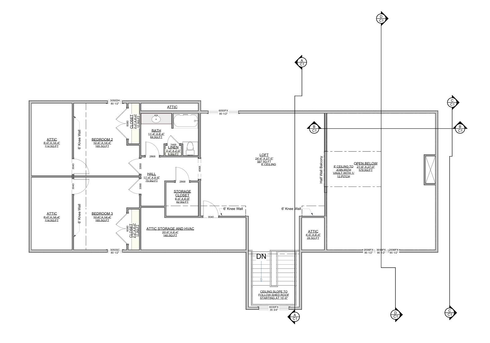
Floor Plans
Click to Zoom In on Floor Plan
 
About House Plan 11958:
This 3,556 heated square foot home is thoughtfully arranged to support easy, welcoming living from the moment you step inside. A vaulted great room forms the heart of the layout, offering an open feel that flows naturally into the dining room and kitchen. The kitchen is well equipped with a butler’s pantry, a large island, and a peninsula eating bar, making it ideal for cooking and gathering. The main-floor primary bedroom provides everyday convenience with a walk-in closet and a relaxing bath that includes a separate tub and shower. Upstairs, a loft adds versatility, while additional bedrooms are arranged in a split layout for privacy. The family room, library/media room, and storage spaces enhance daily comfort, and the mud room keeps things organized. With its covered front porch and generous outdoor living space, this home offers a warm and inviting setting for relaxed and enjoyable living.
House Plan Pricing
STEP 1 Select Your Package

PDF Single Build


Digital plans emailed to you in PDF format that allows for printing copies and sharing electronically with contractors, subs, decorators, and more. This package includes a license to build the home one time.

PDF Single Build $1,295
Most recommended package

PDF Unlimited Build


Digital plans with an unlimited build license emailed in PDF format, that allows for printing copies on a home printer or local print shop and sharing with contractors, subs, decorators and more 

PDF Unlimited Build $1,795
Digital plans including unlimited build license

CAD + PDF Unlimited Build


This plan package is created in AutoCAD and delivered in .DWG format. CAD files are intended for use by design professionals, structural engineers, and builders to update plans for local building codes or to make revisions based on specific needs, lot requirements, and budget considerations. A complimentary PDF copy is included with this package for reference. CAD packages are delivered within 1 to 2 business days.
 
This package also comes with a multi-use building license, granting permission to construct the home an unlimited number of times, along with a copyright release for making revisions and printing unlimited copies.
 
For details on the specific CAD program used, please refer to the PLAN DETAILS section located above the floor plan on each plan page.

CAD + PDF Unlimited Build $2,295
2D electronic editable computer files
STEP 2 Need To Reverse This Plan?
STEP 3 CHOOSE YOUR FOUNDATION
STEP 4 OPTIONAL ADD-ONS
Subtotal:
$1295
FREE SHIPPING
 
Plan Details
See All Details
Finished Square Footage
2,303 Sq. Ft.
Main Level:
1,253 Sq. Ft.
Upper Level:
3,556 Sq. Ft.
Total:
Room Details
3
Bedrooms:
2
Full Baths:
1
Half Baths:
General House Information
2
Number of Stories:
108' 0"
Width:
53' 7"
Depth:
Single
Dwelling Number:
Unfinished Square Footage
980 Sq. Ft.
Garage:
218 Sq. Ft.
Porch:
310 Sq. Ft.
Deck:
GARAGE
Side
Garage Location:
2
Garage Size:
Exterior Style
Contemporary
Modern
Collections
Kitchens
Luxury
Mountain
Open Floor Plan
Split Bedroom
Foundation
Basement
Crawl Space
Daylight Basement
Monolithic Slab
Slab
Stem Wall Slab
Walkout Basement
Framing Information
Stick
Roof Framing:
2x4
Exterior Wall Framing:
Roof Pitch
10/12
Primary:
4/12
Secondary:
Insulation (R)
House And Ceiling Heights
9
First Floor Ceiling:
8
Second Floor Ceiling:
25' 10"
Maximum House Height:
Key Features
Attached
Butler's Pantry
Covered Front Porch
Dining Room
Double Vanity Sink
Family Room
Fireplace
Front-entry
Kitchen Island
Laundry 1st Fl
Library/Media Rm
Loft / Balcony
Primary Bdrm Main Floor
Mud Room
Open Floor Plan
Outdoor Living Space
Peninsula / Eating Bar
Separate Tub and Shower
Split Bedrooms
Storage Space
Suited for corner lot
Vaulted Great Room/Living
Walk-in Closet

Our Guarantees

  • Only the highest quality plans
  • Int’l Residential Code Compliant
  • Full structural details on all plans
  • Best plan price guarantee
  • Free modification Estimates
  • Builder-ready construction drawings
  • Expert advice from leading designers
  •  PDFs NOW!™ plans in minutes
  • 100% satisfaction guarantee
  • Free Home Building Organizer