20% Off House Plans Sitewide Ends Thursday
20% Off House Plans Sitewide Ends Thursday

House Plan: DFD-5515

See All 8 Photos > (photographs may reflect modified homes)
© copyright by designer
SQ FT
3,072
BEDS
4
BATHS
4
STORIES
2
CARS
3
HOUSE PLANS SALE 
START AT  $960.00
For questions and help, live chat, email or call us at 877-895-5299
Floor Plans
Click to Zoom In on Floor Plan
 
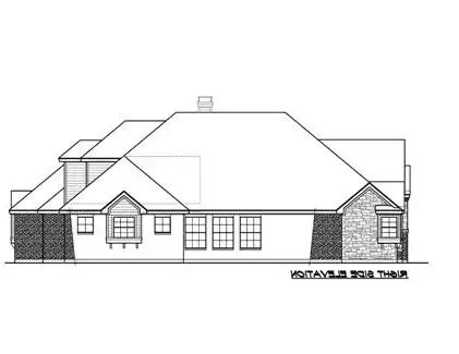
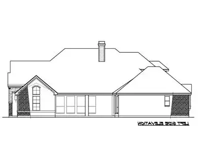
About House Plan 5515:
This lovely luxury European house plan will fit any family's dream.
Reminiscent from days of old, with its carriage lit front porch it's beauty compels you to enter.
This split bedroom plan is perfect for families, in-laws, or guests. The stunning foyer is flanked by a family bedroom with walk-in closet and full bath, or could be converted to a quiet study. Its vaulted ceiling, center fan light, and plenty of windows offer a perfect setting for reading those favorite books proudly displayed on the built-in shelves. A family bedroom with walk-in closet and access to a full bath flanks the opposite side of the foyer. Conveniently located in the front corner is a utility room with built-in ironing board and loads of counter space for folding or adding a sewing machine. Centrally located is the vaulted family room with its warming fireplace and floor-to-ceiling windows to enjoy the landscaped yard! A gourmet kitchen with plenty of counter space will delight any chef, and the pantry will hold all your food staples for ease in preparing meals. An eating bar separates the keeping room from the kitchen. Two garages, a one-car and a two-car sit side-by-side with carriage lights and floods for added security. In the rear of the home is the master suite, boasting trey ceilings and a luxurious master bath with his and hers vanities, separate tub and shower, a large walk-in closet with security room and plenty of built-ins. Upstairs is a game room, and outside you may select landscape lighting, completing this grand home.
House Plan Pricing
STEP 1 Select Your Package

PDF Single Build


Digital plans emailed to you in PDF format that allows for printing copies and sharing electronically with contractors, subs, decorators, and more. This package includes a license to build the home one time.

PDF Single Build $1,200
Most recommended package

5 Printed Sets


Five Printed Sets of Residential Construction Drawings are typically 24” x 36” documents and come with a license to construct a single residence shipped to a physical address. Keep in mind PDF Plan Packages are our most popular choice which allows you to print as many copies as you need and to electronically send files to your builder, subcontractors, etc.

5 Printed Sets $1,800
Five printed sets of house plans

CAD + PDF Single Build


CAD files are a complete set of construction drawings delivered electronically. They can be used for any type of modification—including major design changes and engineering—and include a release granting permission to modify the plan. Most CAD plan orders are emailed the same or next business day.
 
This package also comes with a PDF set of plans and a copyright release for making modifications and printing unlimited copies.
 
CAD files are provided in .dwg format. For details on the specific CAD program used, please refer to the PLAN DETAILS section located above the floor plan on each plan’s page.

CAD + PDF Single Build $1,800
2D electronic editable computer files
STEP 2 Need To Reverse This Plan?
STEP 3 CHOOSE YOUR FOUNDATION
STEP 4 OPTIONAL ADD-ONS
Subtotal:
$1200
FREE SHIPPING
 
Plan Details
See All Details
Finished Square Footage
2,803 Sq. Ft.
Main Level:
269 Sq. Ft.
Upper Level:
3,072 Sq. Ft.
Total:
Room Details
4
Bedrooms:
4
Full Baths:
General House Information
2
Number of Stories:
68' 0"
Width:
75' 0"
Depth:
Single
Dwelling Number:
Unfinished Square Footage
729 Sq. Ft.
Garage:
GARAGE
Rear
Garage Location:
3
Garage Size:
Exterior Style
European
Traditional
Collections
Luxury
Old House Classics
Foundation
Crawlspace
Slab
Framing Information
Stick
Roof Framing:
2x4
Exterior Wall Framing:
Roof Pitch
10
Primary:
Insulation (R)
0
Exterior Wall:
0
Interior Wall:
0
Ceiling:
0
Floor:
House And Ceiling Heights
10
First Floor Ceiling:
9
Second Floor Ceiling:
29' 0"
Maximum House Height:
Key Features
Attached
Covered Front Porch
Dining Room
Fireplace
Foyer
Front Porch
Primary Bdrm Main Floor
Slab

Our Guarantees

  • Only the highest quality plans
  • Int’l Residential Code Compliant
  • Full structural details on all plans
  • Best plan price guarantee
  • Free modification Estimates
  • Builder-ready construction drawings
  • Expert advice from leading designers
  •  PDFs NOW!™ plans in minutes
  • 100% satisfaction guarantee
  • Free Home Building Organizer