15% off ALL House Plans Sitewide
15% off ALL House Plans Sitewide

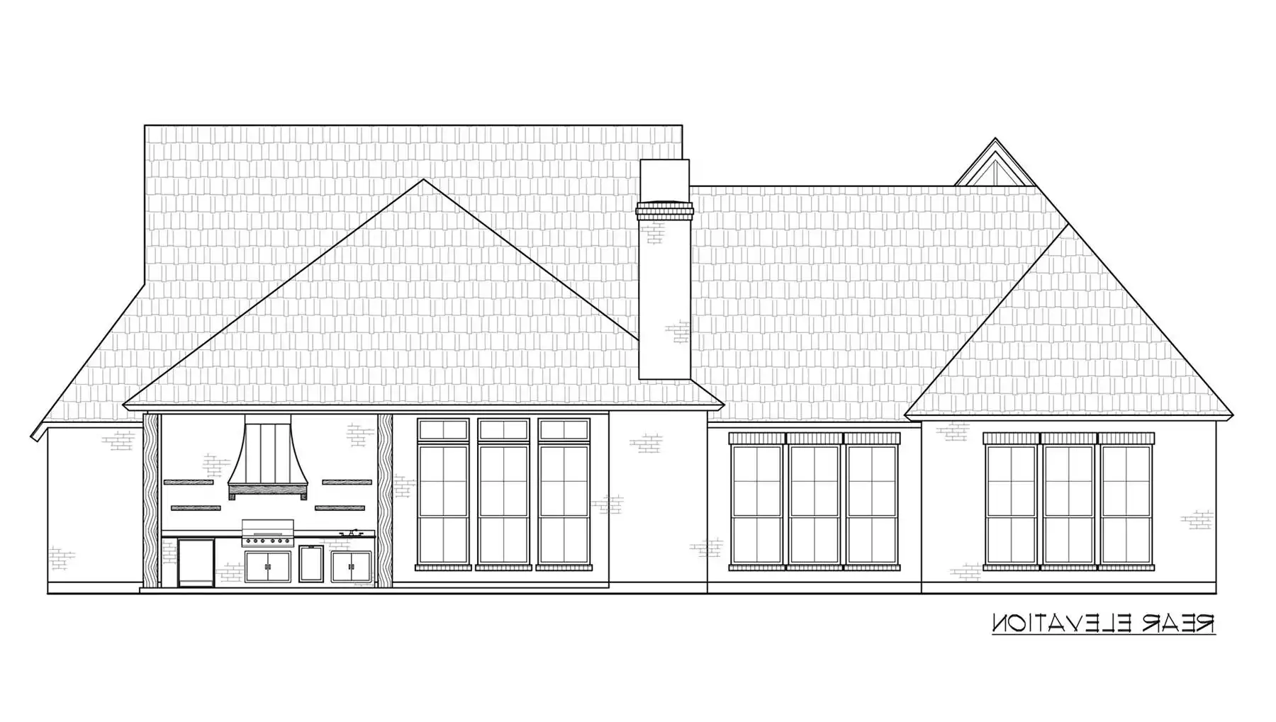
House Plan: DFD-5916

See All 16 Photos > (photographs may reflect modified homes)
© copyright by designer
SQ FT
2,768
BEDS
4
BATHS
3.5
STORIES
1
CARS
2
HOUSE PLANS SALE 
START AT  $1,143.25
For questions and help, live chat, email or call us at 877-895-5299
Floor Plans
Click to Zoom In on Floor Plan
 
About House Plan 5916:
Welcome to the charm of country living with a modern twist. This stunning one story Transitional Farmhouse with 2,768 square feet blends a rustic aesthetic with contemporary amenities.  With four large bedrooms that are separated from the main bedroom for privacy so everyone will have their own personal space in this house. The open-concept living area, where the kitchen, dining area, and family room easily combine into a warm and inviting gathering zone, is the focal point of this entire home. Equipped with modern amenities and a spacious island, the chef-inspired kitchen makes meal prep easy. Throughout the home, you'll appreciate the attention to detail, from the charming fireplace in the family room to the convenient mudroom off the garage. Experience the serene beauty and modern comforts of this Country Farmhouse plan.
House Plan Pricing
STEP 1 Select Your Package

PDF Single Build


Digital plans emailed to you in PDF format that allows for printing copies and sharing electronically with contractors, subs, decorators, and more. This package includes a license to build the home one time.

PDF Single Build $1,345
Most recommended package

5 Printed Sets + PDF


Includes 5 physical printed blueprint sets, shipped free via UPS within the U.S. Printed sets ship within 1 business day and are delivered within 3 – 5 business days. A complimentary PDF plan set is also emailed within 1 business day for easy sharing and local printing. These plans may be used to construct one home.

5 Printed Sets + PDF $1,645
5 Printed Sets + PDF

PDF Unlimited Build


Digital plans with an unlimited build license emailed in PDF format, that allows for printing copies on a home printer or local print shop and sharing with contractors, subs, decorators and more 

PDF Unlimited Build $2,045
Digital plans including unlimited build license

CAD + PDF Unlimited Build


This plan package is created in AutoCAD and delivered in .DWG format. CAD files are intended for use by design professionals, structural engineers, and builders to update plans for local building codes or to make revisions based on specific needs, lot requirements, and budget considerations. A complimentary PDF copy is included with this package for reference. CAD packages are delivered within 1 to 2 business days.
 
This package also comes with a multi-use building license, granting permission to construct the home an unlimited number of times, along with a copyright release for making revisions and printing unlimited copies.
 
For details on the specific CAD program used, please refer to the PLAN DETAILS section located above the floor plan on each plan page.

CAD + PDF Unlimited Build $2,845
2D electronic editable computer files
STEP 2 Need To Reverse This Plan?
STEP 3 CHOOSE YOUR FOUNDATION
STEP 4 OPTIONAL ADD-ONS
Subtotal:
$1345
FREE SHIPPING
 
Plan Details
See All Details
Finished Square Footage
2,768 Sq. Ft.
Main Level:
2,768 Sq. Ft.
Total:
Room Details
4
Bedrooms:
3
Full Baths:
1
Half Baths:
General House Information
1
Number of Stories:
67' 9"
Width:
92' 2"
Depth:
Single
Dwelling Number:
2nd Floor
Bonus Access:
Unfinished Square Footage
716 Sq. Ft.
Garage:
754 Sq. Ft.
Porch:
452 Sq. Ft.
Bonus Room:
GARAGE
Front
Garage Location:
2
Garage Size:
Exterior Style
Country
Farmhouse
Modern Farmhouse
Transitional
Collections
Kitchens
Primary Suites
Mountain
North Carolina
Open Floor Plan
Outdoor Living
Split Bedroom
Tennessee
Texas
Foundation
Basement Foundation
Crawl Space
Slab
Framing Information
Stick
Roof Framing:
2x4
Exterior Wall Framing:
Roof Pitch
9:12
Primary:
14:12
Secondary:
Insulation (R)
House And Ceiling Heights
10
First Floor Ceiling:
9
Second Floor Ceiling:
26' 6"
Maximum House Height:
Key Features
Bonus Room
Courtyard/Motorcourt Entry
Covered Front Porch
Covered Rear Porch
Dining Room
Double Vanity Sink
Fireplace
Foyer
Front-entry
Great Room
Kitchen Island
Laundry 1st Fl
Primary Bdrm Main Floor
Mud Room
Open Floor Plan
Outdoor Kitchen
Outdoor Living Space
Peninsula / Eating Bar
Separate Tub and Shower
Split Bedrooms
Storage Space
Suited for view lot
Vaulted Great Room/Living
Walk-in Closet
Walk-in Pantry

Our Guarantees

  • Only the highest quality plans
  • Int’l Residential Code Compliant
  • Full structural details on all plans
  • Best plan price guarantee
  • Free modification Estimates
  • Builder-ready construction drawings
  • Expert advice from leading designers
  •  PDFs NOW!™ plans in minutes
  • 100% satisfaction guarantee
  • Free Home Building Organizer

See terms opt out anytime