20% off ALL House Plans Sitewide
20% off ALL House Plans Sitewide

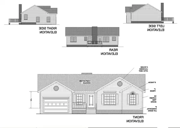
House Plan: DFD-6270

See All 2 Photos > (photographs may reflect modified homes)
© copyright by designer
SQ FT
997
BEDS
3
BATHS
2
STORIES
1
CARS
2
HOUSE PLANS SALE 
START AT  $836.00
For questions and help, live chat, email or call us at 877-895-5299
Floor Plans
Click to Zoom In on Floor Plan
 
About House Plan 6270:
This delightful ranch is the ideal starter home. The "bedrooms-together" plan is perfect for the new family. Careful design provide full-features and spacious rooms while remaining an economical 997 square feet.

The inviting front porch is the focal point of this attractive home. A surprising 14'x20' vaulted family room provides plenty of living area. The open breakfast room may be enlarged with an optional bay window. The galley kitchen is brightened by two windows. The washer and dryer may be placed in the large 1-1/2 car garage or enclosed in the optional laundry room. The master suite features a full bath and a large walk-in closet. A spacious bath off the hallway serves the two secondary bedrooms.

House Plan Pricing
STEP 1 Select Your Package

PDF Bid Set


Home plans stamped "NOT FOR CONSTRUCTION" for cost estimating and bidding purposes only; a minimum 5 set plan package must be purchased within 90 days for a license to build plan set; a credit will be applied towards your house plan upgrade

PDF Bid Set $745
Immediate Delivery!
Digital set of plans for bidding purposes only

PDF Single Build


Digital plans emailed to you in PDF format that allows for printing copies and sharing electronically with contractors, subs, decorators, and more. This package includes a license to build the home one time.

PDF Single Build $1,045
Immediate Delivery!
Most recommended package

5 Printed Sets


Five Printed Sets of Residential Construction Drawings are typically 24” x 36” documents and come with a license to construct a single residence shipped to a physical address. Keep in mind PDF Plan Packages are our most popular choice which allows you to print as many copies as you need and to electronically send files to your builder, subcontractors, etc.

5 Printed Sets $1,045
Five printed sets of house plans

8 Printed Sets


Eight Printed Sets of Construction Drawings, typically 24” x 36” documents, with a license to construct a single residence shipped to your physical address. PDF Plan Packages are our most popular choice which allows you to print as many copies as you need and to electronically send files to your builder, subcontractors, bank/mortgage reps, material stores, decorators and more.

8 Printed Sets $1,195
Eight printed sets of house plans

CAD + PDF Single Build


CAD files are a complete set of construction drawings delivered electronically. They can be used for any type of modification—including major design changes and engineering—and include a release granting permission to modify the plan. Most CAD plan orders are emailed the same or next business day.
 
This package also comes with a PDF set of plans and a copyright release for making modifications and printing unlimited copies.
 
CAD files are provided in .dwg format. For details on the specific CAD program used, please refer to the PLAN DETAILS section located above the floor plan on each plan’s page.

CAD + PDF Single Build $1,495
2D electronic editable computer files
STEP 2 CHOOSE YOUR FOUNDATION
STEP 3 OPTIONAL ADD-ONS
Subtotal:
$1045
FREE SHIPPING
 
Plan Details
See All Details
Finished Square Footage
997 Sq. Ft.
Main Level:
997 Sq. Ft.
Total:
Room Details
3
Bedrooms:
2
Full Baths:
General House Information
1
Number of Stories:
49' 6"
Width:
33' 6"
Depth:
Single
Dwelling Number:
None
Bonus Access:
Unfinished Square Footage
GARAGE
Front
Garage Location:
2
Garage Size:
Exterior Style
Cottage
Country
Ranch
Traditional
Collections
Affordable
Budget
Empty Nester
First Home
Old House Classics
Foundation
Crawl Space
Slab Foundation
Framing Information
Truss
Roof Framing:
2x4
Exterior Wall Framing:
Roof Pitch
7/12
Primary:
Roof Load
30
Live:
90
Wind:
Insulation (R)
21
Exterior Wall:
0
Interior Wall:
38
Ceiling:
25
Floor:
House And Ceiling Heights
9
First Floor Ceiling:
16' 0"
Maximum House Height:
Key Features
Attached
Crawlspace
Front Porch
Front-entry
Slab

Our Guarantees

  • Only the highest quality plans
  • Int’l Residential Code Compliant
  • Full structural details on all plans
  • Best plan price guarantee
  • Free modification Estimates
  • Builder-ready construction drawings
  • Expert advice from leading designers
  •  PDFs NOW!™ plans in minutes
  • 100% satisfaction guarantee
  • Free Home Building Organizer