House Plan: DFD-9769

See All 14 Photos > (photographs may reflect modified homes)
© copyright by designer
SQ FT
3,165
BEDS
4
BATHS
4.5
STORIES
1
CARS
3
PLANS FROM $2,475
For questions and help, live chat, email or call us at 877-895-5299
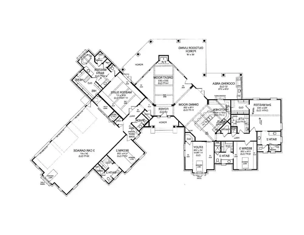
Floor Plans
Click to Zoom In on Floor Plan
 
About House Plan 9769:
Welcome to this 3,165 sf, 4 bedroom, 4 1/2 bath contemporary farmhouse.  This beautiful home is warm and inviting and beckons you to step inside.  The curb appeal is undeniable with the siding and stacked stone.  All on one level, this beautiful home is both luxurious and comfortable with ample space for the entire family.  As you walk through the front door into the foyer, you are immediately greeted with an expansive view of the dining room and kitchen to your left and the beautiful great room with fireplace feature wall, large windows leading to the outdoor living porch.  Dual master suites makes this home an impressive and comfortable space for a multi-generational family to live under one roof.  The main master suite on the right side of the home includes beautiful 11' tray ceilings, large his/hers walk-in closet with dressing area, and a sumptuous ensuite bath with dual vanities, private water closet, soaking tub and walk in shower.  Master suite #2 is located on the left side of the home and boasts a lovely cathedral ceiling, large walk in closet, and dual vanities in the ensuite bath.  Also located on this side of the house is a comfortable and cozy bedroom 3 with private bath and the study with 11' tray ceiling.  Laundry room, storage, mechanical room and the pantry are all located in this area.  The outdoor living off the great room and dining room areas is a wonderful place for entertaining.  The Outdoor kitchen area is perfect for treating your guests to the gourmet meals being made in this beautiful space.  This home is a wonderful place for relaxation, entertainment and comfort. 
House Plan Pricing
STEP 1 Select Your Package

PDF Bid Set


Home plans stamped "NOT FOR CONSTRUCTION" for cost estimating and bidding purposes only; a minimum 5 set plan package must be purchased within 90 days for a license to build plan set; a credit will be applied towards your house plan upgrade

PDF Bid Set $1,500
Immediate Delivery!
Digital set of plans for bidding purposes only

PDF Single Build


Digital plans emailed to you in PDF format that allows for printing copies and sharing electronically with contractors, subs, decorators, and more. This package includes a license to build the home one time.

PDF Single Build $2,475
Immediate Delivery!
Most recommended package

PDF + MOD License Single Build


Digital plans emailed to you in PDF format that allows for printing copies and sharing electronically with contractors, subs, decorators, and more. This package includes a modification license to build the home one time.
PDF + MOD License Single Build $3,595
Immediate Delivery!
PDF + MOD License Single Build

CAD + PDF Single Build


This plan package is created in AutoCAD and delivered in .DWG format. CAD files are intended for use by design professionals, structural engineers, and builders to update plans for local building codes or to make revisions based on specific needs, lot requirements, and budget considerations. A complimentary PDF copy is included with this package for reference. CAD packages are delivered within 1 to 2 business days.
 
This package also comes with a copyright release for making revisions and printing unlimited copies.

For details on the specific CAD program used, please refer to the PLAN DETAILS section located above the floor plan on each plan page.

CAD + PDF Single Build $3,900
2D electronic editable computer files
STEP 2 Need To Reverse This Plan?
STEP 3 CHOOSE YOUR FOUNDATION
STEP 4 OPTIONAL ADD-ONS
Subtotal:
$2475
FREE SHIPPING
 
Plan Details
See All Details
Finished Square Footage
3,165 Sq. Ft.
Main Level:
3,165 Sq. Ft.
Total:
Room Details
4
Bedrooms:
4
Full Baths:
1
Half Baths:
General House Information
1
Number of Stories:
123'
Width:
76'
Depth:
Single
Dwelling Number:
Unfinished Square Footage
1066 Sq. Ft.
Garage:
910 Sq. Ft.
Porch:
GARAGE
Side
Garage Location:
3
Garage Size:
Exterior Style
Farmhouse
Lake
Modern Farmhouse
Ranch
Collections
Exclusive
Kitchens
Primary Suites
Mountain
Open Floor Plan
OtherCustom
Outdoor Living
Split Bedroom
Texas
Foundation
Basement
Crawl Space
Daylight Basement
Slab
Framing Information
Stick
Roof Framing:
2x4
Exterior Wall Framing:
Insulation (R)
House And Ceiling Heights
10
First Floor Ceiling:
Key Features
2 Primary Suites
Attached
Covered Front Porch
Covered Rear Porch
Dining Room
Double Vanity Sink
Fireplace
Foyer
Great Room
His and Hers Primary Closets
Kitchen Island
Laundry 1st Fl
Library/Media Rm
Primary Bdrm Main Floor
Mud Room
Open Floor Plan
Outdoor Kitchen
Outdoor Living Space
Peninsula / Eating Bar
Rear-entry
Separate Tub and Shower
Split Bedrooms
Suited for view lot
Walk-in Closet
Walk-in Pantry
Wraparound Porch

Our Guarantees

  • Only the highest quality plans
  • Int’l Residential Code Compliant
  • Full structural details on all plans
  • Best plan price guarantee
  • Free modification Estimates
  • Builder-ready construction drawings
  • Expert advice from leading designers
  •  PDFs NOW!™ plans in minutes
  • 100% satisfaction guarantee
  • Free Home Building Organizer