15% off ALL House Plans Sitewide
15% off ALL House Plans Sitewide

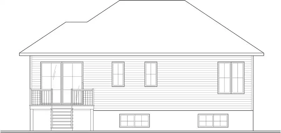
House Plan: DFD-10002

See All 2 Photos > (photographs may reflect modified homes)
© copyright by designer
SQ FT
1,204
BEDS
1
BATHS
1
STORIES
1
CARS
0
HOUSE PLANS SALE 
START AT  $1,406.75
For questions and help, live chat, email or call us at 877-895-5299
Floor Plans
Click to Zoom In on Floor Plan
 
About House Plan 10002:
House Plan 10002 is a cozy ranch-style home offering 1,204 square feet of thoughtfully designed one-level living, perfect for empty nesters or downsizers. This one-bedroom, one-bathroom layout features a spacious primary suite with a spa-like ensuite, an inviting fireplace, a dedicated dining area, and an L-shaped kitchen with a large island and bar seating. Designed for comfort and efficiency, it also offers an optional finished basement with three additional bedrooms, a full bathroom, a second family room, laundry, and ample storage—ideal for guests, family, or future flexibility.
House Plan Pricing
STEP 1 Select Your Package

PDF Single Build


Digital plans emailed to you in PDF format that allows for printing copies and sharing electronically with contractors, subs, decorators, and more. This package includes a license to build the home one time.

PDF Single Build $1,655
Most recommended package

3 Printed Sets + PDF


Includes 3 physical printed blueprint sets, shipped free via UPS within the U.S. Printed sets ship within 1 business day and are delivered within 3 – 5 business days. A complimentary PDF plan set is also emailed within 1 business day for easy sharing and local printing. These plans may be used to construct one home.

3 Printed Sets + PDF $1,880
3 Printed Sets + PDF

CAD + PDF Single Build


This plan package is created in AutoCAD and delivered in .DWG format. CAD files are intended for use by design professionals, structural engineers, and builders to update plans for local building codes or to make revisions based on specific needs, lot requirements, and budget considerations. A complimentary PDF copy is included with this package for reference. CAD packages are delivered within 1 to 2 business days.
 
This package also comes with a copyright release for making revisions and printing unlimited copies.

For details on the specific CAD program used, please refer to the PLAN DETAILS section located above the floor plan on each plan page.

CAD + PDF Single Build $2,740
2D electronic editable computer files
STEP 2 Need To Reverse This Plan?
STEP 3 CHOOSE YOUR FOUNDATION
STEP 4 OPTIONAL ADD-ONS
Subtotal:
$1655
FREE SHIPPING
Please allow 3-5 business days for delivery of this plan Please check our PDFs NOW collection for plans that can be downloaded and received immediately or live chat us to help you find a similar plan available now.
 
Plan Details
See All Details
Finished Square Footage
1,204 Sq. Ft.
Main Level:
1,204 Sq. Ft.
Lower Level:
1,204 Sq. Ft.
Total:
Room Details
1
Bedrooms:
1
Full Baths:
General House Information
1
Number of Stories:
42' 0"
Width:
30' 0"
Depth:
Single
Dwelling Number:
Unfinished Square Footage
GARAGE
0
Garage Size:
Exterior Style
Country
Craftsman
Farmhouse
Modern Farmhouse
Ranch
Collections
Affordable
Builders
Canada
Empty Nester
First Home
Primary Suites
Open Floor Plan
Rectangular
Foundation
Crawlspace
Finished basement (included)
Floating slab
Monolithic slab
Framing Information
Truss
Roof Framing:
2x6
Exterior Wall Framing:
Roof Pitch
7/12
Primary:
8/12
Gable:
Roof Load
55
Live:
20
Dead:
Insulation (R)
House And Ceiling Heights
9
First Floor Ceiling:
23' 11"
Maximum House Height:
Key Features
Covered Front Porch
Deck
Dining Room
Double Vanity Sink
Family Room
Fireplace
Foyer
Kitchen Island
L-Shaped
Primary Bdrm Main Floor
Mud Room
None
Open Floor Plan
Peninsula / Eating Bar
Separate Tub and Shower
Split Bedrooms
Storage Space
Suited for corner lot
Suited for narrow lot
Walk-in Closet

Our Guarantees

  • Only the highest quality plans
  • Int’l Residential Code Compliant
  • Full structural details on all plans
  • Best plan price guarantee
  • Free modification Estimates
  • Builder-ready construction drawings
  • Expert advice from leading designers
  •  PDFs NOW!™ plans in minutes
  • 100% satisfaction guarantee
  • Free Home Building Organizer