15% off ALL House Plans Sitewide
15% off ALL House Plans Sitewide

House Plan: DFD-10161

See All 12 Photos > (photographs may reflect modified homes)
© copyright by designer
SQ FT
1,174
BEDS
3
BATHS
1
STORIES
1
CARS
0
HOUSE PLANS SALE 
START AT  $1,232.50
For questions and help, live chat, email or call us at 877-895-5299
Floor Plans
Click to Zoom In on Floor Plan
 
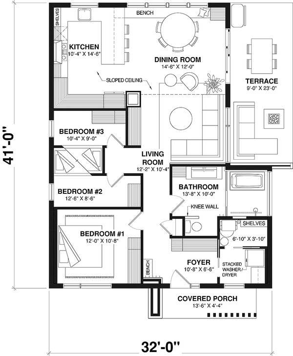
About House Plan 10161:
With 1,174 square feet of heated space, this home provides a practical and family-focused layout featuring 3 bedrooms and 1 bath. An open floor plan connects the family room and dining area, making the space feel open and easy to enjoy. The main-level primary bedroom offers comfort and privacy with a bath that includes a separate tub and shower. Additional bedrooms are well-sized and adaptable for a variety of needs. Convenient first-floor laundry enhances everyday functionality without sacrificing living space. The covered front porch adds charm and offers a relaxing spot to enjoy fresh air. Designed for simplicity and ease, this home is a welcoming option for comfortable everyday living.
House Plan Pricing
STEP 1 Select Your Package

PDF Single Build


Digital plans emailed to you in PDF format that allows for printing copies and sharing electronically with contractors, subs, decorators, and more. This package includes a license to build the home one time.

PDF Single Build $1,450
Most recommended package

3 Printed Sets + PDF


Includes 3 physical printed blueprint sets, shipped free via UPS within the Continental U.S. Printed sets ship within 1 business day and are delivered within 3 – 5 business days. A complimentary PDF plan set is also emailed within 1 business day for easy sharing and local printing. These plans may be used to construct one home.

3 Printed Sets + PDF $1,590
3 Printed Sets + PDF

CAD + PDF Single Build


This plan package is created in AutoCAD and delivered in .DWG format. CAD files are intended for use by design professionals, structural engineers, and builders to update plans for local building codes or to make revisions based on specific needs, lot requirements, and budget considerations. A complimentary PDF copy is included with this package for reference. CAD packages are delivered within 1 to 2 business days.
 
This package also comes with a copyright release for making revisions and printing unlimited copies.

For details on the specific CAD program used, please refer to the PLAN DETAILS section located above the floor plan on each plan page.

CAD + PDF Single Build $2,450
2D electronic editable computer files
STEP 2 Need To Reverse This Plan?
STEP 3 CHOOSE YOUR FOUNDATION
STEP 4 OPTIONAL ADD-ONS
Subtotal:
$1450
FREE SHIPPING
Please allow 3-5 business days for delivery of this plan Please check our PDFs NOW collection for plans that can be downloaded and received immediately or live chat us to help you find a similar plan available now.
 
Plan Details
See All Details
Finished Square Footage
1,174 Sq. Ft.
Main Level:
1,174 Sq. Ft.
Total:
Room Details
3
Bedrooms:
1
Full Baths:
General House Information
1
Number of Stories:
32' 0"
Width:
41' 0"
Depth:
Single
Dwelling Number:
Unfinished Square Footage
54 Sq. Ft.
Front Porch:
GARAGE
0
Garage Size:
Exterior Style
Bungalow
Contemporary
Mid-Century Modern
Collections
Accessible
Affordable
Canada
Open Floor Plan
Foundation
Crawlspace
Floating slab (included)
Monolithic slab
Framing Information
Truss
Roof Framing:
2x6
Exterior Wall Framing:
Roof Pitch
4
Primary:
Insulation (R)
House And Ceiling Heights
9
First Floor Ceiling:
17' 10"
Maximum House Height:
Key Features
Covered Front Porch
Dining Room
Family Room
Family Style
Laundry 1st Fl
Primary Bdrm Main Floor
Open Floor Plan
Separate Tub and Shower
Suited for corner lot

Our Guarantees

  • Only the highest quality plans
  • Int’l Residential Code Compliant
  • Full structural details on all plans
  • Best plan price guarantee
  • Free modification Estimates
  • Builder-ready construction drawings
  • Expert advice from leading designers
  •  PDFs NOW!™ plans in minutes
  • 100% satisfaction guarantee
  • Free Home Building Organizer