20% off ALL House Plans Sitewide

House Plan: DFD-10401

See All 6 Photos > (photographs may reflect modified homes)
© copyright by designer
SQ FT
1,853
BEDS
3
BATHS
2
STORIES
2
CARS
2
HOUSE PLANS SALE 
START AT  $1,379.20
For questions and help, live chat, email or call us at 877-895-5299
Floor Plans
Click to Zoom In on Floor Plan
 
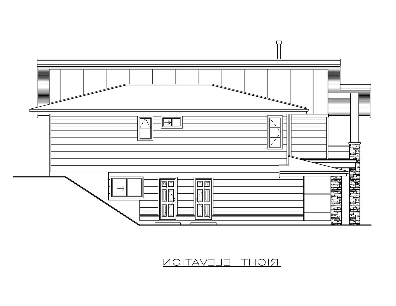
About House Plan 10401:
House Plan 10401 is a modern two-story design with 1,853 square feet of smart, flexible living space. The ground floor offers the option for a future secondary suite complete with its own kitchen, full bath, bedroom, and flex room—perfect for rental income or multigenerational living. The main living area is located upstairs and includes three bedrooms, an open-concept kitchen and dining area with a large island and L-shaped layout, a separate great room with a fireplace, and both front and rear covered outdoor spaces. A two-car garage rounds out this stylish and functional modern home.
House Plan Pricing
STEP 1 Select Your Package

PDF Single Build


Digital plans emailed to you in PDF format that allows for printing copies and sharing electronically with contractors, subs, decorators, and more. This package includes a license to build the home one time.

PDF Single Build $1,724
Most recommended package

5 Printed Sets + PDF


Includes 5 physical printed blueprint sets, shipped free via UPS within the U.S. Printed sets ship within 1 business day and are delivered within 3 – 5 business days. A complimentary PDF plan set is also emailed within 1 business day for easy sharing and local printing. These plans may be used to construct one home.

5 Printed Sets + PDF $1,881
5 Printed Sets + PDF

CAD + PDF Single Build


This plan package is created in AutoCAD and delivered in .DWG format. CAD files are intended for use by design professionals, structural engineers, and builders to update plans for local building codes or to make revisions based on specific needs, lot requirements, and budget considerations. A complimentary PDF copy is included with this package for reference. CAD packages are delivered within 1 to 2 business days.
 
This package also comes with a copyright release for making revisions and printing unlimited copies.

For details on the specific CAD program used, please refer to the PLAN DETAILS section located above the floor plan on each plan page.

CAD + PDF Single Build $3,201
2D electronic editable computer files

CAD + PDF Unlimited Build


This plan package is created in AutoCAD and delivered in .DWG format. CAD files are intended for use by design professionals, structural engineers, and builders to update plans for local building codes or to make revisions based on specific needs, lot requirements, and budget considerations. A complimentary PDF copy is included with this package for reference. CAD packages are delivered within 1 to 2 business days.
 
This package also comes with a multi-use building license, granting permission to construct the home an unlimited number of times, along with a copyright release for making revisions and printing unlimited copies.
 
For details on the specific CAD program used, please refer to the PLAN DETAILS section located above the floor plan on each plan page.

CAD + PDF Unlimited Build $6,312
2D electronic editable computer files
STEP 2 Need To Reverse This Plan?
STEP 3 CHOOSE YOUR FOUNDATION
STEP 4 OPTIONAL ADD-ONS
Subtotal:
$1724
FREE SHIPPING

Note: C
 
Plan Details
See All Details
Finished Square Footage
1,508 Sq. Ft.
Main Level:
1,122 Sq. Ft.
Lower Level:
1,853 Sq. Ft.
Total:
Room Details
3
Bedrooms:
2
Full Baths:
General House Information
2
Number of Stories:
40' 0"
Width:
50' 6"
Depth:
Single
Dwelling Number:
Unfinished Square Footage
512 Sq. Ft.
Garage:
134 Sq. Ft.
Rear Porch:
155 Sq. Ft.
Deck:
GARAGE
Front
Garage Location:
2
Garage Size:
Exterior Style
Contemporary
Modern
Collections
Architects Choice
Canada
First Home
In-Law Suite
Kitchens
Primary Suites
Open Floor Plan
Foundation
Basement
Crawl Space
Slab
Walkout Basement
Framing Information
Truss
Roof Framing:
2x6
Exterior Wall Framing:
Roof Pitch
3/12
Primary:
Insulation (R)
Per IRC Climate Zones
House And Ceiling Heights
9
First Floor Ceiling:
27' 0"
Maximum House Height:
Key Features
Attached
Country Kitchen
Covered Rear Porch
Deck
Double Vanity Sink
Drive-under
Exercise Room
Fireplace
Foyer
Front Porch
Front-entry
Great Room
Home Office
In-law Suite
Kitchen Island
Laundry 2nd Fl
Library/Media Rm
L-Shaped
Primary Bdrm Upstairs
Open Floor Plan
Rec Room
Storage Space
Suited for sloping lot
Suited for view lot
Unfinished Space
Vaulted Ceilings
Walk-in Closet

Our Guarantees

  • Only the highest quality plans
  • Int’l Residential Code Compliant
  • Full structural details on all plans
  • Best plan price guarantee
  • Free modification Estimates
  • Builder-ready construction drawings
  • Expert advice from leading designers
  •  PDFs NOW!™ plans in minutes
  • 100% satisfaction guarantee
  • Free Home Building Organizer