20% Off House Plans Sitewide Ends Thursday
20% Off House Plans Sitewide Ends Thursday

House Plan: DFD-10525

See All 6 Photos > (photographs may reflect modified homes)
© copyright by designer
SQ FT
3,841
BEDS
4
BATHS
3.5
STORIES
2
CARS
2
HOUSE PLANS SALE 
START AT  $1,520.00
For questions and help, live chat, email or call us at 877-895-5299
Floor Plans
Click to Zoom In on Floor Plan
 
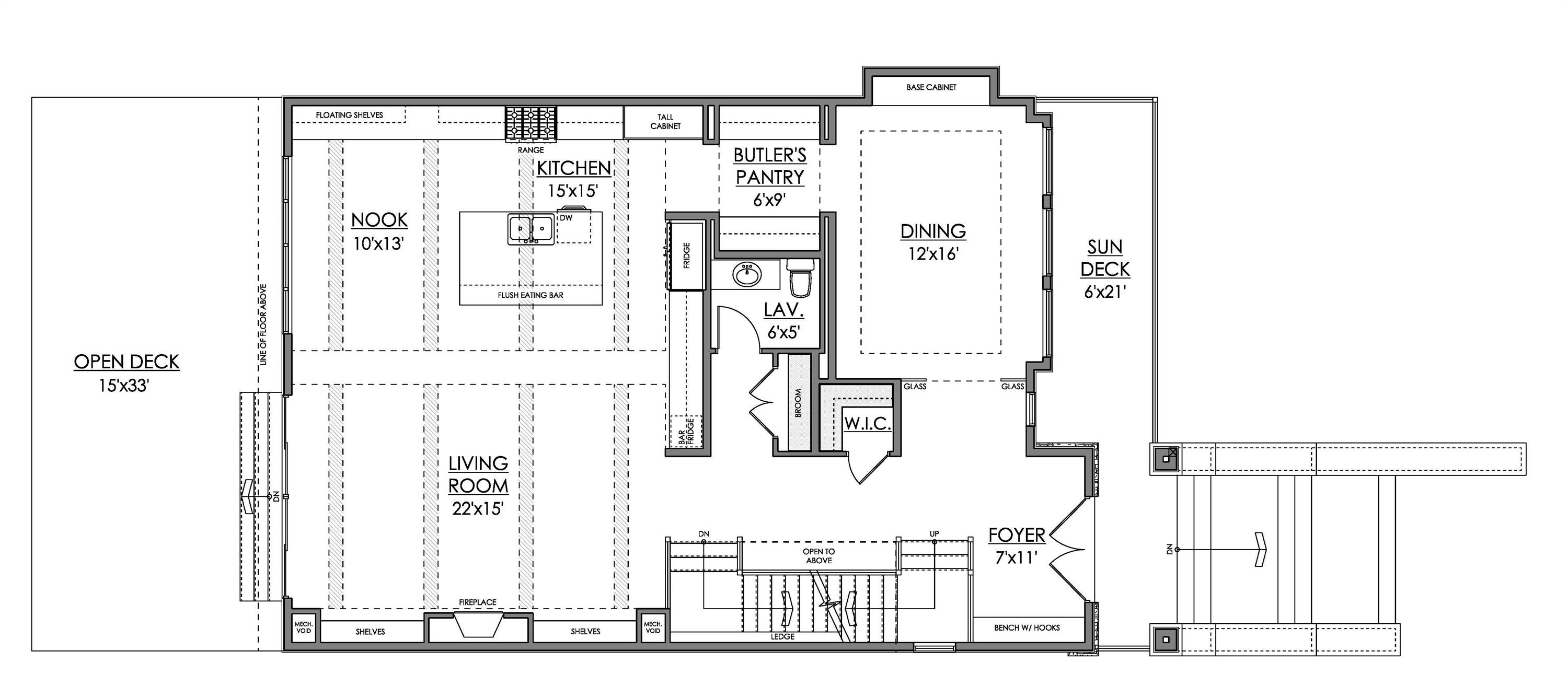
About House Plan 10525:
House Plan 10525 is a stylish modern design offering 2,841 square feet, 4 bedrooms, 3.5 baths, and a 2-car garage. The main floor features an open layout with a fireplace, built-in shelving, and a sleek L-shaped kitchen with a large island, nook, and walk-through butler’s pantry to the dining room—perfect for hosting. Upstairs includes three bedrooms, a home office, and laundry, while the basement adds a fourth bedroom, rec area, and extra storage.
House Plan Pricing
STEP 1 Select Your Package

PDF Single Build


Digital plans emailed to you in PDF format that allows for printing copies and sharing electronically with contractors, subs, decorators, and more. This package includes a license to build the home one time.

PDF Single Build $1,900
Most recommended package

CAD + PDF Single Build


CAD files are a complete set of construction drawings delivered electronically. They can be used for any type of modification—including major design changes and engineering—and include a release granting permission to modify the plan. Most CAD plan orders are emailed the same or next business day.
 
This package also comes with a PDF set of plans and a copyright release for making modifications and printing unlimited copies.
 
CAD files are provided in .dwg format. For details on the specific CAD program used, please refer to the PLAN DETAILS section located above the floor plan on each plan’s page.

CAD + PDF Single Build $2,600
2D electronic editable computer files

CAD + PDF Unlimited Build


CAD files are a complete set of construction drawings delivered electronically. They can be used for any type of modification—including major design changes and engineering—and include a release granting permission to modify the plan. Most CAD plan orders are emailed the same or next business day.
 
This package also comes with a PDF set of plans and a multi-use building license, granting permission to construct the home an unlimited number of times, along with a copyright release for making modifications and printing unlimited copies.
 
CAD files are provided in .dwg format. For details on the specific CAD program used, please refer to the PLAN DETAILS section located above the floor plan on each plan’s page.

CAD + PDF Unlimited Build $3,100

States N/A: CADUNLIMITEDBUILD
2D electronic editable computer files
STEP 2 Need To Reverse This Plan?
STEP 3 CHOOSE YOUR FOUNDATION
STEP 4 OPTIONAL ADD-ONS
Subtotal:
$1900
FREE SHIPPING
 
Plan Details
See All Details
Finished Square Footage
1,537 Sq. Ft.
Main Level:
1,492 Sq. Ft.
Upper Level:
811 Sq. Ft.
Lower Level:
3,841 Sq. Ft.
Total:
Room Details
4
Bedrooms:
3
Full Baths:
1
Half Baths:
General House Information
2
Number of Stories:
33' 0"
Width:
50' 0"
Depth:
Single
Dwelling Number:
None
Bonus Access:
Unfinished Square Footage
450 Sq. Ft.
Garage:
GARAGE
Under
Garage Location:
2
Garage Size:
Exterior Style
Contemporary
Modern
Transitional
Collections
Canada
Kitchens
Luxury
Primary Suites
Open Floor Plan
Outdoor Living
Foundation
Basement
Framing Information
Truss
Roof Framing:
2x6
Exterior Wall Framing:
Roof Pitch
12/12
Primary:
Roof Load
40
Live:
Insulation (R)
House And Ceiling Heights
10
First Floor Ceiling:
8
Second Floor Ceiling:
28' 4"
Maximum House Height:
Key Features
Attached
Butler's Pantry
Covered Front Porch
Deck
Dining Room
Double Vanity Sink
Fireplace
Formal LR
Foyer
Front-entry
Home Office
Kitchen Island
Laundry 2nd Fl
L-Shaped
Primary Bdrm Upstairs
Mud Room
Nook / Breakfast Area
Open Floor Plan
Outdoor Living Space
Peninsula / Eating Bar
Rec Room
Separate Tub and Shower
Storage Space
Suited for narrow lot
Suited for view lot
Walk-in Closet
Walk-in Pantry

Our Guarantees

  • Only the highest quality plans
  • Int’l Residential Code Compliant
  • Full structural details on all plans
  • Best plan price guarantee
  • Free modification Estimates
  • Builder-ready construction drawings
  • Expert advice from leading designers
  •  PDFs NOW!™ plans in minutes
  • 100% satisfaction guarantee
  • Free Home Building Organizer