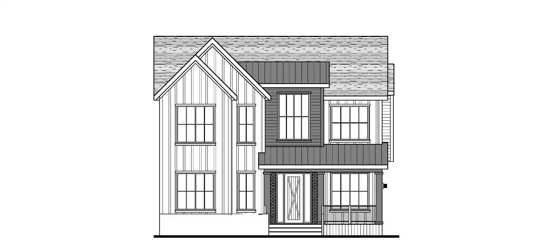
House Plan: DFD-10526

See All 3 Photos > (photographs may reflect modified homes)
© copyright by designer
SQ FT
4,575
BEDS
5
BATHS
4.5
STORIES
2
CARS
0
PLANS FROM $1,900
For questions and help, live chat, email or call us at 877-895-5299
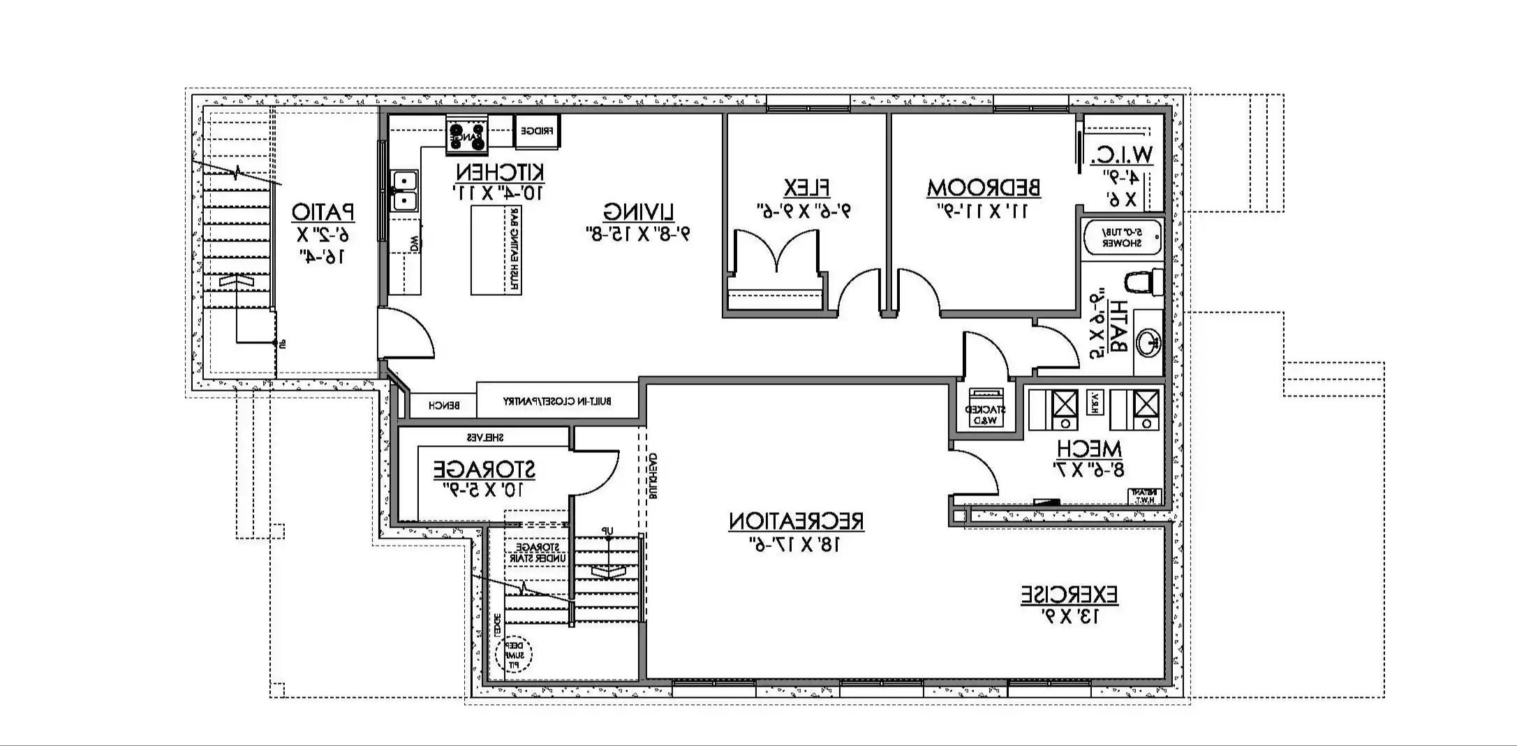
Floor Plans
Click to Zoom In on Floor Plan
 
About House Plan 10526:
House Plan 10526 is a 4,575-square-foot country-style home designed for flexible, family-focused living. This two-story layout includes 5 to 6 bedrooms and 4.5 bathrooms, offering plenty of space for multigenerational households. The main floor features an open-concept great room with a cozy fireplace, a chef’s kitchen with a large pantry, a sunny dining nook, and a home office, all with access to the rear outdoor living space. Upstairs, the owner’s suite includes a spacious ensuite and walk-in closet, along with three additional bedrooms and a laundry room. The finished lower level adds even more versatility with another bedroom, a flex room, recreation and exercise areas, plus a second kitchen—perfect for guests or a rental suite. House Plan 10526 combines classic country charm with modern convenience for everyday living.
House Plan Pricing
STEP 1 Select Your Package

PDF Single Build


Digital plans emailed to you in PDF format that allows for printing copies and sharing electronically with contractors, subs, decorators, and more. This package includes a license to build the home one time.

PDF Single Build $1,900
Most recommended package

CAD + PDF Single Build


CAD files are a complete set of construction drawings delivered electronically. They can be used for any type of modification—including major design changes and engineering—and include a release granting permission to modify the plan. Most CAD plan orders are emailed the same or next business day.
 
This package also comes with a PDF set of plans and a copyright release for making modifications and printing unlimited copies.
 
CAD files are provided in .dwg format. For details on the specific CAD program used, please refer to the PLAN DETAILS section located above the floor plan on each plan’s page.

CAD + PDF Single Build $2,600
2D electronic editable computer files

CAD + PDF Unlimited Build


CAD files are a complete set of construction drawings delivered electronically. They can be used for any type of modification—including major design changes and engineering—and include a release granting permission to modify the plan. Most CAD plan orders are emailed the same or next business day.
 
This package also comes with a PDF set of plans and a multi-use building license, granting permission to construct the home an unlimited number of times, along with a copyright release for making modifications and printing unlimited copies.
 
CAD files are provided in .dwg format. For details on the specific CAD program used, please refer to the PLAN DETAILS section located above the floor plan on each plan’s page.

CAD + PDF Unlimited Build $3,100

States N/A: CADUNLIMITEDBUILD
2D electronic editable computer files
STEP 2 Need To Reverse This Plan?
STEP 3 CHOOSE YOUR FOUNDATION
STEP 4 OPTIONAL ADD-ONS
Subtotal:
$1900
FREE SHIPPING
 
Plan Details
See All Details
Finished Square Footage
1,549 Sq. Ft.
Main Level:
1,588 Sq. Ft.
Upper Level:
1,438 Sq. Ft.
Lower Level:
4,575 Sq. Ft.
Total:
Room Details
5
Bedrooms:
4
Full Baths:
1
Half Baths:
General House Information
2
Number of Stories:
36' 0"
Width:
54' 6"
Depth:
Single
Dwelling Number:
None
Bonus Access:
Unfinished Square Footage
GARAGE
0
Garage Size:
Exterior Style
Contemporary
Farmhouse
Modern
Modern Farmhouse
Transitional
Collections
Affordable
Canada
Kitchens
Primary Suites
Open Floor Plan
Outdoor Living
Foundation
Basement
Framing Information
Truss
Roof Framing:
2x6
Exterior Wall Framing:
Roof Pitch
5/12
Primary:
Roof Load
40
Live:
Insulation (R)
House And Ceiling Heights
10
First Floor Ceiling:
9
Second Floor Ceiling:
30' 4"
Maximum House Height:
Key Features
Butler's Pantry
Covered Front Porch
Covered Rear Porch
Deck
Double Vanity Sink
Exercise Room
Fireplace
Formal LR
Foyer
Great Room
Home Office
Kitchen Island
Laundry 2nd Fl
L-Shaped
Primary Bdrm Upstairs
Mud Room
Nook / Breakfast Area
Open Floor Plan
Rec Room
Storage Space
Suited for corner lot
Suited for view lot
Walk-in Closet

Our Guarantees

  • Only the highest quality plans
  • Int’l Residential Code Compliant
  • Full structural details on all plans
  • Best plan price guarantee
  • Free modification Estimates
  • Builder-ready construction drawings
  • Expert advice from leading designers
  •  PDFs NOW!™ plans in minutes
  • 100% satisfaction guarantee
  • Free Home Building Organizer