20% off ALL House Plans Sitewide
20% off ALL House Plans Sitewide

House Plan: DFD-10546

See All 2 Photos > (photographs may reflect modified homes)
© copyright by designer
SQ FT
3,978
BEDS
4
BATHS
3.5
STORIES
2
CARS
3
HOUSE PLANS SALE 
START AT  $1,680.00
For questions and help, live chat, email or call us at 877-895-5299
Floor Plans
Click to Zoom In on Floor Plan
 
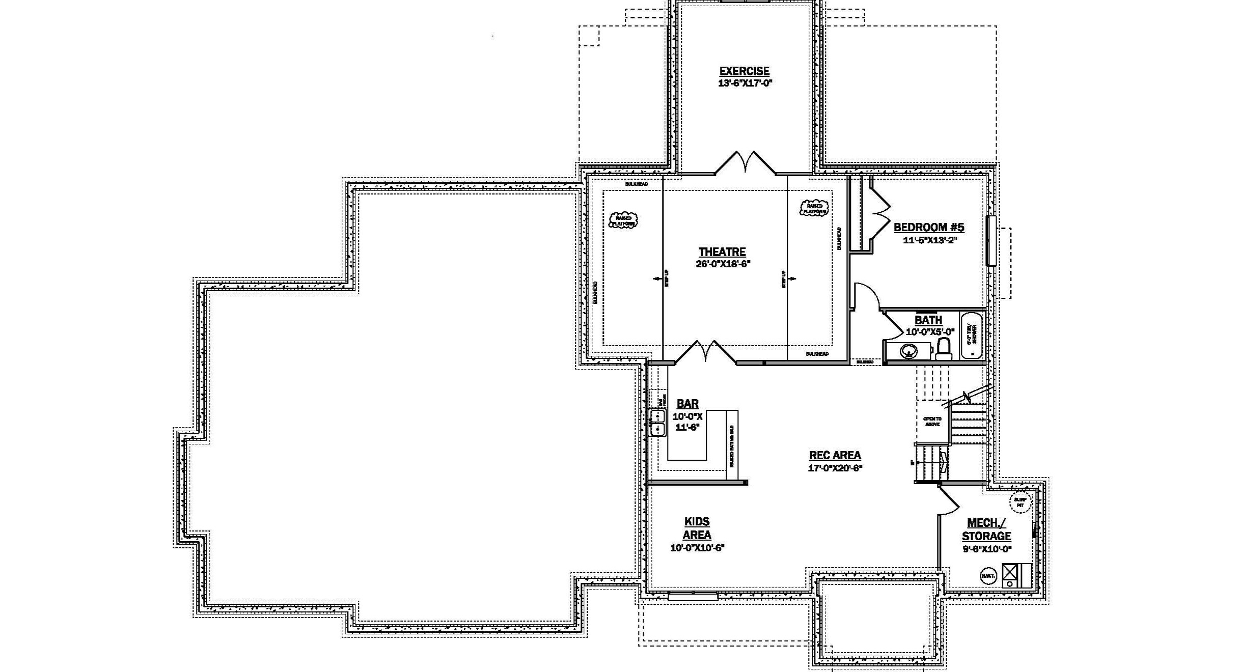
About House Plan 10546:
Need a modern home your family can grow into? See what House Plan 10546 has to offer! This spacious design has 3,978 square feet, four bedrooms, three full bathrooms, and two half bathrooms. The main level includes a den, a U-shaped island kitchen, a 2-story great room, a four-season room, and an amazing mudroom that connects to the foyer through the walk-through closet, the kitchen through the walk-through pantry, and to the garage, of course. And just look at that garage with oversized parking for three--you can park more tandem or use the space for storage or a workshop. Head upstairs to find all the bedrooms. There's a luxurious primary suite, a smaller suite, and a pair of Jack-and-Jill bedrooms in addition to the laundry room. A bonus room and a craft room add even more flexibility. If you need more than all this, you can finish the basement for more sleeping, living, and entertaining potential! 
House Plan Pricing
STEP 1 Select Your Package

PDF Single Build


Digital plans emailed to you in PDF format that allows for printing copies and sharing electronically with contractors, subs, decorators, and more. This package includes a license to build the home one time.

PDF Single Build $2,100
Most recommended package

CAD + PDF Single Build


This plan package is created in AutoCAD and delivered in .DWG format. CAD files are intended for use by design professionals, structural engineers, and builders to update plans for local building codes or to make revisions based on specific needs, lot requirements, and budget considerations. A complimentary PDF copy is included with this package for reference. CAD packages are delivered within 1 to 2 business days.
 
This package also comes with a copyright release for making revisions and printing unlimited copies.

For details on the specific CAD program used, please refer to the PLAN DETAILS section located above the floor plan on each plan page.

CAD + PDF Single Build $2,800
2D electronic editable computer files

CAD + PDF Unlimited Build


This plan package is created in AutoCAD and delivered in .DWG format. CAD files are intended for use by design professionals, structural engineers, and builders to update plans for local building codes or to make revisions based on specific needs, lot requirements, and budget considerations. A complimentary PDF copy is included with this package for reference. CAD packages are delivered within 1 to 2 business days.
 
This package also comes with a multi-use building license, granting permission to construct the home an unlimited number of times, along with a copyright release for making revisions and printing unlimited copies.
 
For details on the specific CAD program used, please refer to the PLAN DETAILS section located above the floor plan on each plan page.

CAD + PDF Unlimited Build $3,300

States N/A: CADUNLIMITEDBUILD
2D electronic editable computer files
STEP 2 Need To Reverse This Plan?
STEP 3 CHOOSE YOUR FOUNDATION
STEP 4 OPTIONAL ADD-ONS
Subtotal:
$2100
FREE SHIPPING
 
Plan Details
See All Details
Finished Square Footage
1,730 Sq. Ft.
Main Level:
2,248 Sq. Ft.
Upper Level:
1,620 Sq. Ft.
Lower Level:
3,978 Sq. Ft.
Total:
Room Details
4
Bedrooms:
3
Full Baths:
2
Half Baths:
General House Information
2
Number of Stories:
70' 6"
Width:
67' 6"
Depth:
Single
Dwelling Number:
2nd Floor
Bonus Access:
Unfinished Square Footage
1722 Sq. Ft.
Garage:
GARAGE
Front
Garage Location:
3
Garage Size:
Exterior Style
Contemporary
Modern
Transitional
Collections
Kitchens
Luxury
Primary Suites
Open Floor Plan
Outdoor Living
Foundation
Basement
Framing Information
Truss
Roof Framing:
2x6
Exterior Wall Framing:
Roof Pitch
8/12
Primary:
Roof Load
40
Live:
Insulation (R)
House And Ceiling Heights
10
First Floor Ceiling:
9
Second Floor Ceiling:
28' 3"
Maximum House Height:
Key Features
Attached
Bonus Room
Covered Front Porch
Covered Rear Porch
Deck
Double Vanity Sink
Family Style
Fireplace
Foyer
Front-entry
Great Room
Guest Suite
Home Office
Kitchen Island
Laundry 2nd Fl
Primary Bdrm Upstairs
Mud Room
Open Floor Plan
Outdoor Kitchen
Outdoor Living Space
Oversized
Rear-entry
Rec Room
Screened Porch/Sunroom
Separate Tub and Shower
Storage Space
U-Shaped
Vaulted Ceilings
Vaulted Great Room/Living
Vaulted Primary
Walk-in Closet
Walk-in Pantry
Workshop

Our Guarantees

  • Only the highest quality plans
  • Int’l Residential Code Compliant
  • Full structural details on all plans
  • Best plan price guarantee
  • Free modification Estimates
  • Builder-ready construction drawings
  • Expert advice from leading designers
  •  PDFs NOW!™ plans in minutes
  • 100% satisfaction guarantee
  • Free Home Building Organizer