15% off ALL House Plans Sitewide
15% off ALL House Plans Sitewide

House Plan: DFD-10567

See All 8 Photos > (photographs may reflect modified homes)
© copyright by designer
SQ FT
650
BEDS
1
BATHS
1
STORIES
1
CARS
0
HOUSE PLANS SALE 
START AT  $1,576.75
For questions and help, live chat, email or call us at 877-895-5299
Floor Plans
Click to Zoom In on Floor Plan
 
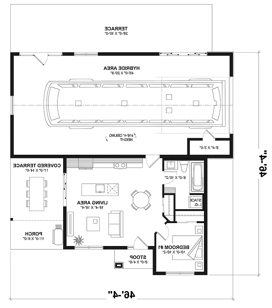
About House Plan 10567:
Designed with efficiency in mind, this home features 650 square feet of heated space with 1 bedroom and an open, easy-flowing layout. The family room and dining area are seamlessly connected, making the most of the home’s compact footprint. A kitchen island anchors the kitchen and adds practical workspace. The main-floor primary bedroom offers comfort and convenience for daily living. A bonus room allows for added versatility, whether used for storage or personal projects. First-floor laundry enhances functionality without interrupting the living areas. With a covered front porch and a rear-entry garage that includes workshop space, this home blends practicality with everyday comfort in a thoughtfully designed layout.
House Plan Pricing
STEP 1 Select Your Package

PDF Single Build


Digital plans emailed to you in PDF format that allows for printing copies and sharing electronically with contractors, subs, decorators, and more. This package includes a license to build the home one time.

PDF Single Build $1,855
Most recommended package

3 Printed Sets + PDF


Includes 3 physical printed blueprint sets, shipped free via UPS within the Continental U.S. Printed sets ship within 1 business day and are delivered within 3 – 5 business days. A complimentary PDF plan set is also emailed within 1 business day for easy sharing and local printing. These plans may be used to construct one home.

3 Printed Sets + PDF $1,995
3 Printed Sets + PDF

CAD + PDF Single Build


This plan package is created in AutoCAD and delivered in .DWG format. CAD files are intended for use by design professionals, structural engineers, and builders to update plans for local building codes or to make revisions based on specific needs, lot requirements, and budget considerations. A complimentary PDF copy is included with this package for reference. CAD packages are delivered within 1 to 2 business days.
 
This package also comes with a copyright release for making revisions and printing unlimited copies.

For details on the specific CAD program used, please refer to the PLAN DETAILS section located above the floor plan on each plan page.

CAD + PDF Single Build $2,855
2D electronic editable computer files
STEP 2 Need To Reverse This Plan?
STEP 3 CHOOSE YOUR FOUNDATION
STEP 4 OPTIONAL ADD-ONS
Subtotal:
$1855
FREE SHIPPING
Please allow 3-5 business days for delivery of this plan Please check our PDFs NOW collection for plans that can be downloaded and received immediately or live chat us to help you find a similar plan available now.
 
Plan Details
See All Details
Finished Square Footage
650 Sq. Ft.
Main Level:
650 Sq. Ft.
Total:
Room Details
1
Bedrooms:
1
Full Baths:
General House Information
1
Number of Stories:
46' 4"
Width:
46' 4"
Depth:
Single
Dwelling Number:
Unfinished Square Footage
1019 Sq. Ft.
Garage:
66 Sq. Ft.
Porch:
GARAGE
Rear
Garage Location:
0
Garage Size:
Exterior Style
Bungalow
Farmhouse
Modern Farmhouse
Traditional
Collections
Affordable
Budget
Canada
Open Floor Plan
Outdoor Living
Foundation
Floating slab (included)
Monolithic slab
Framing Information
Truss
Roof Framing:
2x6
Exterior Wall Framing:
Roof Pitch
8
Primary:
Insulation (R)
House And Ceiling Heights
9
First Floor Ceiling:
24' 8"
Maximum House Height:
Key Features
Bonus Room
Covered Front Porch
Dining Room
Family Room
Kitchen Island
Laundry 1st Fl
Primary Bdrm Main Floor
Open Floor Plan
Side-entry
Suited for corner lot
Workshop

Our Guarantees

  • Only the highest quality plans
  • Int’l Residential Code Compliant
  • Full structural details on all plans
  • Best plan price guarantee
  • Free modification Estimates
  • Builder-ready construction drawings
  • Expert advice from leading designers
  •  PDFs NOW!™ plans in minutes
  • 100% satisfaction guarantee
  • Free Home Building Organizer

See terms opt out anytime