House Plan: DFD-10568

See All 12 Photos > (photographs may reflect modified homes)
© copyright by designer
SQ FT
1,398
BEDS
2
BATHS
1
STORIES
1.5
CARS
1
PLANS FROM $1,510
For questions and help, live chat, email or call us at 877-895-5299
Floor Plans
Click to Zoom In on Floor Plan
 
About House Plan 10568:
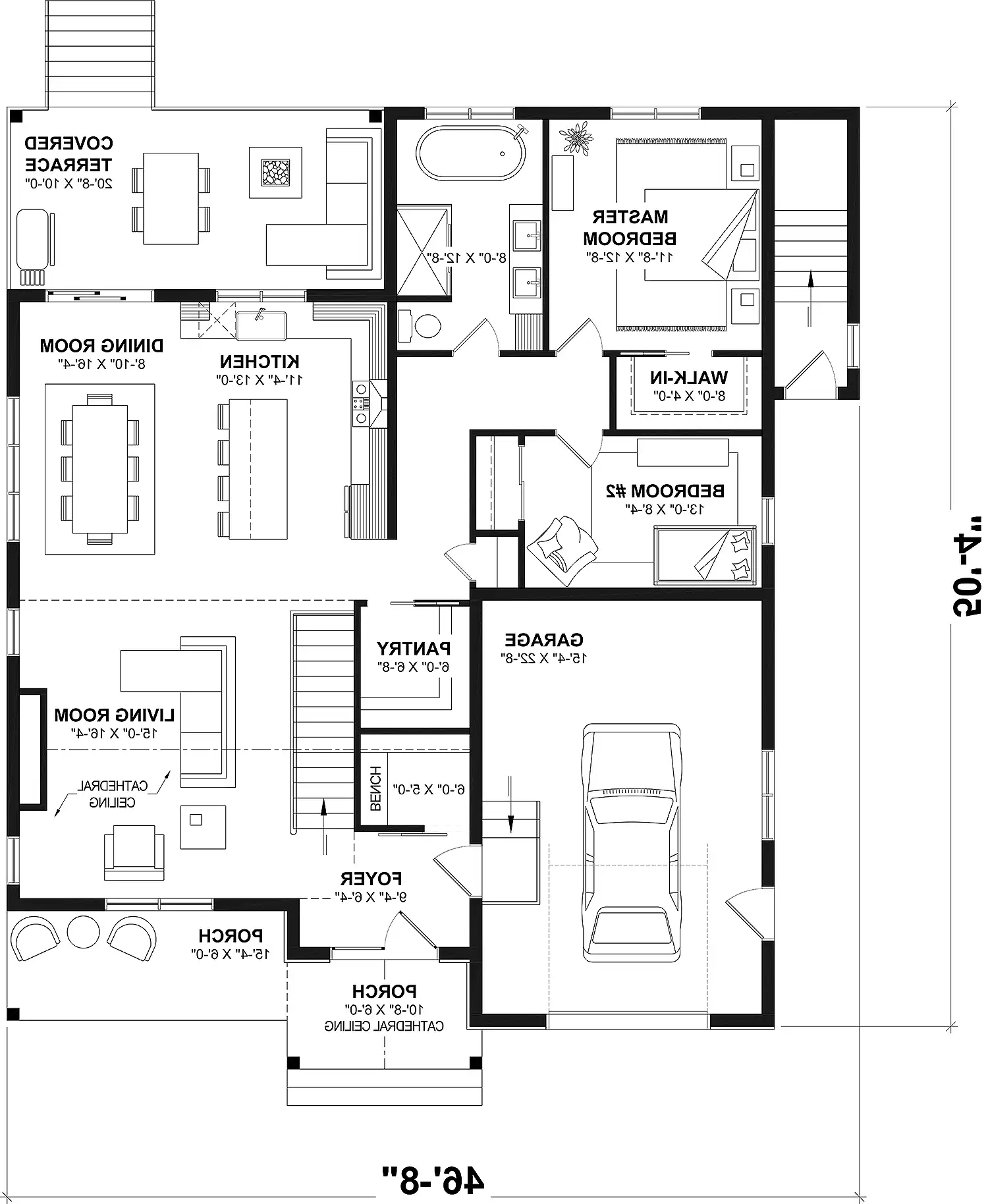
With 1,398 square feet of heated living space, this home blends comfort and functionality in a well-planned layout featuring 2 bedrooms. The open living areas allow the family room and dining space to flow naturally into the kitchen, making everyday living feel spacious and connected. A kitchen island anchors the L-shaped kitchen, while the walk-in pantry adds generous storage. The main-floor primary bedroom is designed for relaxation, complete with a double vanity, separate tub and shower, and dual walk-in closets. A second bedroom is positioned for privacy and versatility. The front-entry garage offers convenient access through the mud room. Covered front and rear porches provide inviting outdoor spaces that enhance the home’s welcoming feel.
House Plan Pricing
STEP 1 Select Your Package

3 Printed Sets + PDF


Includes 3 physical printed blueprints shipped and delivered within 3-5 business days and a copyright release license to construct one home and to make copies. A complimentary PDF plan set is also emailed within 1 business day for easy sharing and local printing. 

3 Printed Sets + PDF $1,650
3 Printed Sets + PDF

PDF Single Build


Digital plans emailed to you in PDF format that allows for printing copies and sharing electronically with contractors, subs, decorators, and more. This package includes a license to build the home one time.

PDF Single Build $1,510
Most recommended package

CAD + PDF Single Build


This plan package is created in AutoCAD and delivered in .DWG format. CAD files are intended for use by design professionals, structural engineers, and builders to update plans for local building codes or to make revisions based on specific needs, lot requirements, and budget considerations. A complimentary PDF copy is included with this package for reference. CAD packages are delivered within 1 to 2 business days.
 
This package also comes with a copyright release for making revisions and printing unlimited copies.

For details on the specific CAD program used, please refer to the PLAN DETAILS section located above the floor plan on each plan page.

CAD + PDF Single Build $2,510
2D electronic editable computer files
STEP 2 Need To Reverse This Plan?
STEP 3 CHOOSE YOUR FOUNDATION
STEP 4 OPTIONAL ADD-ONS
Subtotal:
$1650
FREE SHIPPING
Please allow 3-5 business days for delivery of this plan Please check our PDFs NOW collection for plans that can be downloaded and received immediately or live chat us to help you find a similar plan available now.
 
Plan Details
See All Details
Finished Square Footage
1,398 Sq. Ft.
Main Level:
1,472 Sq. Ft.
Lower Level:
1,398 Sq. Ft.
Total:
Room Details
2
Bedrooms:
1
Full Baths:
General House Information
1.5
Number of Stories:
46' 8"
Width:
50' 4"
Depth:
Single
Dwelling Number:
Unfinished Square Footage
400 Sq. Ft.
Garage:
207 Sq. Ft.
Deck:
GARAGE
Front
Garage Location:
1
Garage Size:
Exterior Style
Bungalow
Cottage
Country
Farmhouse
Modern
Modern Farmhouse
Collections
Architects Choice
Canada
First Home
Open Floor Plan
Foundation
Crawlspace
Floating slab
Full Unfinished Basement (included)
Monolithic slab
Framing Information
Truss
Roof Framing:
2x6
Exterior Wall Framing:
Roof Pitch
6/12
Primary:
Insulation (R)
House And Ceiling Heights
9
First Floor Ceiling:
23' 10"
Maximum House Height:
Key Features
Attached
Covered Front Porch
Covered Rear Porch
Dining Room
Double Vanity Sink
Family Room
Family Style
Foyer
His and Hers Primary Closets
Kitchen Island
L-Shaped
Primary Bdrm Main Floor
Mud Room
Open Floor Plan
Separate Tub and Shower
Suited for corner lot
Walk-in Closet
Walk-in Pantry

Our Guarantees

  • Only the highest quality plans
  • Int’l Residential Code Compliant
  • Full structural details on all plans
  • Best plan price guarantee
  • Free modification Estimates
  • Builder-ready construction drawings
  • Expert advice from leading designers
  •  PDFs NOW!™ plans in minutes
  • 100% satisfaction guarantee
  • Free Home Building Organizer