22% off ALL House Plans Sitewide
22% off ALL House Plans Sitewide

House Plan: DFD-10612

See All 5 Photos > (photographs may reflect modified homes)
© copyright by designer
SQ FT
1,979
BEDS
3
BATHS
2
STORIES
1
CARS
2
HOUSE PLANS SALE 
START AT  $1,232.40
For questions and help, live chat, email or call us at 877-895-5299
Floor Plans
Click to Zoom In on Floor Plan
 
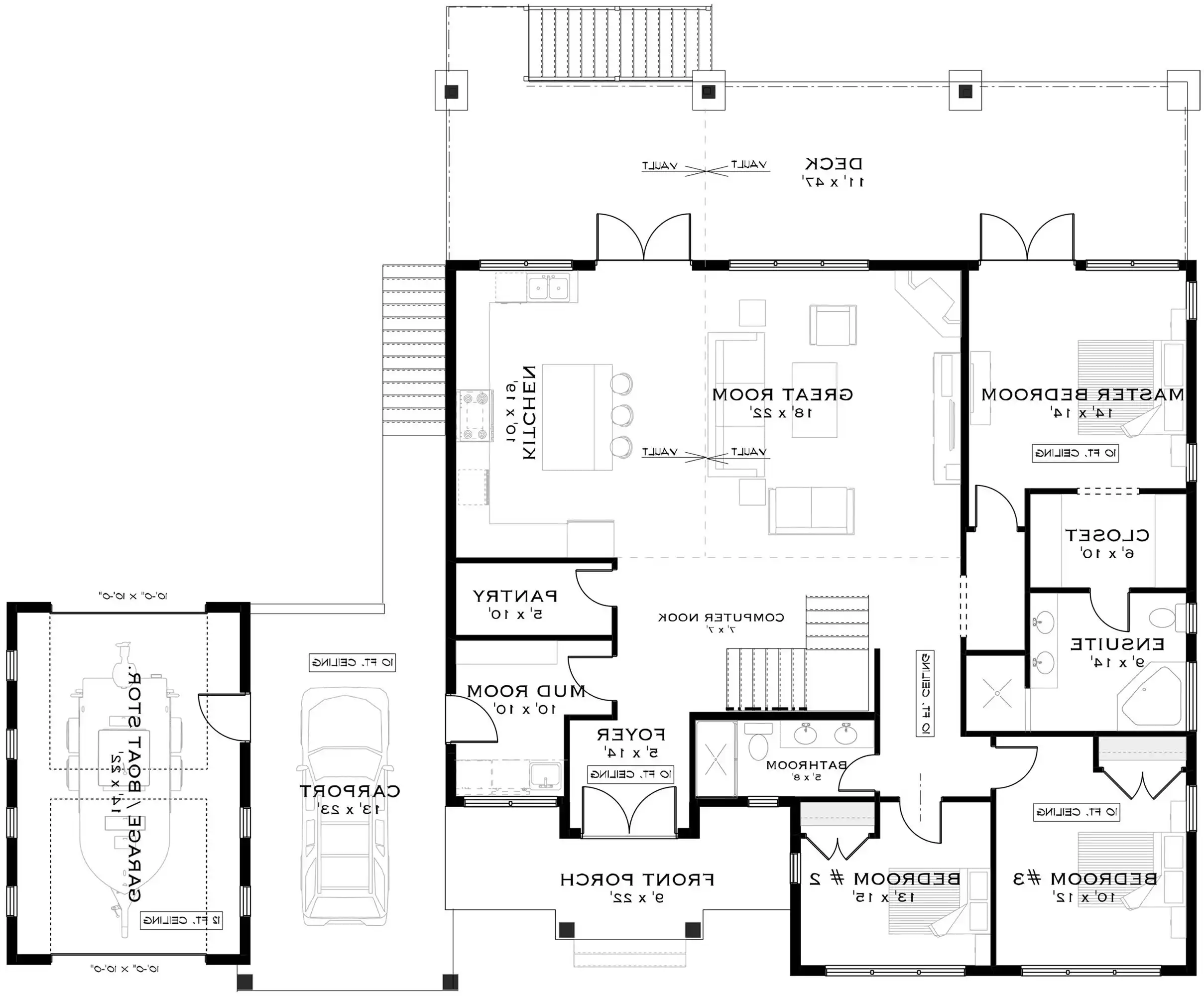
About House Plan 10612:
House Plan 10612 is here for you if you need an amazing lake house! This design offers 1,979 square feet with three bedrooms and two bathrooms. The interior impresses with a cathedral vaulted great room. The living space has a corner fireplace while the kitchen has an eat-in design with island seating. The back deck expands this space into the fresh air so you can enjoy views inside or out. The bedrooms are placed on the same side of the house, with the five-piece primary suite in back and the two secondary bedrooms and their four-piece hall bath in front. If you need more space, the basement is yours for the finishing! But that's not all--this house plan features a carport and a garage bay on the side. With doors in front and back, the garage can store your boat and even launch it into the water nearby! 
House Plan Pricing
STEP 1 Select Your Package

PDF Single Build


Digital plans emailed to you in PDF format that allows for printing copies and sharing electronically with contractors, subs, decorators, and more. This package includes a license to build the home one time.

PDF Single Build $1,580
Most recommended package

CAD + PDF Single Build


CAD files are a complete set of construction drawings delivered electronically. They can be used for any type of modification—including major design changes and engineering—and include a release granting permission to modify the plan. Most CAD plan orders are emailed the same or next business day.
 
This package also comes with a PDF set of plans and a copyright release for making modifications and printing unlimited copies.
 
CAD files are provided in .dwg format. For details on the specific CAD program used, please refer to the PLAN DETAILS section located above the floor plan on each plan’s page.

CAD + PDF Single Build $1,980
2D electronic editable computer files

PDF Unlimited Build


Digital plans with an unlimited build license emailed in PDF format, that allows for printing copies on a home printer or local print shop and sharing with contractors, subs, decorators and more 

PDF Unlimited Build $2,280
Digital plans including unlimited build license

CAD + PDF Unlimited Build


CAD files are a complete set of construction drawings delivered electronically. They can be used for any type of modification—including major design changes and engineering—and include a release granting permission to modify the plan. Most CAD plan orders are emailed the same or next business day.
 
This package also comes with a PDF set of plans and a multi-use building license, granting permission to construct the home an unlimited number of times, along with a copyright release for making modifications and printing unlimited copies.
 
CAD files are provided in .dwg format. For details on the specific CAD program used, please refer to the PLAN DETAILS section located above the floor plan on each plan’s page.

CAD + PDF Unlimited Build $2,580
2D electronic editable computer files
STEP 2 Need To Reverse This Plan?
STEP 3 CHOOSE YOUR FOUNDATION
STEP 4 OPTIONAL ADD-ONS
Subtotal:
$1580
FREE SHIPPING
 
Plan Details
See All Details
Finished Square Footage
1,979 Sq. Ft.
Main Level:
1,979 Sq. Ft.
Lower Level:
1,979 Sq. Ft.
Total:
Room Details
3
Bedrooms:
2
Full Baths:
General House Information
1
Number of Stories:
76' 0"
Width:
63' 0"
Depth:
Single
Dwelling Number:
Unfinished Square Footage
382 Sq. Ft.
Garage:
732 Sq. Ft.
Porch:
144 Sq. Ft.
Front Porch:
588 Sq. Ft.
Rear Porch:
517 Sq. Ft.
Deck:
GARAGE
Side
Garage Location:
2
Garage Size:
Exterior Style
Beach
Coastal
Lake
Ranch
Transitional
Collections
Cabin
Canada
Open Floor Plan
Outdoor Living
Vacation
Foundation
Basement
Framing Information
Combination
Roof Framing:
2x6
Exterior Wall Framing:
Roof Pitch
6/12
Primary:
Insulation (R)
22
Exterior Wall:
32
Ceiling:
32
Floor:
House And Ceiling Heights
10
First Floor Ceiling:
30' 4"
Maximum House Height:
Key Features
Attached
Carport
Covered Front Porch
Covered Rear Porch
Double Vanity Sink
Family Style
Fireplace
Foyer
Front-entry
Great Room
Kitchen Island
Laundry 1st Fl
Primary Bdrm Main Floor
Mud Room
Open Floor Plan
Outdoor Living Space
Peninsula / Eating Bar
Rear Porch
Separate Tub and Shower
Suited for sloping lot
Suited for view lot
Unfinished Space
U-Shaped
Vaulted Ceilings
Vaulted Great Room/Living
Vaulted Kitchen
Walk-in Closet
Walk-in Pantry

Our Guarantees

  • Only the highest quality plans
  • Int’l Residential Code Compliant
  • Full structural details on all plans
  • Best plan price guarantee
  • Free modification Estimates
  • Builder-ready construction drawings
  • Expert advice from leading designers
  •  PDFs NOW!™ plans in minutes
  • 100% satisfaction guarantee
  • Free Home Building Organizer