15% off ALL House Plans Sitewide

House Plan: DFD-10617

See All 9 Photos > (photographs may reflect modified homes)
© copyright by designer
SQ FT
1,769
BEDS
2
BATHS
2.5
STORIES
2
CARS
0
HOUSE PLANS SALE 
START AT  $845.75
For questions and help, live chat, email or call us at 877-895-5299
Floor Plans
Click to Zoom In on Floor Plan
 
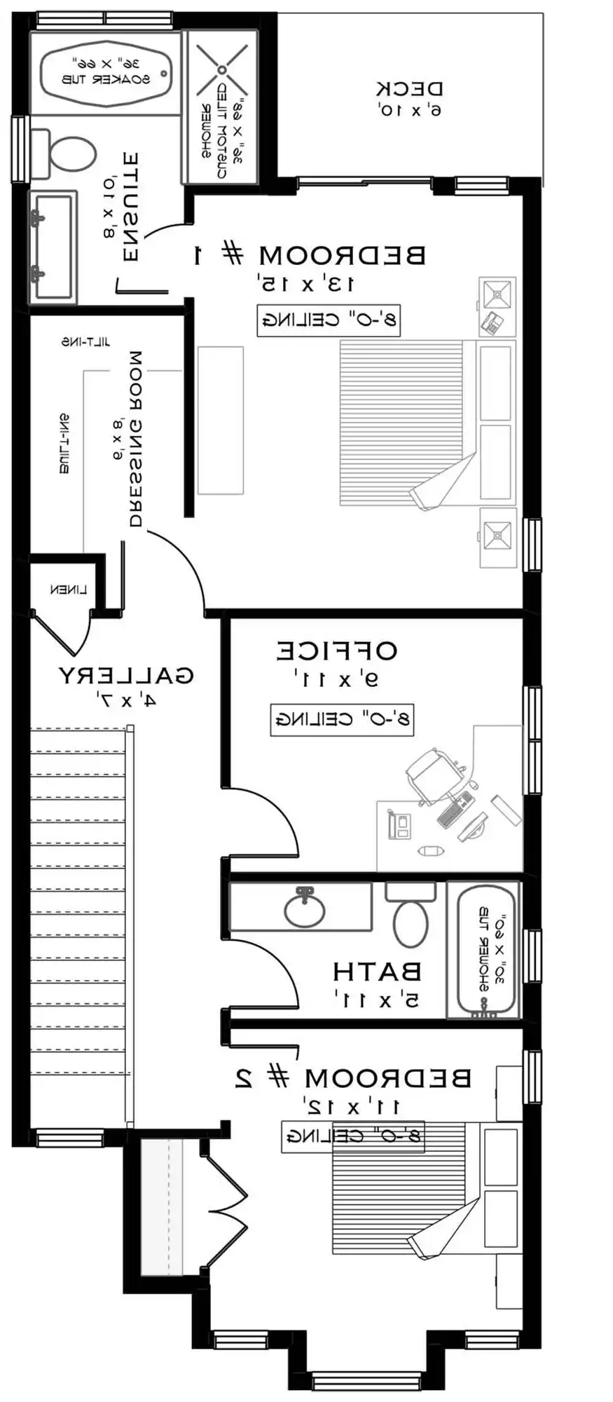
About House Plan 10617:
House Plan 10617 is 19' across and has sleek modern style, so look no further if you need a stylish home for a tight lot! Inside, you'll enjoy 1,769 square feet with two bedrooms plus an office and two-and-a-half bathrooms. The main level has all the common spaces, including the peninsula kitchen and dining area in the middle and the front lounge and rear family room, both with fireplaces. The powder room and laundry room are also placed downstairs. Upstairs, the primary suite in back has a private five-piece bath and its own deck while the front bedroom has access to a nearby hall bath. The office is placed between the bedrooms to create some separation and privacy.
House Plan Pricing
STEP 1 Select Your Package

PDF Single Build


Digital plans emailed to you in PDF format that allows for printing copies and sharing electronically with contractors, subs, decorators, and more. This package includes a license to build the home one time.

PDF Single Build $995
Most recommended package

CAD + PDF Single Build


This plan package is created in AutoCAD and delivered in .DWG format. CAD files are intended for use by design professionals, structural engineers, and builders to update plans for local building codes or to make revisions based on specific needs, lot requirements, and budget considerations. A complimentary PDF copy is included with this package for reference. CAD packages are delivered within 1 to 2 business days.
 
This package also comes with a copyright release for making revisions and printing unlimited copies.

For details on the specific CAD program used, please refer to the PLAN DETAILS section located above the floor plan on each plan page.

CAD + PDF Single Build $1,395
2D electronic editable computer files

PDF Unlimited Build


Digital plans with an unlimited build license emailed in PDF format, that allows for printing copies on a home printer or local print shop and sharing with contractors, subs, decorators and more 

PDF Unlimited Build $1,695
Digital plans including unlimited build license

CAD + PDF Unlimited Build


This plan package is created in AutoCAD and delivered in .DWG format. CAD files are intended for use by design professionals, structural engineers, and builders to update plans for local building codes or to make revisions based on specific needs, lot requirements, and budget considerations. A complimentary PDF copy is included with this package for reference. CAD packages are delivered within 1 to 2 business days.
 
This package also comes with a multi-use building license, granting permission to construct the home an unlimited number of times, along with a copyright release for making revisions and printing unlimited copies.
 
For details on the specific CAD program used, please refer to the PLAN DETAILS section located above the floor plan on each plan page.

CAD + PDF Unlimited Build $1,995
2D electronic editable computer files
STEP 2 Need To Reverse This Plan?
STEP 3 CHOOSE YOUR FOUNDATION
STEP 4 OPTIONAL ADD-ONS
Subtotal:
$995
FREE SHIPPING
 
Plan Details
See All Details
Finished Square Footage
925 Sq. Ft.
Main Level:
844 Sq. Ft.
Upper Level:
1,769 Sq. Ft.
Total:
Room Details
2
Bedrooms:
2
Full Baths:
1
Half Baths:
General House Information
2
Number of Stories:
19' 0"
Width:
52' 0"
Depth:
Single
Dwelling Number:
Unfinished Square Footage
180 Sq. Ft.
Porch:
28 Sq. Ft.
Front Porch:
152 Sq. Ft.
Rear Porch:
60 Sq. Ft.
Deck:
GARAGE
0
Garage Size:
Exterior Style
European
Modern
Transitional
Collections
Affordable
Budget
Builders
Canada
Open Floor Plan
Vacation
Foundation
Basement
Crawl Space
Slab
Framing Information
Truss
Roof Framing:
2x6
Exterior Wall Framing:
Roof Pitch
6/12
Primary:
Insulation (R)
22
Exterior Wall:
40
Ceiling:
32
Floor:
House And Ceiling Heights
9
First Floor Ceiling:
8
Second Floor Ceiling:
25' 2"
Maximum House Height:
Key Features
Covered Front Porch
Covered Rear Porch
Double Vanity Sink
Family Room
Family Style
Fireplace
Foyer
Great Room
Home Office
Laundry 1st Fl
Primary Bdrm Upstairs
None
Open Floor Plan
Peninsula / Eating Bar
Separate Tub and Shower
Suited for narrow lot
U-Shaped
Walk-in Closet

Our Guarantees

  • Only the highest quality plans
  • Int’l Residential Code Compliant
  • Full structural details on all plans
  • Best plan price guarantee
  • Free modification Estimates
  • Builder-ready construction drawings
  • Expert advice from leading designers
  •  PDFs NOW!™ plans in minutes
  • 100% satisfaction guarantee
  • Free Home Building Organizer