15% off ALL House Plans Sitewide
15% off ALL House Plans Sitewide

House Plan: DFD-10692

See All 18 Photos > (photographs may reflect modified homes)
© copyright by designer
SQ FT
2,268
BEDS
3
BATHS
2.5
STORIES
1.5
CARS
0
HOUSE PLANS SALE 
START AT  $1,576.75
For questions and help, live chat, email or call us at 877-895-5299
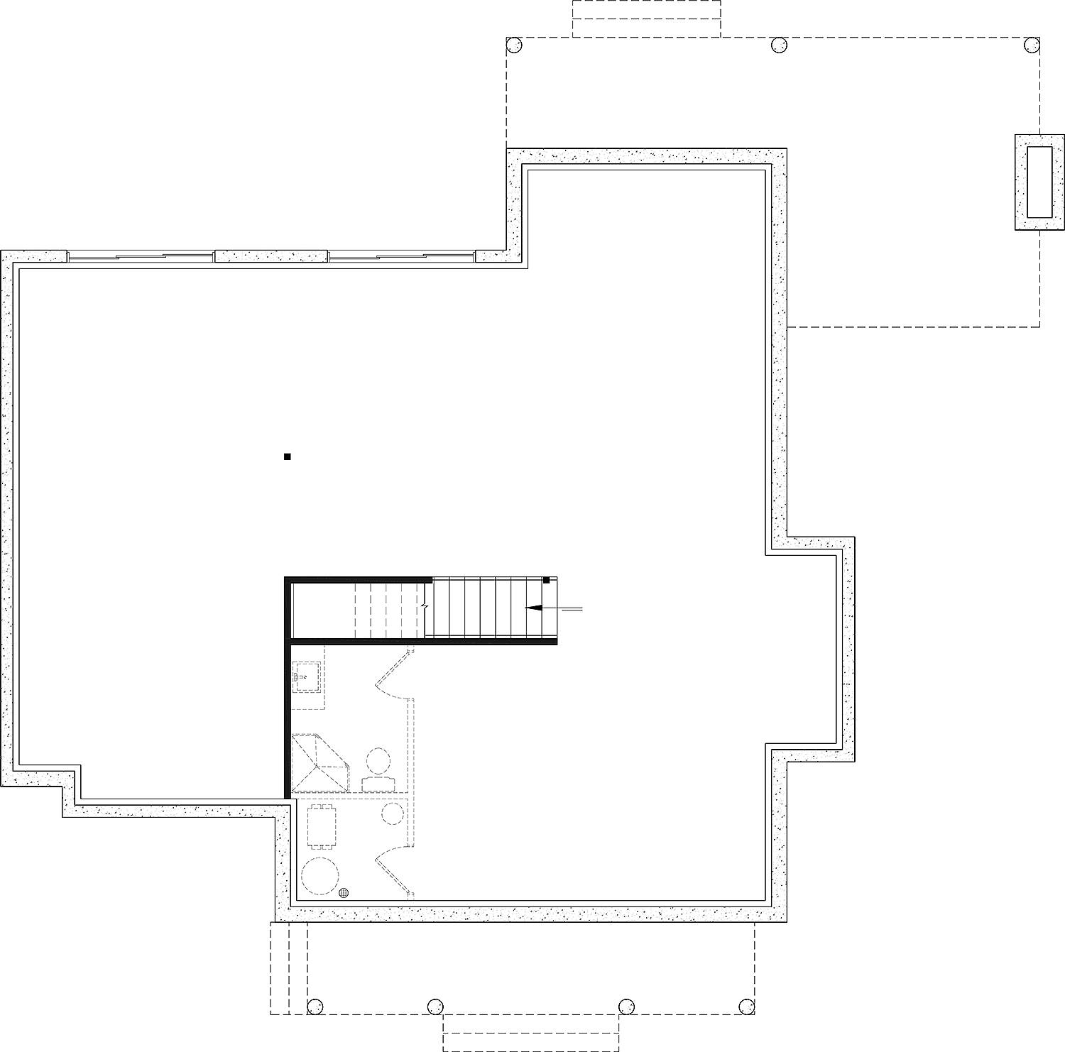
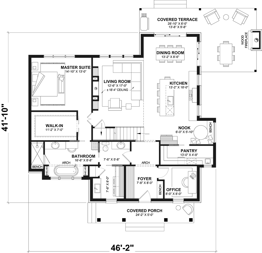
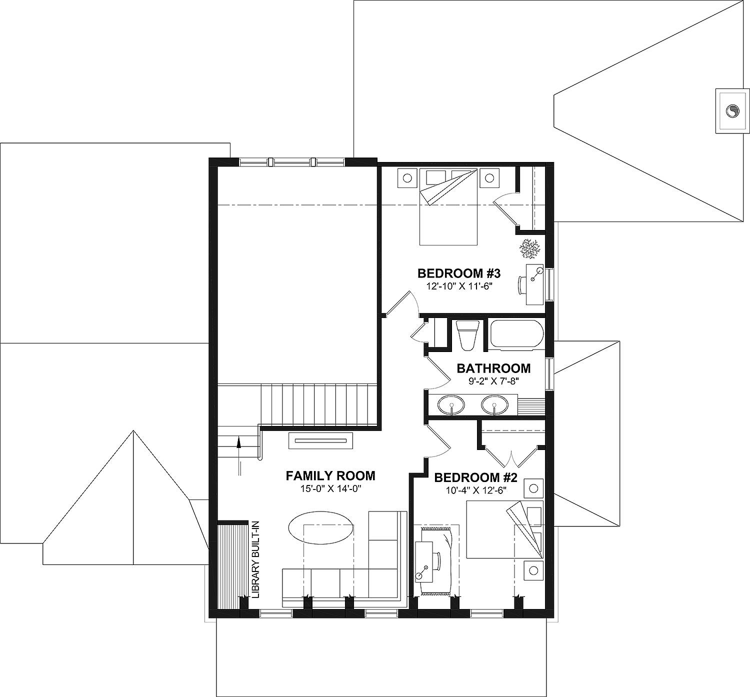
Floor Plans
Click to Zoom In on Floor Plan
 
About House Plan 10692:
Designed for both beauty and livability, this home features 2,268 square feet of heated space with 3 bedrooms and 2.5 baths. An open main level connects the family room and dining space to a bright kitchen equipped with an island, breakfast nook, butler’s pantry, and generous walk-in pantry storage. The main-floor primary suite serves as a peaceful retreat with a sitting area, dual walk-in closets, and a well-appointed bath featuring a separate tub and shower. Arched openings and a two-story volume ceiling add character and openness to the central living areas. Secondary bedrooms are located upstairs, offering comfortable separation for family or guests. Outdoor living is a standout feature with a wraparound porch complemented by covered front and rear porches that extend the living space beyond the walls. Thoughtful details such as a home office, mud room, and first-floor laundry make this home as practical as it is inviting.
House Plan Pricing
STEP 1 Select Your Package

PDF Single Build


Digital plans emailed to you in PDF format that allows for printing copies and sharing electronically with contractors, subs, decorators, and more. This package includes a license to build the home one time.

PDF Single Build $1,855
Most recommended package

3 Printed Sets + PDF


Includes 3 physical printed blueprint sets, shipped free via UPS within the U.S. Printed sets ship within 1 business day and are delivered within 3 – 5 business days. A complimentary PDF plan set is also emailed within 1 business day for easy sharing and local printing. These plans may be used to construct one home.

3 Printed Sets + PDF $1,995
3 Printed Sets + PDF

CAD + PDF Single Build


This plan package is created in AutoCAD and delivered in .DWG format. CAD files are intended for use by design professionals, structural engineers, and builders to update plans for local building codes or to make revisions based on specific needs, lot requirements, and budget considerations. A complimentary PDF copy is included with this package for reference. CAD packages are delivered within 1 to 2 business days.
 
This package also comes with a copyright release for making revisions and printing unlimited copies.

For details on the specific CAD program used, please refer to the PLAN DETAILS section located above the floor plan on each plan page.

CAD + PDF Single Build $2,855
2D electronic editable computer files
STEP 2 Need To Reverse This Plan?
STEP 3 CHOOSE YOUR FOUNDATION
STEP 4 OPTIONAL ADD-ONS
Subtotal:
$1855
FREE SHIPPING
Please allow 3-5 business days for delivery of this plan Please check our PDFs NOW collection for plans that can be downloaded and received immediately or live chat us to help you find a similar plan available now.
 
Plan Details
See All Details
Finished Square Footage
1,582 Sq. Ft.
Main Level:
686 Sq. Ft.
Upper Level:
1,582 Sq. Ft.
Lower Level:
2,268 Sq. Ft.
Total:
Room Details
3
Bedrooms:
2
Full Baths:
1
Half Baths:
General House Information
1.5
Number of Stories:
46' 2"
Width:
41' 10"
Depth:
Single
Dwelling Number:
Unfinished Square Footage
GARAGE
0
Garage Size:
Exterior Style
Classical
Country
Farmhouse
French Country
Modern
Modern Farmhouse
Traditional
Collections
Canada
Kitchens
Luxury
Open Floor Plan
Outdoor Living
Split Bedroom
Foundation
Crawlspace
Floating slab
Full Unfinished Basement (included)
Monolithic slab
Framing Information
Truss
Roof Framing:
2x6
Exterior Wall Framing:
Roof Pitch
8/12
Primary:
Insulation (R)
House And Ceiling Heights
9
First Floor Ceiling:
8
Second Floor Ceiling:
29' 10"
Maximum House Height:
Key Features
2 Story Volume
Arches
Butler's Pantry
Covered Front Porch
Covered Rear Porch
Dining Room
Family Room
Foyer
His and Hers Primary Closets
Home Office
Kitchen Island
Laundry 1st Fl
L-Shaped
Primary Bdrm Main Floor
Mud Room
None
Nook / Breakfast Area
Open Floor Plan
Outdoor Living Space
Separate Tub and Shower
Sitting Area
Split Bedrooms
Suited for corner lot
Walk-in Closet
Walk-in Pantry
Wraparound Porch

Our Guarantees

  • Only the highest quality plans
  • Int’l Residential Code Compliant
  • Full structural details on all plans
  • Best plan price guarantee
  • Free modification Estimates
  • Builder-ready construction drawings
  • Expert advice from leading designers
  •  PDFs NOW!™ plans in minutes
  • 100% satisfaction guarantee
  • Free Home Building Organizer