20% off ALL House Plans Sitewide
20% off ALL House Plans Sitewide

House Plan: DFD-10693

See All 3 Photos > (photographs may reflect modified homes)
© copyright by designer
SQ FT
2,238
BEDS
3
BATHS
2
STORIES
1
CARS
0
HOUSE PLANS SALE 
START AT  $1,700.00
For questions and help, live chat, email or call us at 877-895-5299
Floor Plans
Click to Zoom In on Floor Plan
 
About House Plan 10693:
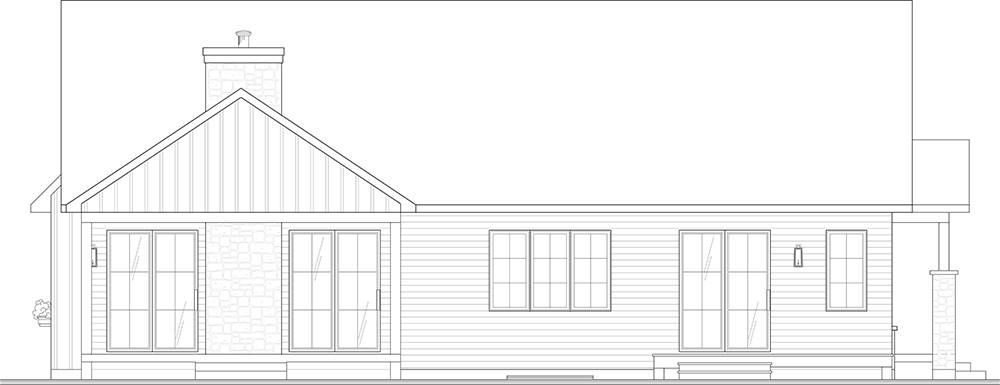
Take a look at House Plan 10693 if you need an amazing modern farmhouse for multigenerational living! This 2,238-square-foot ranch offers three bedrooms and two bathrooms in total, split between two units of 1,478 and 760 square feet. The main unit has a lovely kitchen and dining setup with an island with bar seating, a built-in dinette nook, and room for a dining table. The cozy living area invites you back with a fireplace and connection to the back covered terrace. The bedrooms are split in front and back, with the front hallway hosting a bedroom, the laundry room, and access to the five-piece bath that the primary bedroom in back enjoys direct access to. The secondary unit places its bedroom and bathroom in front while the eat-in kitchen is open to the living area in back. The units have exterior access on the front and left sides, plus they connect through the front hallway! 
House Plan Pricing
STEP 1 Select Your Package

PDF Single Build


Digital plans emailed to you in PDF format that allows for printing copies and sharing electronically with contractors, subs, decorators, and more. This package includes a license to build the home one time.

PDF Single Build $2,125
Most recommended package

3 sets + PDF


Please allow 3-5 days for delivery
3 sets + PDF $2,265
3 sets + PDF

CAD + PDF Single Build


CAD files are a complete set of construction drawings delivered electronically. They can be used for any type of modification—including major design changes and engineering—and include a release granting permission to modify the plan. Most CAD plan orders are emailed the same or next business day.
 
This package also comes with a PDF set of plans and a copyright release for making modifications and printing unlimited copies.
 
CAD files are provided in .dwg format. For details on the specific CAD program used, please refer to the PLAN DETAILS section located above the floor plan on each plan’s page.

CAD + PDF Single Build $3,525
2D electronic editable computer files
STEP 2 Need To Reverse This Plan?
STEP 3 CHOOSE YOUR FOUNDATION
STEP 4 OPTIONAL ADD-ONS
Subtotal:
$2125
FREE SHIPPING

Orders for this plan will be fulfilled after January 4th. Please check our PDFs NOW!™ collection for plans that can be downloaded and received immediately or live chat, email or call us at 877-895-5299 to help you find a similar plan available immediately.

 
Plan Details
See All Details
Finished Square Footage
2,238 Sq. Ft.
Main Level:
1,478 Sq. Ft.
Lower Level:
2,238 Sq. Ft.
Total:
Room Details
3
Bedrooms:
2
Full Baths:
General House Information
1
Number of Stories:
55' 4"
Width:
44' 8"
Depth:
Single
Dwelling Number:
None
Bonus Access:
Unfinished Square Footage
61 Sq. Ft.
Porch:
252 Sq. Ft.
Rear Porch:
GARAGE
0
Garage Size:
Exterior Style
Country
Farmhouse
Modern Farmhouse
Ranch
Collections
Canada
In-Law Suite
Kitchens
Primary Suites
Open Floor Plan
Split Bedroom
Foundation
Half basement/Half crawlspace (included)
Framing Information
Truss
Roof Framing:
2x6
Exterior Wall Framing:
Roof Pitch
12/12
Primary:
Insulation (R)
House And Ceiling Heights
9
First Floor Ceiling:
23' 10"
Maximum House Height:
Key Features
Arches
Country Kitchen
Covered Rear Porch
Dining Room
Double Vanity Sink
Foyer
Front Porch
Great Room
In-law Suite
Kitchen Island
Laundry 1st Fl
L-Shaped
Primary Bdrm Main Floor
None
Nook / Breakfast Area
Open Floor Plan
Pantry
Separate Tub and Shower
Split Bedrooms
Suited for corner lot
Walk-in Closet
Walk-in Pantry

Our Guarantees

  • Only the highest quality plans
  • Int’l Residential Code Compliant
  • Full structural details on all plans
  • Best plan price guarantee
  • Free modification Estimates
  • Builder-ready construction drawings
  • Expert advice from leading designers
  •  PDFs NOW!™ plans in minutes
  • 100% satisfaction guarantee
  • Free Home Building Organizer