20% off ALL House Plans Sitewide
20% off ALL House Plans Sitewide

House Plan: DFD-10694

See All 8 Photos > (photographs may reflect modified homes)
© copyright by designer
SQ FT
3,011
BEDS
6
BATHS
3
STORIES
2
CARS
0
HOUSE PLANS SALE 
START AT  $1,932.00
For questions and help, live chat, email or call us at 877-895-5299
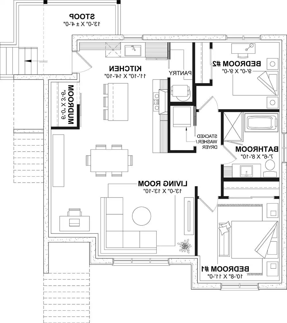
Floor Plans
Click to Zoom In on Floor Plan
 
About House Plan 10694:
Need to maximize housing on your lot? Consider a triplex like House Plan 10694 that stacks its units from the finished basement through the second floor to keep its foundation small. This multi-family home offers 3,011 square feet in total, with 1,010 square feet in the first floor and basement units and 991 square feet in the second story unit. All three include open-concept living with an island kitchen and two bedrooms that share a hall bath between them. Make sure not to miss the thoughtful design details, like every unit having its own private entry and laundry! 
House Plan Pricing
STEP 1 Select Your Package

PDF Single Build


Digital plans emailed to you in PDF format that allows for printing copies and sharing electronically with contractors, subs, decorators, and more. This package includes a license to build the home one time.

PDF Single Build $2,415
Most recommended package

3 Printed Sets + PDF


Includes 3 physical printed blueprint sets, shipped free via UPS within the U.S. Printed sets ship within 1 business day and are delivered within 3 – 5 business days. A complimentary PDF plan set is also emailed within 1 business day for easy sharing and local printing. These plans may be used to construct one home.

3 Printed Sets + PDF $2,555
3 Printed Sets + PDF

CAD + PDF Single Build


This plan package is created in AutoCAD and delivered in .DWG format. CAD files are intended for use by design professionals, structural engineers, and builders to update plans for local building codes or to make revisions based on specific needs, lot requirements, and budget considerations. A complimentary PDF copy is included with this package for reference. CAD packages are delivered within 1 to 2 business days.
 
This package also comes with a copyright release for making revisions and printing unlimited copies.

For details on the specific CAD program used, please refer to the PLAN DETAILS section located above the floor plan on each plan page.

CAD + PDF Single Build $3,800
2D electronic editable computer files
STEP 2 Need To Reverse This Plan?
STEP 3 CHOOSE YOUR FOUNDATION
STEP 4 OPTIONAL ADD-ONS
Subtotal:
$2415
FREE SHIPPING
Please allow 3-5 business days for delivery of this plan Please check our PDFs NOW collection for plans that can be downloaded and received immediately or live chat us to help you find a similar plan available now.
 
Plan Details
See All Details
Finished Square Footage
1,010 Sq. Ft.
Main Level:
991 Sq. Ft.
Upper Level:
1,010 Sq. Ft.
Lower Level:
3,011 Sq. Ft.
Total:
Room Details
6
Bedrooms:
3
Full Baths:
General House Information
2
Number of Stories:
32' 8"
Width:
34' 0"
Depth:
Multi-Family
Dwelling Number:
None
Bonus Access:
Unfinished Square Footage
GARAGE
0
Garage Size:
Exterior Style
Contemporary
Craftsman
European
Modern
Collections
Builders
Canada
Open Floor Plan
Foundation
Finished basement (included)
Framing Information
Truss
Roof Framing:
2x6
Exterior Wall Framing:
Roof Pitch
10/12
Primary:
8/12
Secondary:
Roof Load
55
Live:
20
Dead:
Insulation (R)
House And Ceiling Heights
8
First Floor Ceiling:
8
Second Floor Ceiling:
35' 3"
Maximum House Height:
Key Features
Covered Front Porch
Covered Rear Porch
Family Style
Great Room
Kitchen Island
Laundry 1st Fl
Laundry 2nd Fl
L-Shaped
None
Open Floor Plan
Separate Tub and Shower
Storage Space
Suited for corner lot
Suited for narrow lot
Walk-in Pantry

Our Guarantees

  • Only the highest quality plans
  • Int’l Residential Code Compliant
  • Full structural details on all plans
  • Best plan price guarantee
  • Free modification Estimates
  • Builder-ready construction drawings
  • Expert advice from leading designers
  •  PDFs NOW!™ plans in minutes
  • 100% satisfaction guarantee
  • Free Home Building Organizer