20% Off House Plans Sitewide Ends Sunday
20% Off House Plans Sitewide Ends Sunday

House Plan: DFD-10695

See All 16 Photos > (photographs may reflect modified homes)
© copyright by designer
SQ FT
2,184
BEDS
3
BATHS
2.5
STORIES
2
CARS
0
HOUSE PLANS SALE 
START AT  $1,324.00
For questions and help, live chat, email or call us at 877-895-5299
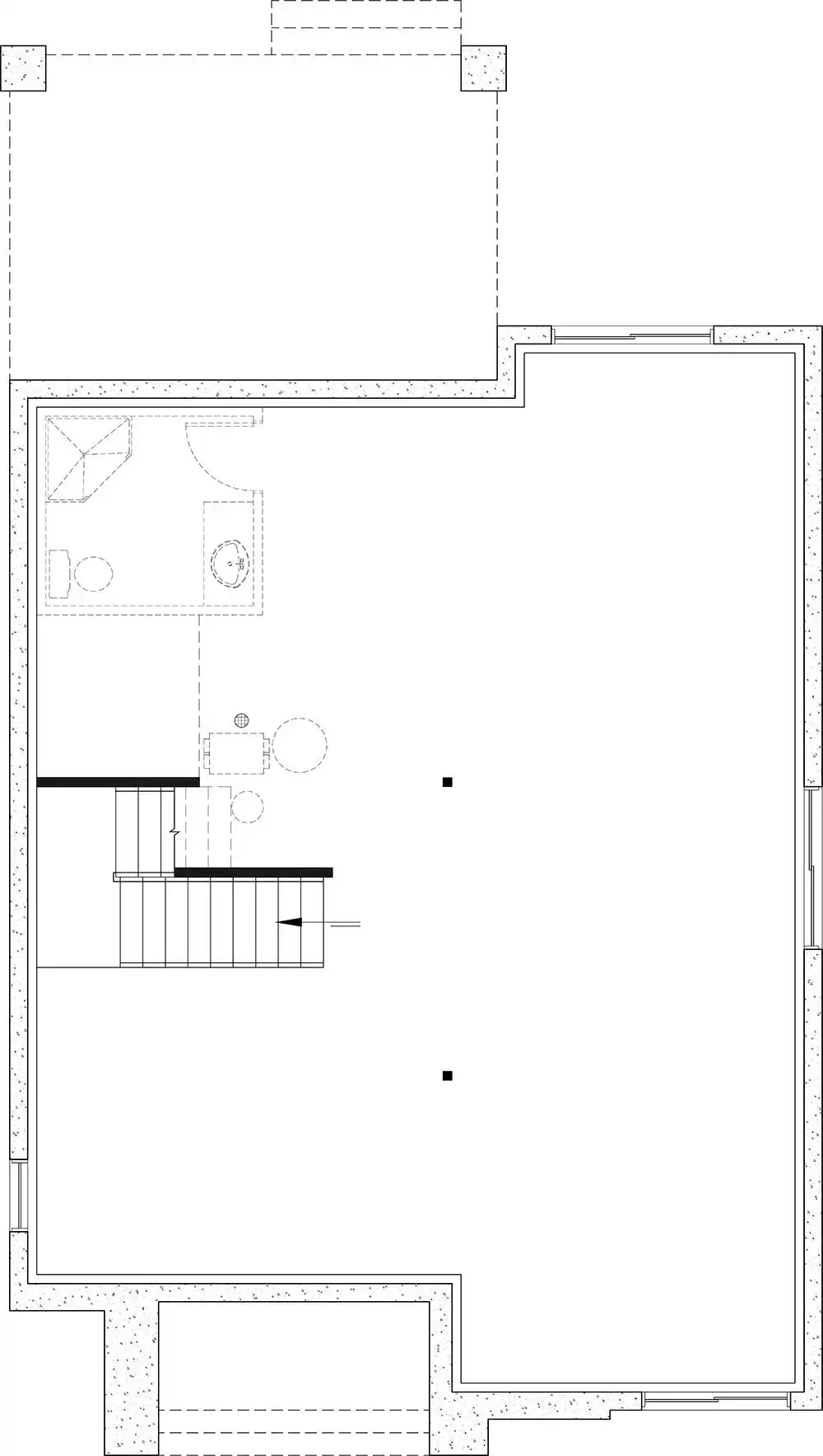
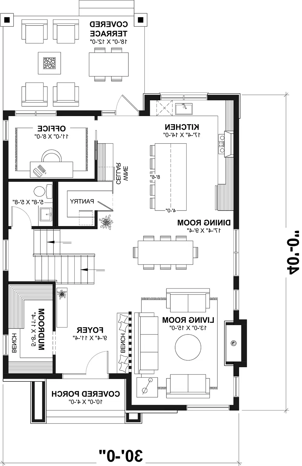
Floor Plans
Click to Zoom In on Floor Plan
 
About House Plan 10695:
Need an amazing modern home in a compact shape? See if House Plan 10695 is the right fit! With 2,184 square feet, three bedrooms, and two-and-a-half bathrooms on two stories, it delivers everything that most families ask for. Step inside and the main level features a totally open great room with a fireplace in the living area and an island kitchen, a private office in back, and plenty of storage from the mudroom in the entry, to the walk-in pantry, to the wine cellar. Upstairs, you'll find all the bedrooms--a five-piece primary suite and two that share a hall bath--along with the laundry room for convenience. Finally, there's even some covered outdoor living in back if you want to catch the fresh air or dine al fresco! 
House Plan Pricing
STEP 1 Select Your Package

PDF Single Build


Digital plans emailed to you in PDF format that allows for printing copies and sharing electronically with contractors, subs, decorators, and more. This package includes a license to build the home one time.

PDF Single Build $1,655
Most recommended package

3 sets + PDF


Please allow 3-5 days for delivery
3 sets + PDF $1,795
3 sets + PDF

CAD + PDF Single Build


CAD files are a complete set of construction drawings delivered electronically. They can be used for any type of modification—including major design changes and engineering—and include a release granting permission to modify the plan. Most CAD plan orders are emailed the same or next business day.
 
This package also comes with a PDF set of plans and a copyright release for making modifications and printing unlimited copies.
 
CAD files are provided in .dwg format. For details on the specific CAD program used, please refer to the PLAN DETAILS section located above the floor plan on each plan’s page.

CAD + PDF Single Build $2,655
2D electronic editable computer files
STEP 2 Need To Reverse This Plan?
STEP 3 CHOOSE YOUR FOUNDATION
STEP 4 OPTIONAL ADD-ONS
Subtotal:
$1655
FREE SHIPPING
Please allow 3-5 business days for delivery of this plan Please check our PDFs NOW collection for plans that can be downloaded and received immediately or live chat us to help you find a similar plan available now.
 
Plan Details
See All Details
Finished Square Footage
1,107 Sq. Ft.
Main Level:
1,077 Sq. Ft.
Upper Level:
1,101 Sq. Ft.
Lower Level:
2,184 Sq. Ft.
Total:
Room Details
3
Bedrooms:
2
Full Baths:
1
Half Baths:
General House Information
2
Number of Stories:
30' 0"
Width:
40' 0"
Depth:
Single
Dwelling Number:
None
Bonus Access:
Unfinished Square Footage
40 Sq. Ft.
Front Porch:
180 Sq. Ft.
Rear Porch:
GARAGE
0
Garage Size:
Exterior Style
Coastal
Contemporary
Mid-Century Modern
Modern
Collections
Canada
Kitchens
Primary Suites
Open Floor Plan
Outdoor Living
Foundation
Crawlspace
Floating slab
Full Unfinished Basement (included)
Monolithic slab
Framing Information
Truss
Roof Framing:
2x6
Exterior Wall Framing:
Roof Pitch
5/12
Primary:
Roof Load
55
Live:
20
Dead:
Insulation (R)
House And Ceiling Heights
9
First Floor Ceiling:
9
Second Floor Ceiling:
28' 4"
Maximum House Height:
Key Features
Covered Front Porch
Covered Rear Porch
Double Vanity Sink
Family Style
Fireplace
Foyer
Great Room
Home Office
Kitchen Island
Laundry 2nd Fl
L-Shaped
Primary Bdrm Upstairs
Mud Room
None
Open Floor Plan
Outdoor Living Space
Separate Tub and Shower
Suited for narrow lot
Unfinished Space
Walk-in Closet
Walk-in Pantry
Wine Cellar

Our Guarantees

  • Only the highest quality plans
  • Int’l Residential Code Compliant
  • Full structural details on all plans
  • Best plan price guarantee
  • Free modification Estimates
  • Builder-ready construction drawings
  • Expert advice from leading designers
  •  PDFs NOW!™ plans in minutes
  • 100% satisfaction guarantee
  • Free Home Building Organizer