15% off ALL House Plans Sitewide
15% off ALL House Plans Sitewide

House Plan: DFD-10696

See All 9 Photos > (photographs may reflect modified homes)
© copyright by designer
SQ FT
1,736
BEDS
3
BATHS
1.5
STORIES
2
CARS
1
HOUSE PLANS SALE 
START AT  $1,428.00
For questions and help, live chat, email or call us at 877-895-5299
Floor Plans
Click to Zoom In on Floor Plan
 
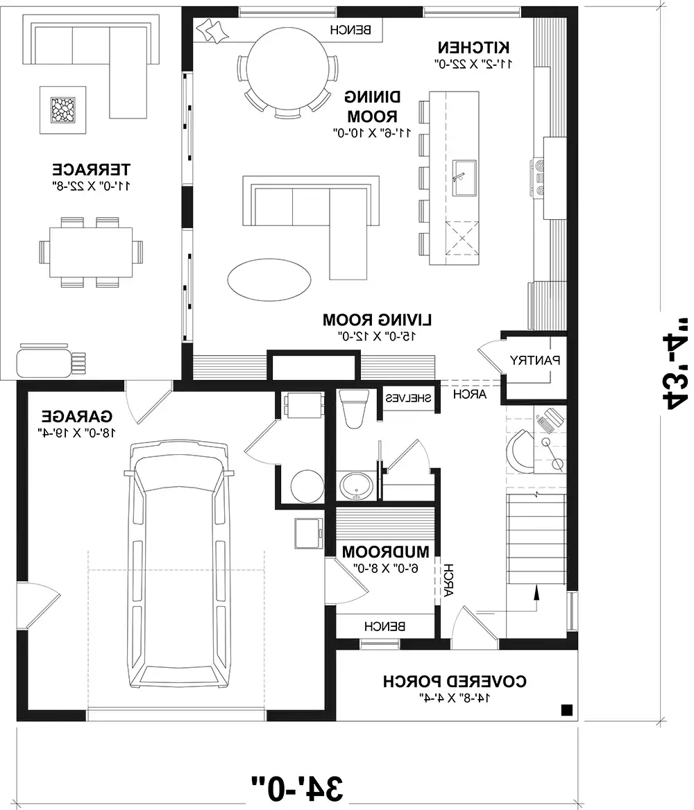
About House Plan 10696:
With 1,736 square feet of heated space, this inviting home blends smart planning with comfortable family living. The open main level brings together the family room, dining space, and kitchen, highlighted by a functional island and walk-in pantry. Architectural arches add subtle character while maintaining an open, airy feel throughout the living areas. A home office on the main floor offers a quiet workspace, while the mud room helps keep daily routines organized. Upstairs, the primary suite features his and hers walk-in closets and a spacious bath with a separate tub and shower and double vanity sinks. Additional bedrooms are conveniently located nearby, creating a cohesive and family-friendly layout. Finished with a covered front porch and an attached garage, this home delivers everyday comfort with lasting appeal.
House Plan Pricing
STEP 1 Select Your Package

PDF Single Build


Digital plans emailed to you in PDF format that allows for printing copies and sharing electronically with contractors, subs, decorators, and more. This package includes a license to build the home one time.

PDF Single Build $1,680
Most recommended package

3 Printed Sets + PDF


Includes 3 physical printed blueprint sets, shipped free via UPS within the U.S. Printed sets ship within 1 business day and are delivered within 3 – 5 business days. A complimentary PDF plan set is also emailed within 1 business day for easy sharing and local printing. These plans may be used to construct one home.

3 Printed Sets + PDF $1,820
3 Printed Sets + PDF

CAD + PDF Single Build


This plan package is created in AutoCAD and delivered in .DWG format. CAD files are intended for use by design professionals, structural engineers, and builders to update plans for local building codes or to make revisions based on specific needs, lot requirements, and budget considerations. A complimentary PDF copy is included with this package for reference. CAD packages are delivered within 1 to 2 business days.
 
This package also comes with a copyright release for making revisions and printing unlimited copies.

For details on the specific CAD program used, please refer to the PLAN DETAILS section located above the floor plan on each plan page.

CAD + PDF Single Build $2,680
2D electronic editable computer files
STEP 2 Need To Reverse This Plan?
STEP 3 CHOOSE YOUR FOUNDATION
STEP 4 OPTIONAL ADD-ONS
Subtotal:
$1680
FREE SHIPPING
Please allow 3-5 business days for delivery of this plan Please check our PDFs NOW collection for plans that can be downloaded and received immediately or live chat us to help you find a similar plan available now.
 
Plan Details
See All Details
Finished Square Footage
800 Sq. Ft.
Main Level:
936 Sq. Ft.
Upper Level:
1,736 Sq. Ft.
Total:
Room Details
3
Bedrooms:
1
Full Baths:
1
Half Baths:
General House Information
2
Number of Stories:
34' 0"
Width:
43' 4"
Depth:
Single
Dwelling Number:
Unfinished Square Footage
381 Sq. Ft.
Garage:
GARAGE
Front
Garage Location:
1
Garage Size:
Exterior Style
Contemporary
Country
Farmhouse
Modern Farmhouse
Transitional
Collections
Canada
First Home
Open Floor Plan
Foundation
Crawlspace
Floating slab (included)
Monolithic slab
Framing Information
Truss
Roof Framing:
2x6
Exterior Wall Framing:
Roof Pitch
8/12
Primary:
Insulation (R)
House And Ceiling Heights
9
First Floor Ceiling:
8
Second Floor Ceiling:
27' 6"
Maximum House Height:
Key Features
Arches
Attached
Covered Front Porch
Dining Room
Double Vanity Sink
Family Room
Family Style
Front-entry
His and Hers Primary Closets
Home Office
Kitchen Island
Laundry 2nd Fl
Primary Bdrm Upstairs
Mud Room
Open Floor Plan
Separate Tub and Shower
Suited for corner lot
Walk-in Closet
Walk-in Pantry

Our Guarantees

  • Only the highest quality plans
  • Int’l Residential Code Compliant
  • Full structural details on all plans
  • Best plan price guarantee
  • Free modification Estimates
  • Builder-ready construction drawings
  • Expert advice from leading designers
  •  PDFs NOW!™ plans in minutes
  • 100% satisfaction guarantee
  • Free Home Building Organizer