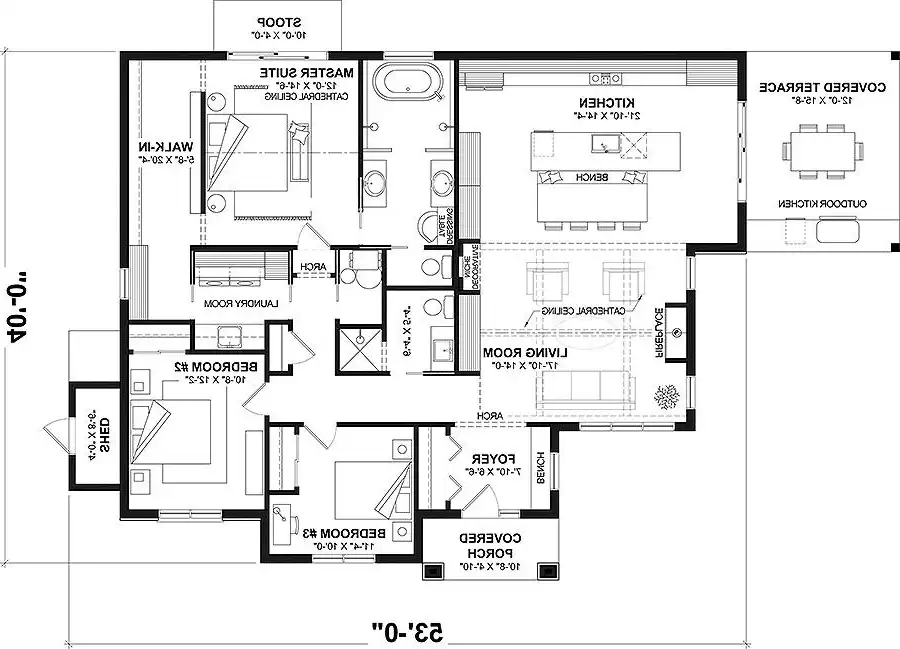
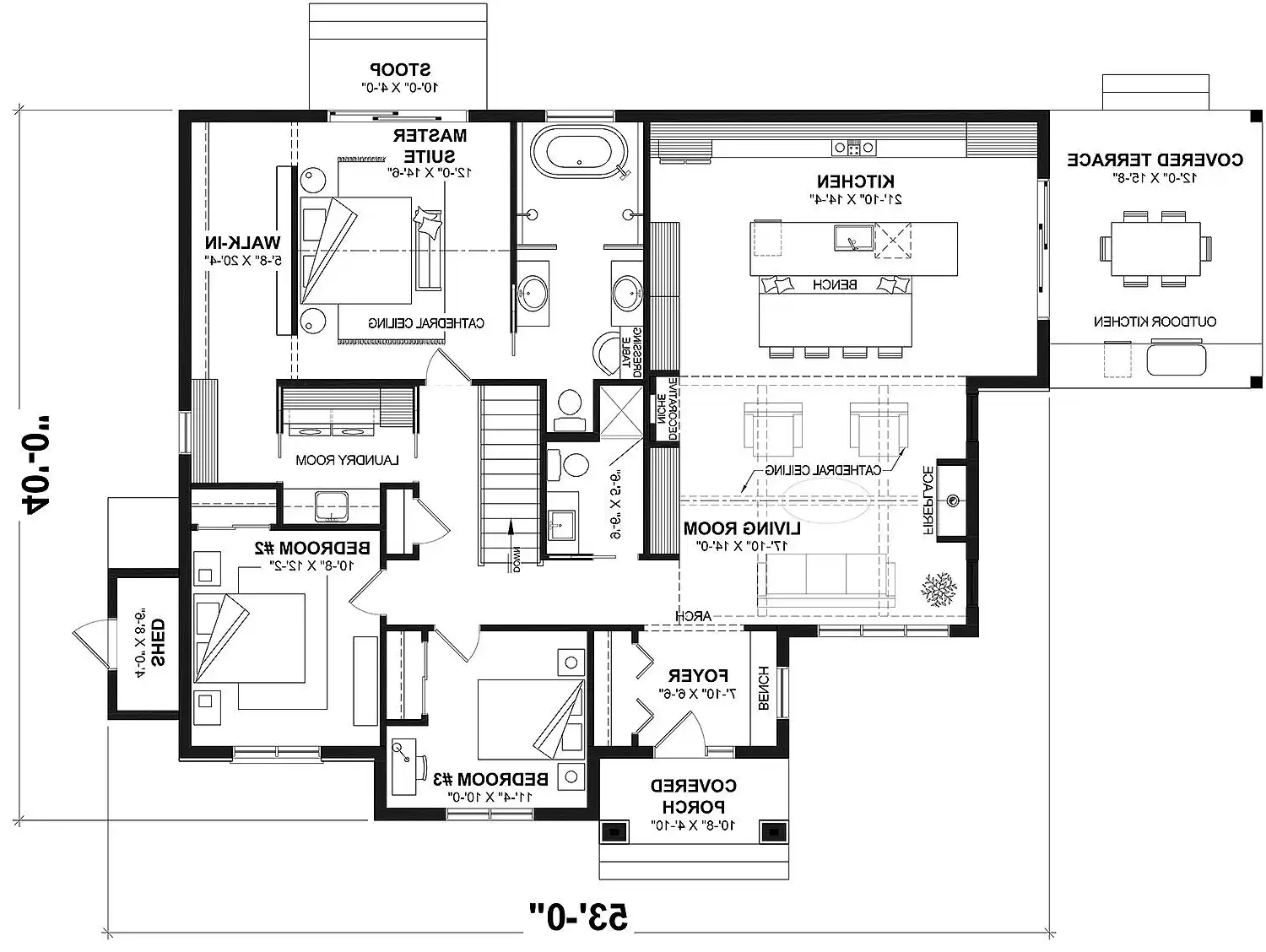
Check out House Plan 10697 if you need a wonderful one-story cottage with a thoughtful interior. This transitional home offers 1,676 square feet with three bedrooms and two bathrooms. The traditionally-inspired layout places the common areas on one side and the sleeping quarters on the other. The great room stands out with a stunning cathedral vaulted living space open to the eat-in kitchen with its own dinette. Plus, it connects to the terrace with the outdoor kitchen! The hallway on the side places two bedrooms in front, a bathroom across the hall, and the luxe five-piece primary suite with a vaulted bedroom in back. The laundry is centrally located but conveniently connects to the suite's walk-in closet, too!
Check out House Plan 10697 if you need a wonderful one-story cottage with a thoughtful interior. This transitional home offers 1,676 square feet with three bedrooms and two bathrooms. The traditionally-inspired layout places the common areas on one side and the sleeping quarters on the other. The great room stands out with a stunning cathedral vaulted living space open to the eat-in kitchen with its own dinette. Plus, it connects to the terrace with the outdoor kitchen! The hallway on the side places two bedrooms in front, a bathroom across the hall, and the luxe five-piece primary suite with a vaulted bedroom in back. The laundry is centrally located but conveniently connects to the suite's walk-in closet, too!