15% off ALL House Plans Sitewide
15% off ALL House Plans Sitewide

House Plan: DFD-10699

See All 4 Photos > (photographs may reflect modified homes)
© copyright by designer
SQ FT
1,864
BEDS
3
BATHS
2.5
STORIES
2
CARS
0
HOUSE PLANS SALE 
START AT  $1,406.75
For questions and help, live chat, email or call us at 877-895-5299
Floor Plans
Click to Zoom In on Floor Plan
 
About House Plan 10699:
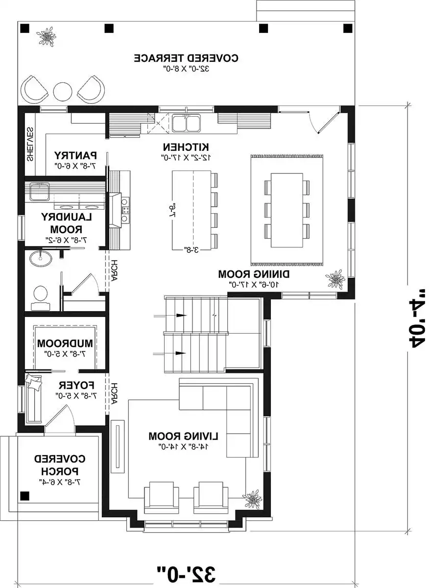
Designed for comfortable family living, this 1,864 square foot home blends function and warmth in a compact yet open layout. The main level centers around a spacious family room that flows naturally into the dining area and kitchen, creating an ideal setting for gathering and entertaining. The kitchen includes a generous island, walk-in pantry, butler’s pantry, and a country-style layout that emphasizes both charm and usability. A foyer with graceful arches welcomes guests, while the mud room and first-floor laundry help keep daily routines organized. Upstairs, the primary suite features a relaxing sitting area, walk-in closet, and a well-appointed bath with a separate tub and shower. Secondary bedrooms are thoughtfully placed nearby for convenience. Finished with a covered front porch, this home offers a warm and inviting design that feels comfortable from the moment you arrive.
House Plan Pricing
STEP 1 Select Your Package

PDF Single Build


Digital plans emailed to you in PDF format that allows for printing copies and sharing electronically with contractors, subs, decorators, and more. This package includes a license to build the home one time.

PDF Single Build $1,655
Most recommended package

3 Printed Sets + PDF


Includes 3 physical printed blueprint sets, shipped free via UPS within the U.S. Printed sets ship within 1 business day and are delivered within 3 – 5 business days. A complimentary PDF plan set is also emailed within 1 business day for easy sharing and local printing. These plans may be used to construct one home.

3 Printed Sets + PDF $1,880
3 Printed Sets + PDF

CAD + PDF Single Build


This plan package is created in AutoCAD and delivered in .DWG format. CAD files are intended for use by design professionals, structural engineers, and builders to update plans for local building codes or to make revisions based on specific needs, lot requirements, and budget considerations. A complimentary PDF copy is included with this package for reference. CAD packages are delivered within 1 to 2 business days.
 
This package also comes with a copyright release for making revisions and printing unlimited copies.

For details on the specific CAD program used, please refer to the PLAN DETAILS section located above the floor plan on each plan page.

CAD + PDF Single Build $2,740
2D electronic editable computer files
STEP 2 Need To Reverse This Plan?
STEP 3 CHOOSE YOUR FOUNDATION
STEP 4 OPTIONAL ADD-ONS
Subtotal:
$1655
FREE SHIPPING
Please allow 3-5 business days for delivery of this plan Please check our PDFs NOW collection for plans that can be downloaded and received immediately or live chat us to help you find a similar plan available now.
 
Plan Details
See All Details
Finished Square Footage
1,040 Sq. Ft.
Main Level:
824 Sq. Ft.
Upper Level:
1,040 Sq. Ft.
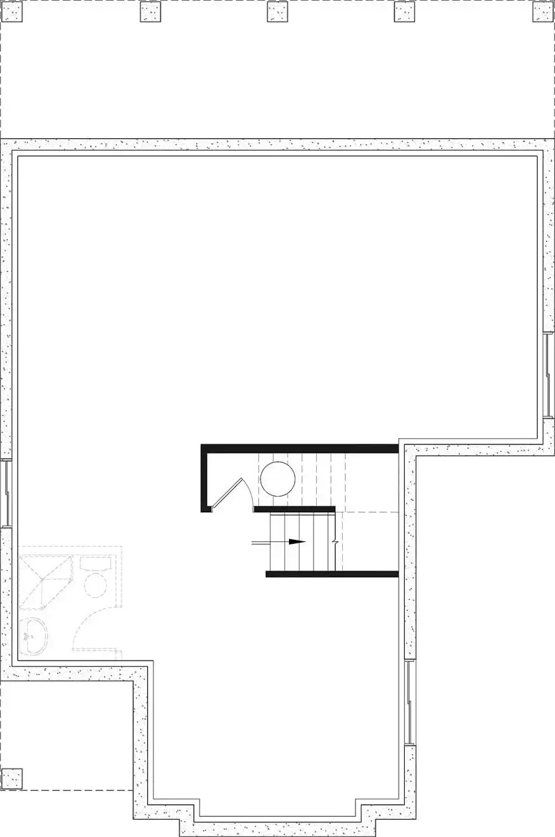
Lower Level:
1,864 Sq. Ft.
Total:
Room Details
3
Bedrooms:
2
Full Baths:
1
Half Baths:
General House Information
2
Number of Stories:
30' 0"
Width:
40' 0"
Depth:
Single
Dwelling Number:
None
Bonus Access:
Unfinished Square Footage
GARAGE
0
Garage Size:
Exterior Style
Colonial
Cottage
Traditional
Transitional
Collections
Canada
First Home
Open Floor Plan
Foundation
Crawlspace
Floating slab (included)
Full Unfinished Basement (included)
Monolithic slab
Framing Information
Truss
Roof Framing:
2x6
Exterior Wall Framing:
Roof Pitch
10/12
Primary:
Insulation (R)
House And Ceiling Heights
9
First Floor Ceiling:
8
Second Floor Ceiling:
29' 4"
Maximum House Height:
Key Features
Arches
Butler's Pantry
Country Kitchen
Covered Front Porch
Dining Room
Family Room
Foyer
Kitchen Island
Laundry 1st Fl
L-Shaped
Primary Bdrm Upstairs
Mud Room
Open Floor Plan
Separate Tub and Shower
Sitting Area
Suited for corner lot
Suited for narrow lot
Suited for view lot
Walk-in Closet
Walk-in Pantry

Our Guarantees

  • Only the highest quality plans
  • Int’l Residential Code Compliant
  • Full structural details on all plans
  • Best plan price guarantee
  • Free modification Estimates
  • Builder-ready construction drawings
  • Expert advice from leading designers
  •  PDFs NOW!™ plans in minutes
  • 100% satisfaction guarantee
  • Free Home Building Organizer