House Plan: DFD-10701

See All 12 Photos > (photographs may reflect modified homes)
© copyright by designer
SQ FT
2,085
BEDS
3
BATHS
2
STORIES
1
CARS
0
PLANS FROM $2,125
For questions and help, live chat, email or call us at 877-895-5299
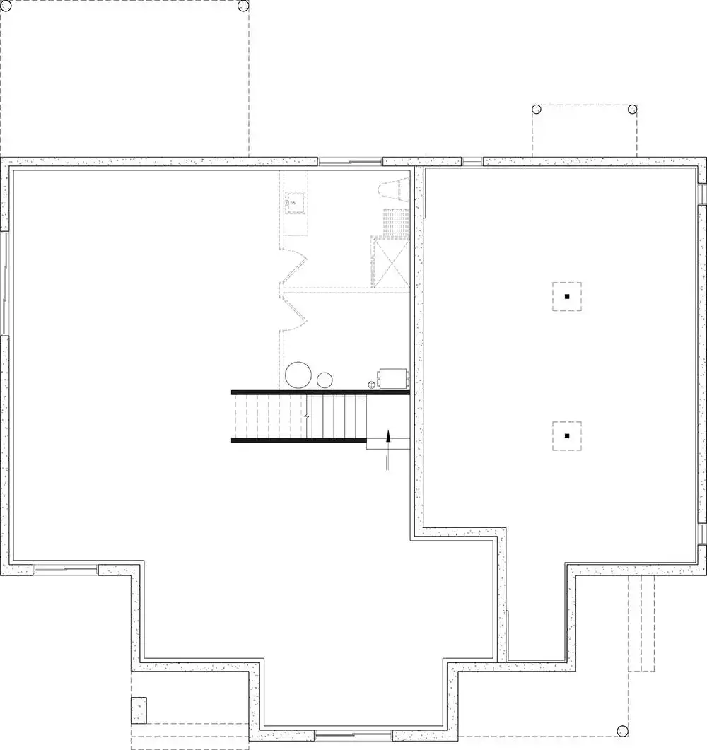
Floor Plans
Click to Zoom In on Floor Plan
 
About House Plan 10701:
Need a great home for yourself and family? House Plan 10701 is a multigenerational ranch that delivers two units, one roughly twice the size of the other, to keep everybody comfortable. The main unit has open-concept living with a vaulted great room and an island kitchen, a primary suite with a five-piece bathroom that also has hall access, and a secondary bedroom in back, by the laundry room. The secondary unit has open-concept living with an island kitchen, a large bedroom, and a four-piece hall bathroom. Both sides have their own unique exterior entries and also connect through the laundry! 
House Plan Pricing
STEP 1 Select Your Package

PDF Single Build


Digital plans emailed to you in PDF format that allows for printing copies and sharing electronically with contractors, subs, decorators, and more. This package includes a license to build the home one time.

PDF Single Build $2,125
Most recommended package

3 Printed Sets + PDF


Includes 3 physical printed blueprint sets, shipped free via UPS within the U.S. Printed sets ship within 1 business day and are delivered within 3 – 5 business days. A complimentary PDF plan set is also emailed within 1 business day for easy sharing and local printing. These plans may be used to construct one home.

3 Printed Sets + PDF $2,265
3 Printed Sets + PDF

CAD + PDF Single Build


This plan package is created in AutoCAD and delivered in .DWG format. CAD files are intended for use by design professionals, structural engineers, and builders to update plans for local building codes or to make revisions based on specific needs, lot requirements, and budget considerations. A complimentary PDF copy is included with this package for reference. CAD packages are delivered within 1 to 2 business days.
 
This package also comes with a copyright release for making revisions and printing unlimited copies.

For details on the specific CAD program used, please refer to the PLAN DETAILS section located above the floor plan on each plan page.

CAD + PDF Single Build $3,525
2D electronic editable computer files
STEP 2 Need To Reverse This Plan?
STEP 3 CHOOSE YOUR FOUNDATION
STEP 4 OPTIONAL ADD-ONS
Subtotal:
$2125
FREE SHIPPING
Please allow 3-5 business days for delivery of this plan Please check our PDFs NOW collection for plans that can be downloaded and received immediately or live chat us to help you find a similar plan available now.
 
Plan Details
See All Details
Finished Square Footage
2,085 Sq. Ft.
Main Level:
1,353 Sq. Ft.
Lower Level:
2,085 Sq. Ft.
Total:
Room Details
3
Bedrooms:
2
Full Baths:
General House Information
1
Number of Stories:
54' 0"
Width:
44' 8"
Depth:
Single
Dwelling Number:
None
Bonus Access:
Unfinished Square Footage
129 Sq. Ft.
Front Porch:
GARAGE
0
Garage Size:
Exterior Style
Cottage
European
Ranch
Traditional
Transitional
Collections
Canada
In-Law Suite
Primary Suites
Open Floor Plan
Split Bedroom
Foundation
Crawlspace
Floating slab
Half basement/Half crawlspace (included)
Monolithic slab
Framing Information
2x6
Exterior Wall Framing:
Roof Pitch
7/12
Primary:
Insulation (R)
House And Ceiling Heights
9
First Floor Ceiling:
24' 1"
Maximum House Height:
Key Features
Arches
Covered Front Porch
Covered Rear Porch
Double Vanity Sink
Foyer
Great Room
In-law Suite
Kitchen Island
Laundry 1st Fl
L-Shaped
Primary Bdrm Main Floor
Mud Room
None
Open Floor Plan
Separate Tub and Shower
Split Bedrooms
Vaulted Ceilings
Vaulted Great Room/Living
Walk-in Closet
Walk-in Pantry

Our Guarantees

  • Only the highest quality plans
  • Int’l Residential Code Compliant
  • Full structural details on all plans
  • Best plan price guarantee
  • Free modification Estimates
  • Builder-ready construction drawings
  • Expert advice from leading designers
  •  PDFs NOW!™ plans in minutes
  • 100% satisfaction guarantee
  • Free Home Building Organizer