20% Off House Plans Sitewide Ends Sunday
20% Off House Plans Sitewide Ends Sunday

House Plan: DFD-10704

See All 5 Photos > (photographs may reflect modified homes)
© copyright by designer
SQ FT
1,596
BEDS
3
BATHS
2
STORIES
1
CARS
2
HOUSE PLANS SALE 
START AT  $1,379.20
For questions and help, live chat, email or call us at 877-895-5299
Floor Plans
Click to Zoom In on Floor Plan
 
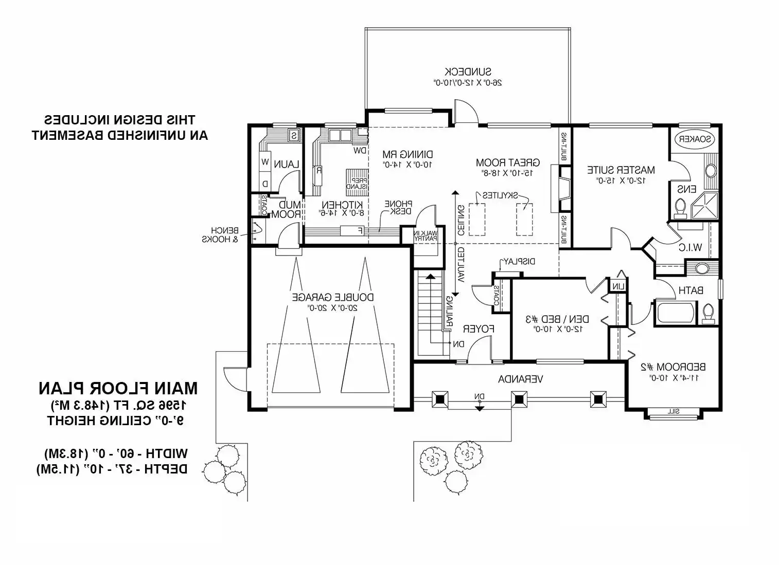
About House Plan 10704:
House Plan 10704 delivers cozy one-level living with a bright, open layout and thoughtful features throughout its 1,596-square-foot design. The covered veranda leads into a vaulted foyer that flows into the great room and dining area, highlighted by skylights, built-in shelving, and a welcoming fireplace. The kitchen’s efficient L-shaped layout includes a prep island, walk-in pantry, and windowed sink area for natural light. The master suite provides a peaceful retreat with views of the backyard, a luxurious ensuite with a soaker tub and shower, and a large walk-in closet. Two additional bedrooms—or one bedroom plus a den—share a full bath, while the mudroom and laundry near the double garage keep daily routines organized. A sundeck off the dining area overlooks the garden, offering a perfect outdoor retreat. Designed with elegance and practicality, this bungalow balances warmth, space, and livability for modern families.
House Plan Pricing
STEP 1 Select Your Package

PDF Single Build


Digital plans emailed to you in PDF format that allows for printing copies and sharing electronically with contractors, subs, decorators, and more. This package includes a license to build the home one time.

PDF Single Build $1,724
Most recommended package

5 Printed Sets + PDF


Digital plan emailed to you in PDF format that allows for printing copies on a home printer or local print shop and sharing with contractors, subs, decorators, and more. PLUS five printed sets shipped and delivered 3-5 business days.

5 Printed Sets + PDF $1,881
Digital plans plus 5 printed sets

CAD + PDF Single Build


CAD files are a complete set of construction drawings delivered electronically. They can be used for any type of modification—including major design changes and engineering—and include a release granting permission to modify the plan. Most CAD plan orders are emailed the same or next business day.
 
This package also comes with a PDF set of plans and a copyright release for making modifications and printing unlimited copies.
 
CAD files are provided in .dwg format. For details on the specific CAD program used, please refer to the PLAN DETAILS section located above the floor plan on each plan’s page.

CAD + PDF Single Build $3,201
2D electronic editable computer files

CAD + PDF Unlimited Build


CAD files are a complete set of construction drawings delivered electronically. They can be used for any type of modification—including major design changes and engineering—and include a release granting permission to modify the plan. Most CAD plan orders are emailed the same or next business day.
 
This package also comes with a PDF set of plans and a multi-use building license, granting permission to construct the home an unlimited number of times, along with a copyright release for making modifications and printing unlimited copies.
 
CAD files are provided in .dwg format. For details on the specific CAD program used, please refer to the PLAN DETAILS section located above the floor plan on each plan’s page.

CAD + PDF Unlimited Build $6,312
2D electronic editable computer files
STEP 2 Need To Reverse This Plan?
STEP 3 CHOOSE YOUR FOUNDATION
STEP 4 OPTIONAL ADD-ONS
Subtotal:
$1724
FREE SHIPPING

Note: C
 
Plan Details
See All Details
Finished Square Footage
1,596 Sq. Ft.
Main Level:
1,596 Sq. Ft.
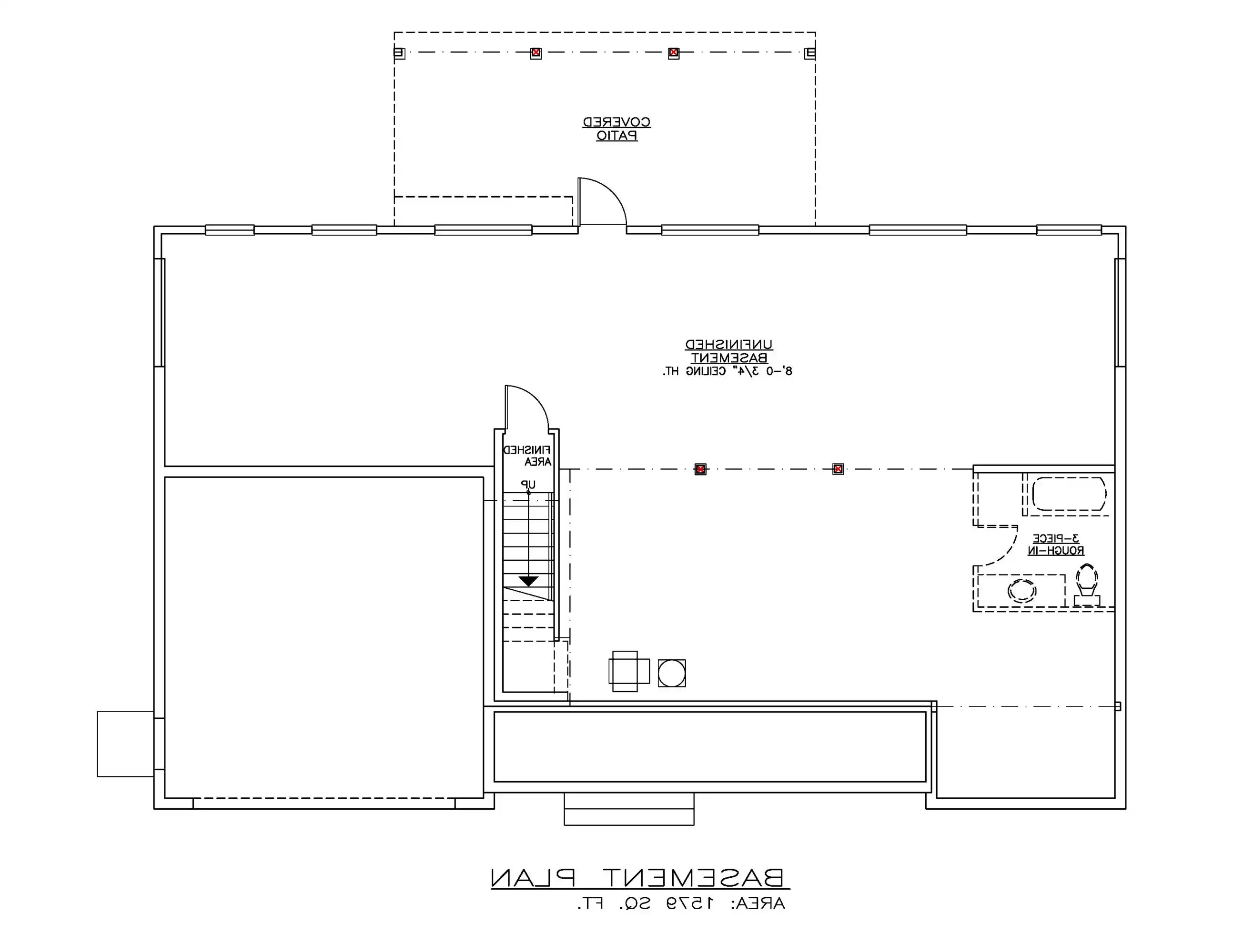
Lower Level:
1,596 Sq. Ft.
Total:
Room Details
3
Bedrooms:
2
Full Baths:
General House Information
1
Number of Stories:
60' 0"
Width:
37' 10"
Depth:
Single
Dwelling Number:
Unfinished Square Footage
424 Sq. Ft.
Garage:
130 Sq. Ft.
Front Porch:
312 Sq. Ft.
Deck:
GARAGE
Front
Garage Location:
2
Garage Size:
Exterior Style
Bungalow
Country
Ranch
Traditional
Collections
Affordable
Architects Choice
Budget
Builders
Canada
First Home
Open Floor Plan
Foundation
Basement
Crawl Space
Slab
Walkout Basement
Framing Information
Truss
Roof Framing:
2x6
Exterior Wall Framing:
Roof Pitch
7/12
Primary:
Insulation (R)
Per IRC Climate Zones
House And Ceiling Heights
9
First Floor Ceiling:
21' 6"
Maximum House Height:
Key Features
2 Story Volume
Attached
Country Kitchen
Covered Front Porch
Deck
Family Style
Fireplace
Foyer
Front-entry
Great Room
Kitchen Island
Laundry 1st Fl
Primary Bdrm Main Floor
Mud Room
Open Floor Plan
Pantry
Separate Tub and Shower
Storage Space
Suited for narrow lot
Suited for sloping lot
Suited for view lot
Unfinished Space
U-Shaped
Vaulted Ceilings
Vaulted Foyer
Vaulted Great Room/Living
Walk-in Closet
Walk-in Pantry

Our Guarantees

  • Only the highest quality plans
  • Int’l Residential Code Compliant
  • Full structural details on all plans
  • Best plan price guarantee
  • Free modification Estimates
  • Builder-ready construction drawings
  • Expert advice from leading designers
  •  PDFs NOW!™ plans in minutes
  • 100% satisfaction guarantee
  • Free Home Building Organizer