20% off ALL House Plans Sitewide
20% off ALL House Plans Sitewide

House Plan: DFD-10897

See All 9 Photos > (photographs may reflect modified homes)
© copyright by designer
SQ FT
1,679
BEDS
2
BATHS
2
STORIES
1
CARS
0
HOUSE PLANS SALE 
START AT  $1,000.00
For questions and help, live chat, email or call us at 877-895-5299
Floor Plans
Click to Zoom In on Floor Plan
 
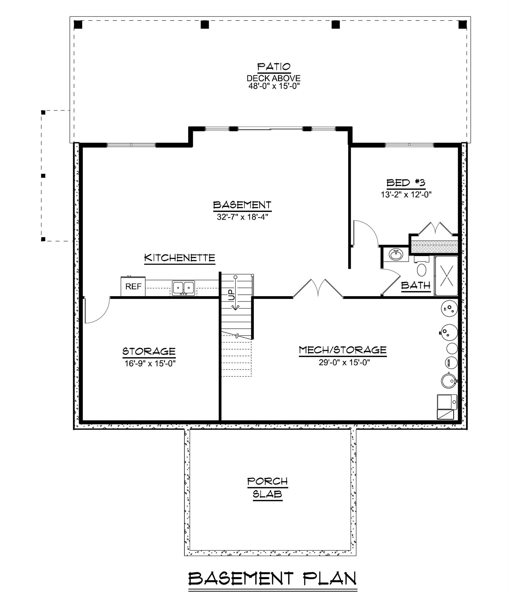
About House Plan 10897:
House Plan 10897 delivers the same thoughtfully designed layout as its sister plan, House Plan 10898, but without a garage, making it ideal for compact lots or alternative parking solutions. This 1,679-square-foot modern barndominium-style home features sloped ceilings, open living areas, and a bright great room that connects to the dining area and well-equipped kitchen with island and walk-in pantry. A large front porch and an expansive covered rear deck extend the living space outdoors. The split-bedroom layout includes a private primary suite with spa-inspired ensuite and walk-in closet, and a second bedroom with its own bathroom and storage. The optional 1,720-square-foot lower level includes a third bedroom, kitchenette, and abundant flex space to customize to your lifestyle.
House Plan Pricing
STEP 1 Select Your Package

PDF Single Build


Digital plans emailed to you in PDF format that allows for printing copies and sharing electronically with contractors, subs, decorators, and more. This package includes a license to build the home one time.

PDF Single Build $1,250
Most recommended package

5 Printed Sets + PDF


Digital plan emailed to you in PDF format that allows for printing copies on a home printer or local print shop and sharing with contractors, subs, decorators, and more. PLUS five printed sets shipped and delivered 3-5 business days.

5 Printed Sets + PDF $1,600
Digital plans plus 5 printed sets

PDF Unlimited Build


Digital plans with an unlimited build license emailed in PDF format, that allows for printing copies on a home printer or local print shop and sharing with contractors, subs, decorators and more 

PDF Unlimited Build $1,850
Digital plans including unlimited build license

CAD + PDF Single Build


CAD files are a complete set of construction drawings delivered electronically. They can be used for any type of modification—including major design changes and engineering—and include a release granting permission to modify the plan. Most CAD plan orders are emailed the same or next business day.
 
This package also comes with a PDF set of plans and a copyright release for making modifications and printing unlimited copies.
 
CAD files are provided in .dwg format. For details on the specific CAD program used, please refer to the PLAN DETAILS section located above the floor plan on each plan’s page.

CAD + PDF Single Build $2,300
2D electronic editable computer files

CAD + PDF Unlimited Build


CAD files are a complete set of construction drawings delivered electronically. They can be used for any type of modification—including major design changes and engineering—and include a release granting permission to modify the plan. Most CAD plan orders are emailed the same or next business day.
 
This package also comes with a PDF set of plans and a multi-use building license, granting permission to construct the home an unlimited number of times, along with a copyright release for making modifications and printing unlimited copies.
 
CAD files are provided in .dwg format. For details on the specific CAD program used, please refer to the PLAN DETAILS section located above the floor plan on each plan’s page.

CAD + PDF Unlimited Build $2,850
2D electronic editable computer files
STEP 2 Need To Reverse This Plan?
STEP 3 CHOOSE YOUR FOUNDATION
STEP 4 OPTIONAL ADD-ONS
Subtotal:
$1250
FREE SHIPPING
 
Plan Details
See All Details
Finished Square Footage
1,679 Sq. Ft.
Main Level:
1,720 Sq. Ft.
Lower Level:
1,679 Sq. Ft.
Total:
Room Details
2
Bedrooms:
2
Full Baths:
General House Information
1
Number of Stories:
52' 0"
Width:
65' 0"
Depth:
Single
Dwelling Number:
None
Bonus Access:
Unfinished Square Footage
300 Sq. Ft.
Front Porch:
657 Sq. Ft.
Rear Porch:
GARAGE
0
Garage Size:
Exterior Style
Barndominium
Cottage
Country
Craftsman
Lake
Modern Farmhouse
Ranch
Collections
Affordable
Budget
First Home
Kitchens
Primary Suites
Mountain
Open Floor Plan
Outdoor Living
Split Bedroom
Vacation
Foundation
Basement
Crawl Space
Slab
Framing Information
Stick
Roof Framing:
2x6
Exterior Wall Framing:
Roof Pitch
2/12
Primary:
6/12
Secondary:
Roof Load
30 psf
Live:
Insulation (R)
19
Exterior Wall:
36
Ceiling:
House And Ceiling Heights
9
First Floor Ceiling:
`
Second Floor Ceiling:
18' 10"
Maximum House Height:
Key Features
Country Kitchen
Covered Front Porch
Covered Rear Porch
Deck
Dining Room
Double Vanity Sink
Foyer
Great Room
Guest Suite
Kitchen Island
Laundry 1st Fl
Primary Bdrm Main Floor
Open Floor Plan
Outdoor Living Space
Pantry
Split Bedrooms
Storage Space
Suited for sloping lot
Suited for view lot
Walk-in Closet
Walk-in Pantry

Our Guarantees

  • Only the highest quality plans
  • Int’l Residential Code Compliant
  • Full structural details on all plans
  • Best plan price guarantee
  • Free modification Estimates
  • Builder-ready construction drawings
  • Expert advice from leading designers
  •  PDFs NOW!™ plans in minutes
  • 100% satisfaction guarantee
  • Free Home Building Organizer