20% Off House Plans Sitewide Ends Sunday
20% Off House Plans Sitewide Ends Sunday

House Plan: DFD-10939

See All 3 Photos > (photographs may reflect modified homes)
© copyright by designer
SQ FT
2,051
BEDS
3
BATHS
2.5
STORIES
3
CARS
0
HOUSE PLANS SALE 
START AT  $1,200.00
For questions and help, live chat, email or call us at 877-895-5299
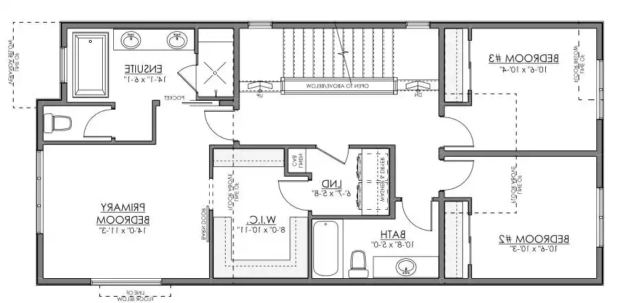
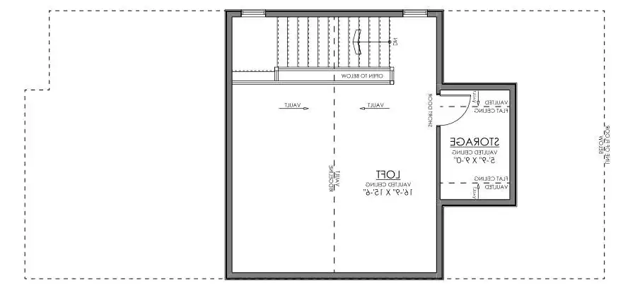
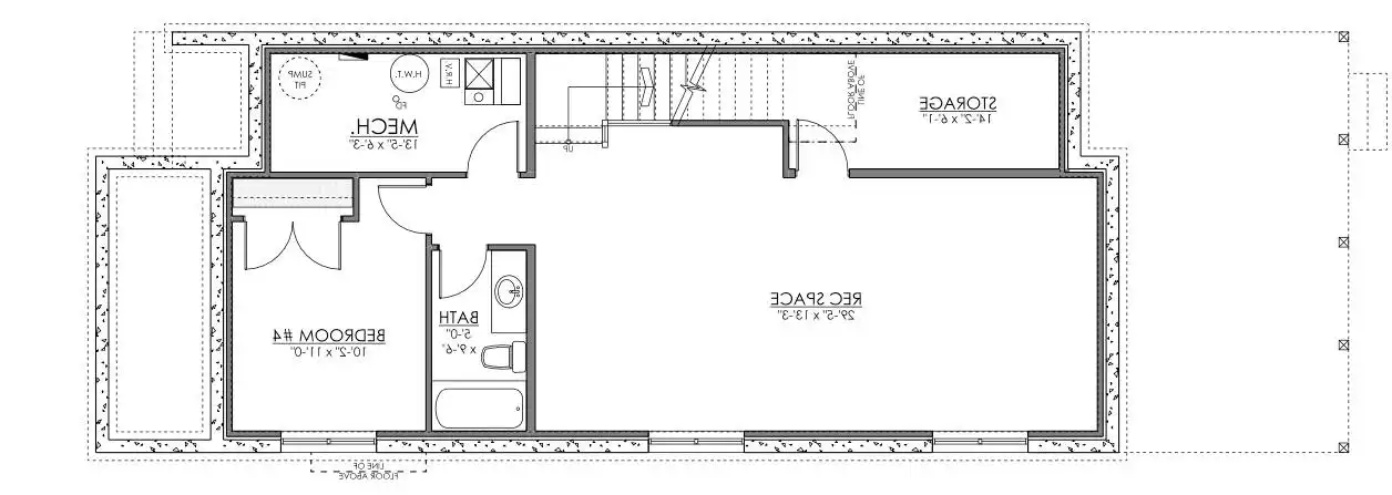
Floor Plans
Click to Zoom In on Floor Plan
 
About House Plan 10939:
House Plan 10939 offers 2,051 square feet of well-designed space across three levels, ideal for narrow lots at just 22 feet wide. The main level includes a welcoming great room with fireplace, open dining area, and a U-shaped kitchen with a large island, all flowing into a mudroom with deck access. The second floor features two bedrooms with a shared bath, and a spacious primary suite with dual vanities, soaker tub, walk-in shower, and a walk-in closet that connects directly to the laundry room. The third floor is topped off with a vaulted loft and built-in storage, perfect for a game or media room. An optional basement adds even more flexibility with an extra bedroom, bathroom, rec space, and additional storage.
House Plan Pricing
STEP 1 Select Your Package

PDF Single Build


Digital plans emailed to you in PDF format that allows for printing copies and sharing electronically with contractors, subs, decorators, and more. This package includes a license to build the home one time.

PDF Single Build $1,500
Most recommended package

CAD + PDF Single Build


CAD files are a complete set of construction drawings delivered electronically. They can be used for any type of modification—including major design changes and engineering—and include a release granting permission to modify the plan. Most CAD plan orders are emailed the same or next business day.
 
This package also comes with a PDF set of plans and a copyright release for making modifications and printing unlimited copies.
 
CAD files are provided in .dwg format. For details on the specific CAD program used, please refer to the PLAN DETAILS section located above the floor plan on each plan’s page.

CAD + PDF Single Build $2,200
2D electronic editable computer files

CAD + PDF Unlimited Build


CAD files are a complete set of construction drawings delivered electronically. They can be used for any type of modification—including major design changes and engineering—and include a release granting permission to modify the plan. Most CAD plan orders are emailed the same or next business day.
 
This package also comes with a PDF set of plans and a multi-use building license, granting permission to construct the home an unlimited number of times, along with a copyright release for making modifications and printing unlimited copies.
 
CAD files are provided in .dwg format. For details on the specific CAD program used, please refer to the PLAN DETAILS section located above the floor plan on each plan’s page.

CAD + PDF Unlimited Build $2,700

States N/A: CADUNLIMITEDBUILD
2D electronic editable computer files
STEP 2 Need To Reverse This Plan?
STEP 3 CHOOSE YOUR FOUNDATION
STEP 4 OPTIONAL ADD-ONS
Subtotal:
$1500
FREE SHIPPING
 
Plan Details
See All Details
Finished Square Footage
1,019 Sq. Ft.
Main Level:
1,032 Sq. Ft.
Upper Level:
715 Sq. Ft.
Lower Level:
2,051 Sq. Ft.
Total:
Room Details
3
Bedrooms:
2
Full Baths:
1
Half Baths:
General House Information
3
Number of Stories:
22' 0"
Width:
47' 6"
Depth:
Townhouse
Dwelling Number:
None
Bonus Access:
Unfinished Square Footage
GARAGE
0
Garage Size:
Exterior Style
Contemporary
Traditional
Collections
Affordable
Kitchens
Primary Suites
Open Floor Plan
Outdoor Living
Rectangular
Split Bedroom
Foundation
Basement
Framing Information
Truss
Roof Framing:
2x6
Exterior Wall Framing:
Roof Pitch
7/12
Primary:
10/12
Secondary:
Insulation (R)
House And Ceiling Heights
9
First Floor Ceiling:
8
Second Floor Ceiling:
32' 9"
Maximum House Height:
Key Features
Covered Front Porch
Deck
Dining Room
Double Vanity Sink
Fireplace
Foyer
Great Room
Kitchen Island
Laundry 2nd Fl
Loft / Balcony
Primary Bdrm Upstairs
Mud Room
Open Floor Plan
Pantry
Rec Room
Separate Tub and Shower
Split Bedrooms
Storage Space
Suited for corner lot
Suited for narrow lot
U-Shaped
Walk-in Closet

Our Guarantees

  • Only the highest quality plans
  • Int’l Residential Code Compliant
  • Full structural details on all plans
  • Best plan price guarantee
  • Free modification Estimates
  • Builder-ready construction drawings
  • Expert advice from leading designers
  •  PDFs NOW!™ plans in minutes
  • 100% satisfaction guarantee
  • Free Home Building Organizer

See terms opt out anytime