20% Off House Plans Sitewide Ends 11/23
20% Off House Plans Sitewide Ends 11/23

House Plan: DFD-11074

See All 2 Photos > (photographs may reflect modified homes)
© copyright by architect
SQ FT
3,590
BEDS
4
BATHS
3
STORIES
2
CARS
2
HOUSE PLANS SALE 
START AT  $1,596.00
For questions and help, live chat, email or call us at 877-895-5299
Floor Plans
Click to Zoom In on Floor Plan
 
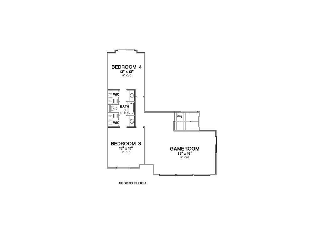
About House Plan 11074:
House Plan 11074 is here for your consideration if you need a large modern home with a flexible two-story layout! This home offers 3,590 square feet with four bedrooms and three bathrooms. On the main level, you'll find the open-concept great room, the luxurious primary suite, a smaller suite for guests, a study by the foyer, and a mudroom that connects to the two-car garage and the laundry room with storage. Upstairs, the kids will enjoy a game room to make their own as well as a pair of Jack-and-Jill bedrooms with their own private vanities. 
House Plan Pricing
STEP 1 Select Your Package

PDF Single Build


Digital plans emailed to you in PDF format that allows for printing copies and sharing electronically with contractors, subs, decorators, and more. This package includes a license to build the home one time.

PDF Single Build $1,995
Most recommended package

CAD + PDF Single Build


CAD files are a complete set of construction drawings delivered electronically. They can be used for any type of modification—including major design changes and engineering—and include a release granting permission to modify the plan. Most CAD plan orders are emailed the same or next business day.
 
This package also comes with a PDF set of plans and a copyright release for making modifications and printing unlimited copies.
 
CAD files are provided in .dwg format. For details on the specific CAD program used, please refer to the PLAN DETAILS section located above the floor plan on each plan’s page.

CAD + PDF Single Build $3,095

States N/A: TX,NM,LA,AR
2D electronic editable computer files
STEP 2 Need To Reverse This Plan?
STEP 3 CHOOSE YOUR FOUNDATION
STEP 4 OPTIONAL ADD-ONS
Subtotal:
$1995
FREE SHIPPING
IMPORTANT NOTE: Due to state regulations, the CAD version may not be sold to residents of AL, TN, TX, NM and LA. If residing in any of the aforementioned states, the PDF version does not come with a release to make plan modifications. Modifications can be provided by the original architect. Please contact us for more information.
 
Plan Details
See All Details
Finished Square Footage
2,449 Sq. Ft.
Main Level:
1,141 Sq. Ft.
Upper Level:
3,590 Sq. Ft.
Total:
Room Details
4
Bedrooms:
3
Full Baths:
General House Information
2
Number of Stories:
61' 0"
Width:
77' 0"
Depth:
Single
Dwelling Number:
None
Bonus Access:
Unfinished Square Footage
584 Sq. Ft.
Garage:
106 Sq. Ft.
Front Porch:
532 Sq. Ft.
Rear Porch:
GARAGE
Front
Garage Location:
2
Garage Size:
Exterior Style
Contemporary
Modern
Collections
In-Law Suite
Kitchens
Luxury
Primary Suites
Open Floor Plan
Outdoor Living
Split Bedroom
Foundation
Basement
Crawl Space
Slab
Framing Information
Stick
Roof Framing:
2x4
Exterior Wall Framing:
Roof Pitch
4/12
Primary:
Roof Load
20
Live:
Insulation (R)
Per IRC Climate Zones
House And Ceiling Heights
10
First Floor Ceiling:
9
Second Floor Ceiling:
24' 3"
Maximum House Height:
Key Features
Attached
Courtyard/Motorcourt Entry
Covered Front Porch
Covered Rear Porch
Double Vanity Sink
Family Room
Fireplace
Foyer
Great Room
Guest Suite
His and Hers Primary Closets
Home Office
Kitchen Island
Laundry 1st Fl
L-Shaped
Primary Bdrm Main Floor
Mud Room
Open Floor Plan
Outdoor Living Space
Rec Room
Separate Tub and Shower
Side-entry
Split Bedrooms
Walk-in Pantry

Our Guarantees

  • Only the highest quality plans
  • Int’l Residential Code Compliant
  • Full structural details on all plans
  • Best plan price guarantee
  • Free modification Estimates
  • Builder-ready construction drawings
  • Expert advice from leading designers
  •  PDFs NOW!™ plans in minutes
  • 100% satisfaction guarantee
  • Free Home Building Organizer