20% off ALL House Plans Sitewide
20% off ALL House Plans Sitewide
 Save   |  Cost-To-Build  |  Print  |  Modify Plan

House Plan: DFD-11124

See All 4 Photos > (photographs may reflect modified homes)
© copyright by designer
SQ FT
2,089
BEDS
1
BATHS
1
STORIES
1
CARS
2
HOUSE PLANS SALE 
START AT  $640.00
For questions and help, live chat, email or call us at 877-895-5299
Floor Plans
Click to Zoom In on Floor Plan
 
About House Plan 11124:
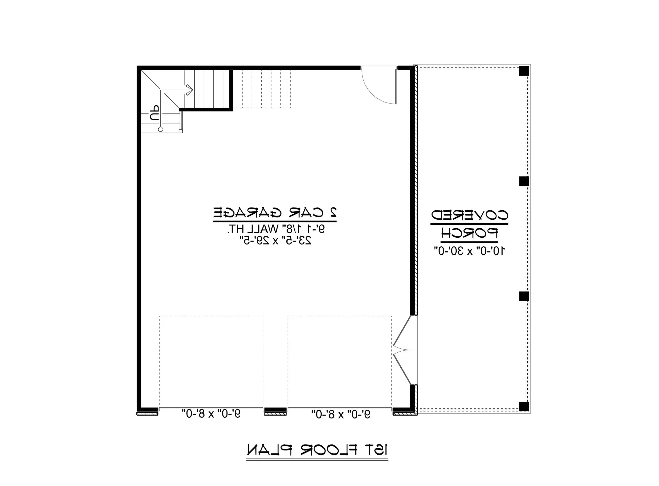
House Plan 11124 blends utility and style in a compact yet versatile package. This 2-car detached garage offers 721 sq. ft. of main-level space, ideal for parking and storage. The exterior showcases attractive clapboard siding, stone accents, and shingle details that create a timeless Craftsman-inspired look. A covered side porch adds extra charm while offering convenient access to the outdoors. Above the garage, a spacious 343 sq. ft. bonus room opens up endless possibilities—transform it into a private guest suite, home gym, office, or creative studio. The plan’s thoughtful design ensures it can seamlessly complement your existing home while providing valuable extra space. Perfect for homeowners wanting both form and function, House Plan 11124 makes expanding your property easy and stylish.
House Plan Pricing
STEP 1 Select Your Package

PDF Single Build


Digital plans emailed to you in PDF format that allows for printing copies and sharing electronically with contractors, subs, decorators, and more. This package includes a license to build the home one time.

PDF Single Build $800
Most recommended package

5 Printed Sets + PDF


Includes 5 physical printed blueprint sets, shipped free via UPS within the U.S. Printed sets ship within 1 business day and are delivered within 3 – 5 business days. A complimentary PDF plan set is also emailed within 1 business day for easy sharing and local printing. These plans may be used to construct one home.

5 Printed Sets + PDF $1,150
5 Printed Sets + PDF

CAD + PDF Single Build


This plan package is created in AutoCAD and delivered in .DWG format. CAD files are intended for use by design professionals, structural engineers, and builders to update plans for local building codes or to make revisions based on specific needs, lot requirements, and budget considerations. A complimentary PDF copy is included with this package for reference. CAD packages are delivered within 1 to 2 business days.
 
This package also comes with a copyright release for making revisions and printing unlimited copies.

For details on the specific CAD program used, please refer to the PLAN DETAILS section located above the floor plan on each plan page.

CAD + PDF Single Build $1,250
2D electronic editable computer files

PDF Unlimited Build


Digital plans with an unlimited build license emailed in PDF format, that allows for printing copies on a home printer or local print shop and sharing with contractors, subs, decorators and more 

PDF Unlimited Build $1,300
Digital plans including unlimited build license

CAD + PDF Unlimited Build


This plan package is created in AutoCAD and delivered in .DWG format. CAD files are intended for use by design professionals, structural engineers, and builders to update plans for local building codes or to make revisions based on specific needs, lot requirements, and budget considerations. A complimentary PDF copy is included with this package for reference. CAD packages are delivered within 1 to 2 business days.
 
This package also comes with a multi-use building license, granting permission to construct the home an unlimited number of times, along with a copyright release for making revisions and printing unlimited copies.
 
For details on the specific CAD program used, please refer to the PLAN DETAILS section located above the floor plan on each plan page.

CAD + PDF Unlimited Build $1,650
2D electronic editable computer files
STEP 2 Need To Reverse This Plan?
STEP 3 CHOOSE YOUR FOUNDATION
STEP 4 OPTIONAL ADD-ONS
Subtotal:
$800
FREE SHIPPING
 
Plan Details
See All Details
Finished Square Footage
721 Sq. Ft.
Main Level:
343 Sq. Ft.
Upper Level:
2,089 Sq. Ft.
Total:
Room Details
1
Bedrooms:
1
Full Baths:
General House Information
1
Number of Stories:
34' 0"
Width:
30' 0"
Depth:
Garage
Dwelling Number:
2nd Floor
Bonus Access:
Unfinished Square Footage
721 Sq. Ft.
Garage:
308 Sq. Ft.
Porch:
GARAGE
Front
Garage Location:
2
Garage Size:
Exterior Style
Cottage
Country
Craftsman
Collections
Affordable
Open Floor Plan
Foundation
Basement
Crawl Space
Slab
Framing Information
Stick
Roof Framing:
2x4
Exterior Wall Framing:
Roof Pitch
12/12
Primary:
4/12
Secondary:
Roof Load
30 psf
Live:
Insulation (R)
13
Exterior Wall:
36
Ceiling:
House And Ceiling Heights
9
First Floor Ceiling:
8
Second Floor Ceiling:
22' 3"
Maximum House Height:
Key Features
Attached
Front-entry
Suited for narrow lot
Workshop

Our Guarantees

  • Only the highest quality plans
  • Int’l Residential Code Compliant
  • Full structural details on all plans
  • Best plan price guarantee
  • Free modification Estimates
  • Builder-ready construction drawings
  • Expert advice from leading designers
  •  PDFs NOW!™ plans in minutes
  • 100% satisfaction guarantee
  • Free Home Building Organizer