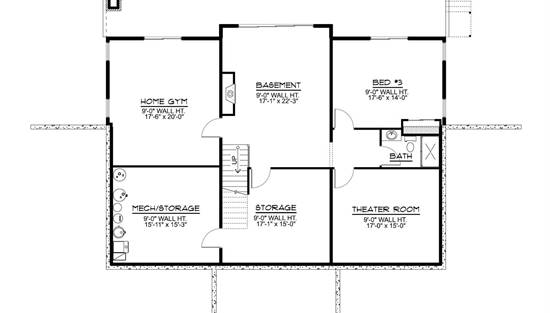
House Plan 11152 combines contemporary design with warm mountain style in a versatile one-story layout. The main level features a great room with soaring sloped ceilings, a cozy fireplace, and walls of windows that open to a full-length covered deck. The kitchen is designed for entertaining with a generous island and walk-in pantry, while the dining area provides direct outdoor access. The primary suite includes a spa-inspired bath and walk-in closet, while two additional bedrooms and a shared bath complete the first floor. The optional lower level doubles the living space with an exercise room, media room, guest suite, and storage. With outdoor living front and back plus open interior gathering spaces, House Plan 11152 is perfectly suited for sloping lots and scenic views.
House Plan 11152 combines contemporary design with warm mountain style in a versatile one-story layout. The main level features a great room with soaring sloped ceilings, a cozy fireplace, and walls of windows that open to a full-length covered deck. The kitchen is designed for entertaining with a generous island and walk-in pantry, while the dining area provides direct outdoor access. The primary suite includes a spa-inspired bath and walk-in closet, while two additional bedrooms and a shared bath complete the first floor. The optional lower level doubles the living space with an exercise room, media room, guest suite, and storage. With outdoor living front and back plus open interior gathering spaces, House Plan 11152 is perfectly suited for sloping lots and scenic views.