20% off ALL House Plans Sitewide
20% off ALL House Plans Sitewide

House Plan: DFD-11164

See All 19 Photos > (photographs may reflect modified homes)
© copyright by designer
SQ FT
6,218
BEDS
5
BATHS
3.5
STORIES
2
CARS
5
HOUSE PLANS SALE 
START AT  $1,400.00
For questions and help, live chat, email or call us at 877-895-5299
Floor Plans
Click to Zoom In on Floor Plan
 
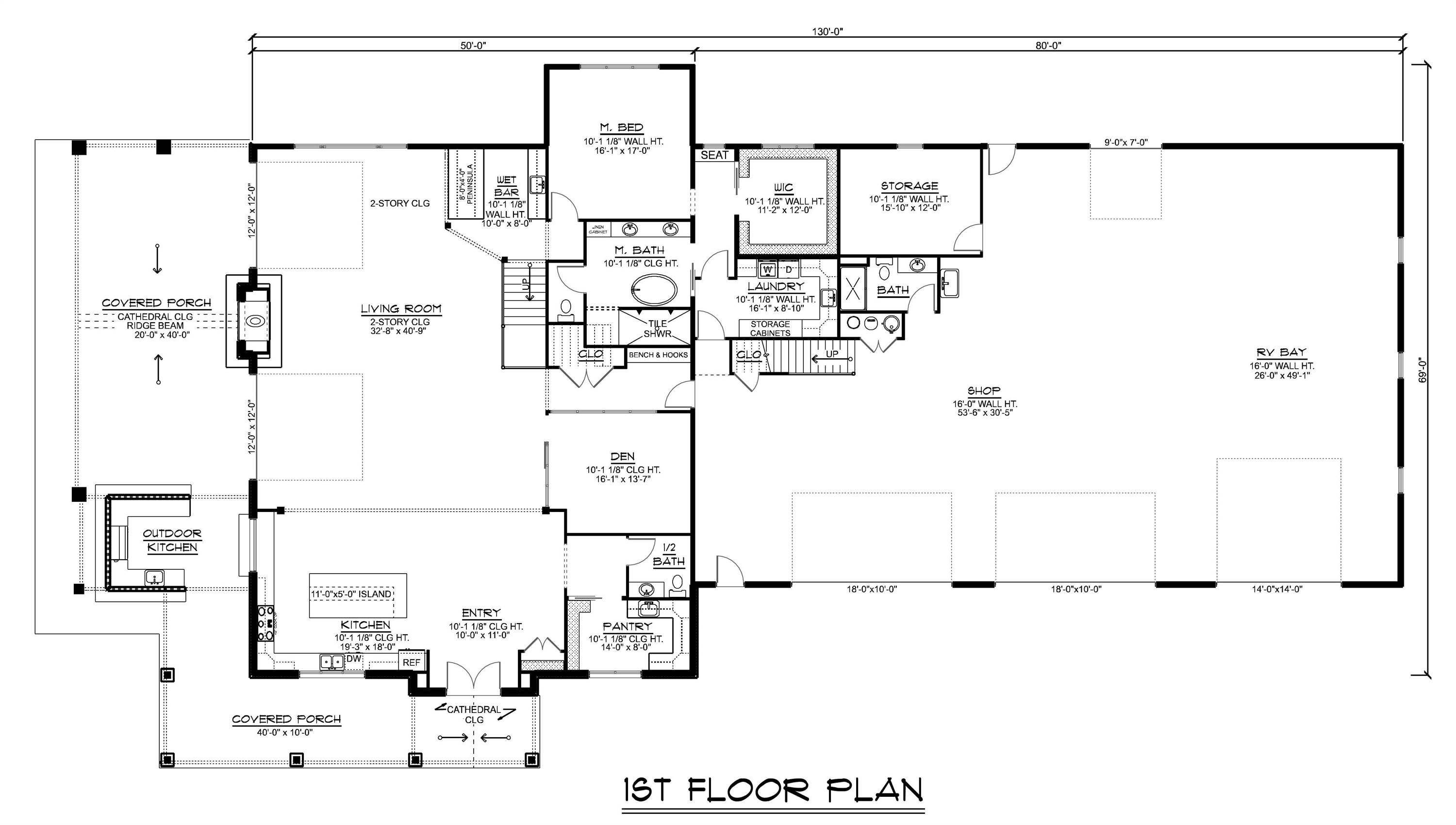
About House Plan 11164:
House Plan 11164 blends modern barndominium charm with exceptional function, spanning 6,218 sq. ft. across two levels. The main floor highlights a two-story great room with an open concept layout, adjoining a chef’s kitchen complete with a large island, walk-in pantry, and direct access to an outdoor kitchen. The luxurious primary suite includes a spa bath, dual vanities, a soaking tub, and a massive walk-in closet. Upstairs, a loft, office, and additional bedrooms provide flexible living spaces, ideal for families or guests. Outdoor living is maximized with a spacious covered porch and a full wraparound porch that adds curb appeal and relaxation space. A 5-car garage with RV bay and shop makes this plan perfect for vehicle storage, hobbies, or business use. Designed for modern families who crave space and flexibility, House Plan 11164 is a barndominium masterpiece.
House Plan Pricing
STEP 1 Select Your Package

PDF Single Build


Digital plans emailed to you in PDF format that allows for printing copies and sharing electronically with contractors, subs, decorators, and more. This package includes a license to build the home one time.

PDF Single Build $1,750
Most recommended package

5 Printed Sets + PDF


Includes 5 physical printed blueprint sets, shipped free via UPS within the U.S. Printed sets ship within 1 business day and are delivered within 3 – 5 business days. A complimentary PDF plan set is also emailed within 1 business day for easy sharing and local printing. These plans may be used to construct one home.

5 Printed Sets + PDF $2,100
5 Printed Sets + PDF

PDF Unlimited Build


Digital plans with an unlimited build license emailed in PDF format, that allows for printing copies on a home printer or local print shop and sharing with contractors, subs, decorators and more 

PDF Unlimited Build $2,350
Digital plans including unlimited build license

CAD + PDF Single Build


This plan package is created in AutoCAD and delivered in .DWG format. CAD files are intended for use by design professionals, structural engineers, and builders to update plans for local building codes or to make revisions based on specific needs, lot requirements, and budget considerations. A complimentary PDF copy is included with this package for reference. CAD packages are delivered within 1 to 2 business days.
 
This package also comes with a copyright release for making revisions and printing unlimited copies.

For details on the specific CAD program used, please refer to the PLAN DETAILS section located above the floor plan on each plan page.

CAD + PDF Single Build $3,300
2D electronic editable computer files

CAD + PDF Unlimited Build


This plan package is created in AutoCAD and delivered in .DWG format. CAD files are intended for use by design professionals, structural engineers, and builders to update plans for local building codes or to make revisions based on specific needs, lot requirements, and budget considerations. A complimentary PDF copy is included with this package for reference. CAD packages are delivered within 1 to 2 business days.
 
This package also comes with a multi-use building license, granting permission to construct the home an unlimited number of times, along with a copyright release for making revisions and printing unlimited copies.
 
For details on the specific CAD program used, please refer to the PLAN DETAILS section located above the floor plan on each plan page.

CAD + PDF Unlimited Build $3,850
2D electronic editable computer files
STEP 2 Need To Reverse This Plan?
STEP 3 CHOOSE YOUR FOUNDATION
STEP 4 OPTIONAL ADD-ONS
Subtotal:
$1750
FREE SHIPPING
 
Plan Details
See All Details
Finished Square Footage
3,805 Sq. Ft.
Main Level:
2,413 Sq. Ft.
Upper Level:
6,218 Sq. Ft.
Total:
Room Details
5
Bedrooms:
3
Full Baths:
1
Half Baths:
General House Information
2
Number of Stories:
130' 0"
Width:
69' 0"
Depth:
Single
Dwelling Number:
None
Bonus Access:
Unfinished Square Footage
3359 Sq. Ft.
Garage:
1529 Sq. Ft.
Porch:
GARAGE
Front
Garage Location:
5
Garage Size:
Exterior Style
Barndominium
Country
Transitional
Collections
Architects Choice
Kitchens
Luxury
Primary Suites
Mountain
Open Floor Plan
Outdoor Living
Split Bedroom
Foundation
Basement
Crawl Space
Slab
Walkout
Framing Information
Truss
Roof Framing:
2x6
Exterior Wall Framing:
Roof Pitch
8/12
Primary:
10/12
Secondary:
Roof Load
30 psf
Live:
Insulation (R)
19
Exterior Wall:
36
Ceiling:
House And Ceiling Heights
10
First Floor Ceiling:
9
Second Floor Ceiling:
38' 0"
Maximum House Height:
Key Features
Attached
Covered Front Porch
Double Vanity Sink
Fireplace
Formal LR
Foyer
Front-entry
Home Office
Kitchen Island
Laundry 1st Fl
Loft / Balcony
L-Shaped
Primary Bdrm Main Floor
Mud Room
Open Floor Plan
Outdoor Kitchen
Outdoor Living Space
Pantry
Peninsula / Eating Bar
RV Garage
Separate Tub and Shower
Split Bedrooms
Storage Space
Suited for view lot
Walk-in Closet
Walk-in Pantry
Workshop
Wraparound Porch

Our Guarantees

  • Only the highest quality plans
  • Int’l Residential Code Compliant
  • Full structural details on all plans
  • Best plan price guarantee
  • Free modification Estimates
  • Builder-ready construction drawings
  • Expert advice from leading designers
  •  PDFs NOW!™ plans in minutes
  • 100% satisfaction guarantee
  • Free Home Building Organizer