20% Off House Plans Sitewide Ends Thursday
20% Off House Plans Sitewide Ends Thursday

House Plan: DFD-11183

See All 12 Photos > (photographs may reflect modified homes)
© copyright by designer
SQ FT
2,816
BEDS
4
BATHS
2.5
STORIES
2
CARS
0
HOUSE PLANS SALE 
START AT  $1,116.00
For questions and help, live chat, email or call us at 877-895-5299
Floor Plans
Click to Zoom In on Floor Plan
 
About House Plan 11183:
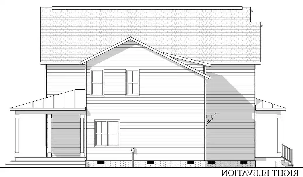
House Plan 11183 delivers 2,816 sq. ft. of thoughtfully designed farmhouse living. On the main floor, the foyer leads to an airy great room with fireplace, an island kitchen with a walk-in pantry and butler’s pantry, and a dining nook that opens to the rear porch. The primary suite is conveniently located downstairs, featuring a double vanity bath and walk-in closet. Upstairs, three bedrooms and a full bath surround a versatile loft, ideal for homework, hobbies, or a media lounge. A front porch adds farmhouse curb appeal, while the rear porch creates outdoor gathering space. For homeowners who need a garage, see House Plan 11182 to add an attached 2-car garage, enhancing both convenience and storage.
House Plan Pricing
STEP 1 Select Your Package

PDF Single Build


Digital plans emailed to you in PDF format that allows for printing copies and sharing electronically with contractors, subs, decorators, and more. This package includes a license to build the home one time.

PDF Single Build $1,395
Most recommended package

CAD + PDF Single Build


CAD files are a complete set of construction drawings delivered electronically. They can be used for any type of modification—including major design changes and engineering—and include a release granting permission to modify the plan. Most CAD plan orders are emailed the same or next business day.
 
This package also comes with a PDF set of plans and a copyright release for making modifications and printing unlimited copies.
 
CAD files are provided in .dwg format. For details on the specific CAD program used, please refer to the PLAN DETAILS section located above the floor plan on each plan’s page.

CAD + PDF Single Build $1,595
2D electronic editable computer files

5 Printed Sets + PDF


Digital plan emailed to you in PDF format that allows for printing copies on a home printer or local print shop and sharing with contractors, subs, decorators, and more. PLUS five printed sets shipped and delivered 3-5 business days.

5 Printed Sets + PDF $1,770
Digital plans plus 5 printed sets

PDF Unlimited Build


Digital plans with an unlimited build license emailed in PDF format, that allows for printing copies on a home printer or local print shop and sharing with contractors, subs, decorators and more 

PDF Unlimited Build $1,895
Digital plans including unlimited build license

CAD + PDF Unlimited Build


CAD files are a complete set of construction drawings delivered electronically. They can be used for any type of modification—including major design changes and engineering—and include a release granting permission to modify the plan. Most CAD plan orders are emailed the same or next business day.
 
This package also comes with a PDF set of plans and a multi-use building license, granting permission to construct the home an unlimited number of times, along with a copyright release for making modifications and printing unlimited copies.
 
CAD files are provided in .dwg format. For details on the specific CAD program used, please refer to the PLAN DETAILS section located above the floor plan on each plan’s page.

CAD + PDF Unlimited Build $2,095
2D electronic editable computer files
STEP 2 Need To Reverse This Plan?
STEP 3 CHOOSE YOUR FOUNDATION
STEP 4 OPTIONAL ADD-ONS
Subtotal:
$1395
FREE SHIPPING
 
Plan Details
See All Details
Finished Square Footage
1,700 Sq. Ft.
Main Level:
1,116 Sq. Ft.
Upper Level:
2,816 Sq. Ft.
Total:
Room Details
4
Bedrooms:
2
Full Baths:
1
Half Baths:
General House Information
2
Number of Stories:
52' 0"
Width:
42' 0"
Depth:
Single
Dwelling Number:
None
Bonus Access:
Unfinished Square Footage
112 Sq. Ft.
Front Porch:
288 Sq. Ft.
Rear Porch:
GARAGE
0
Garage Size:
Exterior Style
Cottage
Country
Farmhouse
Modern Farmhouse
Collections
Open Floor Plan
Foundation
Crawl Space
Framing Information
Combination
Roof Framing:
2x4
Exterior Wall Framing:
Roof Pitch
6/12
Primary:
12/12
Secondary:
Insulation (R)
House And Ceiling Heights
9
First Floor Ceiling:
8
Second Floor Ceiling:
32' 0"
Maximum House Height:
Key Features
Butler's Pantry
Dining Room
Double Vanity Sink
Family Room
Fireplace
Foyer
Front Porch
Kitchen Island
Laundry 2nd Fl
L-Shaped
Primary Bdrm Main Floor
None
Nook / Breakfast Area
Open Floor Plan
Pantry
Rear Porch
Walk-in Closet

Our Guarantees

  • Only the highest quality plans
  • Int’l Residential Code Compliant
  • Full structural details on all plans
  • Best plan price guarantee
  • Free modification Estimates
  • Builder-ready construction drawings
  • Expert advice from leading designers
  •  PDFs NOW!™ plans in minutes
  • 100% satisfaction guarantee
  • Free Home Building Organizer