20% off ALL House Plans Sitewide
20% off ALL House Plans Sitewide

House Plan: DFD-11189

See All 7 Photos > (photographs may reflect modified homes)
© copyright by designer
SQ FT
4,281
BEDS
9
BATHS
6.5
STORIES
2
CARS
6
HOUSE PLANS SALE 
START AT  $1,532.00
For questions and help, live chat, email or call us at 877-895-5299
Floor Plans
Click to Zoom In on Floor Plan
 
About House Plan 11189:
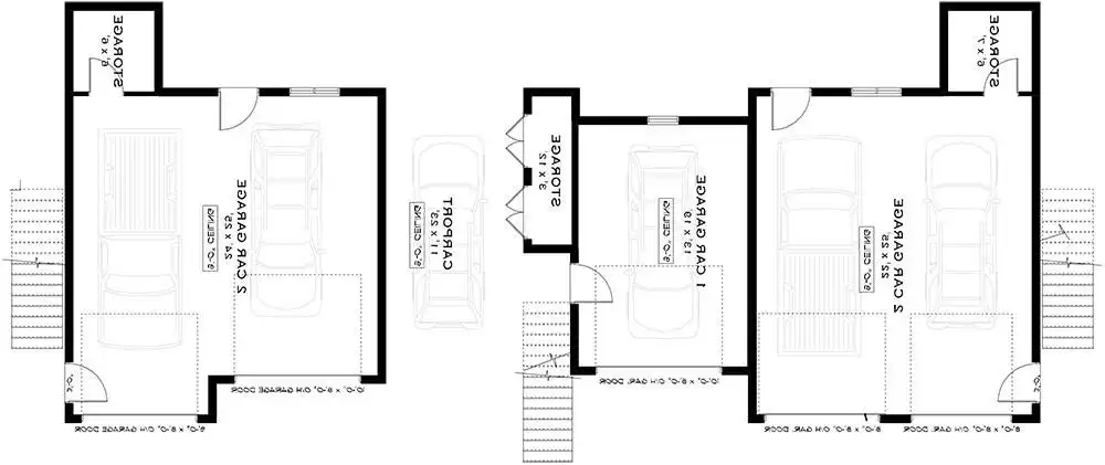
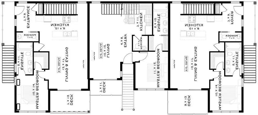
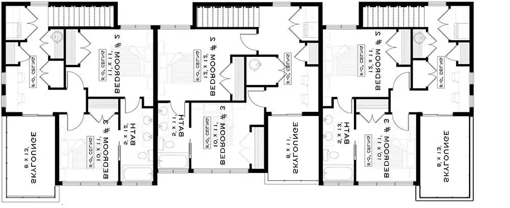
House Plan 11189 is a gorgeous modern triplex for a view lot! It offers 4,281 square feet, nine bedrooms, six full bathrooms, and three half baths in total, with each unit offering three bedrooms and two-and-a-half baths. The two-story layout also sits atop the drive-under garage level to boost the interior spaces! Each unit places parking for two on the bottom, a main level with open living and the primary suite in the middle, and a pair of Jack-and-Jill bedrooms with a study loft and the laundry on the top floor. Make sure not to miss the deck space on two stories or the handy garage storage! 
House Plan Pricing
STEP 1 Select Your Package

PDF Single Build


Digital plans emailed to you in PDF format that allows for printing copies and sharing electronically with contractors, subs, decorators, and more. This package includes a license to build the home one time.

PDF Single Build $1,915
Most recommended package

CAD + PDF Single Build


This plan package is created in AutoCAD and delivered in .DWG format. CAD files are intended for use by design professionals, structural engineers, and builders to update plans for local building codes or to make revisions based on specific needs, lot requirements, and budget considerations. A complimentary PDF copy is included with this package for reference. CAD packages are delivered within 1 to 2 business days.
 
This package also comes with a copyright release for making revisions and printing unlimited copies.

For details on the specific CAD program used, please refer to the PLAN DETAILS section located above the floor plan on each plan page.

CAD + PDF Single Build $2,315
2D electronic editable computer files

PDF Unlimited Build


Digital plans with an unlimited build license emailed in PDF format, that allows for printing copies on a home printer or local print shop and sharing with contractors, subs, decorators and more 

PDF Unlimited Build $2,615
Digital plans including unlimited build license

CAD + PDF Unlimited Build


This plan package is created in AutoCAD and delivered in .DWG format. CAD files are intended for use by design professionals, structural engineers, and builders to update plans for local building codes or to make revisions based on specific needs, lot requirements, and budget considerations. A complimentary PDF copy is included with this package for reference. CAD packages are delivered within 1 to 2 business days.
 
This package also comes with a multi-use building license, granting permission to construct the home an unlimited number of times, along with a copyright release for making revisions and printing unlimited copies.
 
For details on the specific CAD program used, please refer to the PLAN DETAILS section located above the floor plan on each plan page.

CAD + PDF Unlimited Build $2,915
2D electronic editable computer files
STEP 2 Need To Reverse This Plan?
STEP 3 CHOOSE YOUR FOUNDATION
STEP 4 OPTIONAL ADD-ONS
Subtotal:
$1915
FREE SHIPPING
 
Plan Details
See All Details
Finished Square Footage
2,382 Sq. Ft.
Main Level:
1,899 Sq. Ft.
Upper Level:
4,281 Sq. Ft.
Total:
Room Details
9
Bedrooms:
6
Full Baths:
3
Half Baths:
General House Information
2
Number of Stories:
84' 10"
Width:
37' 3"
Depth:
Multi-Family
Dwelling Number:
None
Bonus Access:
Unfinished Square Footage
1865 Sq. Ft.
Garage:
161 Sq. Ft.
Storage:
546 Sq. Ft.
Deck:
GARAGE
Under
Garage Location:
6
Garage Size:
Exterior Style
Contemporary
Modern
Collections
Builders
Open Floor Plan
Outdoor Living
Split Bedroom
Foundation
Slab
Framing Information
Stick
Roof Framing:
2x6
Exterior Wall Framing:
Roof Pitch
Flat
Primary:
2/12
Secondary:
Insulation (R)
22
Exterior Wall:
40
Ceiling:
32
Floor:
House And Ceiling Heights
9
First Floor Ceiling:
8
Second Floor Ceiling:
32' 6"
Maximum House Height:
Key Features
Attached
Carport
Deck
Double Vanity Sink
Drive-under
Fireplace
Foyer
Front-entry
Great Room
Kitchen Island
Laundry 2nd Fl
Open Floor Plan
Peninsula / Eating Bar
Split Bedrooms
Storage Space
Suited for view lot
U-Shaped
Walk-in Closet

Our Guarantees

  • Only the highest quality plans
  • Int’l Residential Code Compliant
  • Full structural details on all plans
  • Best plan price guarantee
  • Free modification Estimates
  • Builder-ready construction drawings
  • Expert advice from leading designers
  •  PDFs NOW!™ plans in minutes
  • 100% satisfaction guarantee
  • Free Home Building Organizer