20% Off House Plans Sitewide Ends Sunday
20% Off House Plans Sitewide Ends Sunday

House Plan: DFD-11232

See All 5 Photos > (photographs may reflect modified homes)
© copyright by designer
SQ FT
1,550
BEDS
3
BATHS
2
STORIES
1
CARS
2
HOUSE PLANS SALE 
START AT  $956.00
For questions and help, live chat, email or call us at 877-895-5299
Floor Plans
Click to Zoom In on Floor Plan
 
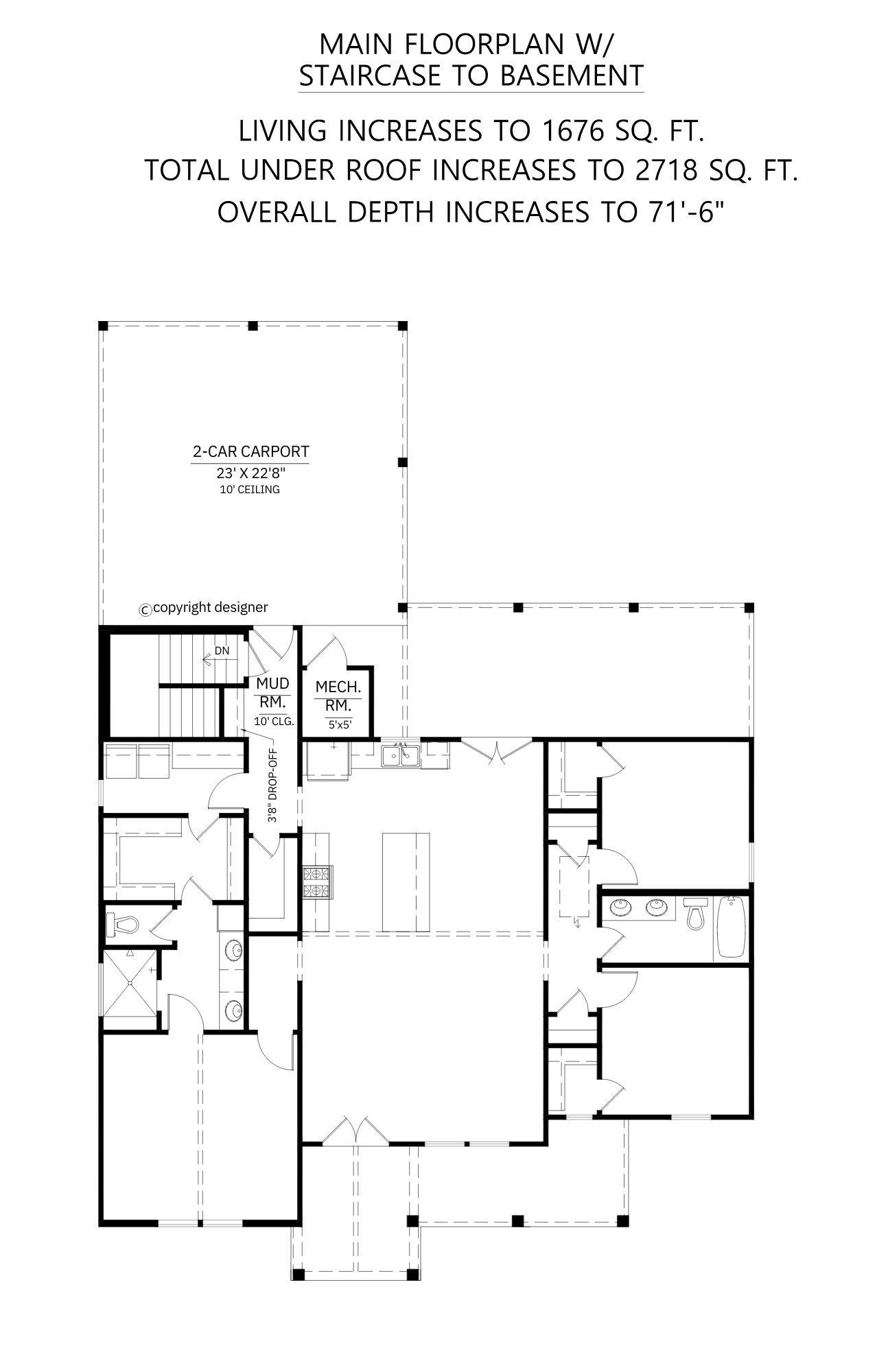
About House Plan 11232:
This 1,550 square foot one-story design offers 3 bedrooms, 2 bathrooms, and a 2-car garage, combining efficiency with comfort in a family-friendly layout. The vaulted entry porch sets a welcoming tone, leading inside to a great room with 10-foot ceilings that flows into an open dining area and L-shaped kitchen with a central island and direct access to a large rear porch. The primary suite is privately located on the left side of the home and features vaulted ceilings, a spa-like bathroom, and a walk-through walk-in closet that connects directly to the laundry for added convenience. On the opposite side, two bedrooms with ample closet space share a full bathroom, making this plan ideal for families, downsizers, or guests. With its classic curb appeal and practical design, this home offers style and livability in equal measure.
House Plan Pricing
STEP 1 Select Your Package

PDF Single Build


Digital plans emailed to you in PDF format that allows for printing copies and sharing electronically with contractors, subs, decorators, and more. This package includes a license to build the home one time.

PDF Single Build $1,195
Most recommended package

PDF Unlimited Build


Digital plans with an unlimited build license emailed in PDF format, that allows for printing copies on a home printer or local print shop and sharing with contractors, subs, decorators and more 

PDF Unlimited Build $1,895
Digital plans including unlimited build license

CAD + PDF Unlimited Build


CAD files are a complete set of construction drawings delivered electronically. They can be used for any type of modification—including major design changes and engineering—and include a release granting permission to modify the plan. Most CAD plan orders are emailed the same or next business day.
 
This package also comes with a PDF set of plans and a multi-use building license, granting permission to construct the home an unlimited number of times, along with a copyright release for making modifications and printing unlimited copies.
 
CAD files are provided in .dwg format. For details on the specific CAD program used, please refer to the PLAN DETAILS section located above the floor plan on each plan’s page.

CAD + PDF Unlimited Build $2,695
2D electronic editable computer files
STEP 2 Need To Reverse This Plan?
STEP 3 CHOOSE YOUR FOUNDATION
STEP 4 OPTIONAL ADD-ONS
Subtotal:
$1195
FREE SHIPPING
 
Plan Details
See All Details
Finished Square Footage
1,550 Sq. Ft.
Main Level:
1,550 Sq. Ft.
Total:
Room Details
3
Bedrooms:
2
Full Baths:
General House Information
1
Number of Stories:
48' 10"
Width:
63' 6"
Depth:
Single
Dwelling Number:
None
Bonus Access:
Unfinished Square Footage
455 Sq. Ft.
Porch:
GARAGE
Rear
Garage Location:
2
Garage Size:
Exterior Style
Country
Farmhouse
Modern Farmhouse
Ranch
Collections
Affordable
Empty Nester
First Home
Kitchens
Primary Suites
North Carolina
Open Floor Plan
Outdoor Living
Split Bedroom
Foundation
Basement Foundation
Crawl Space
Slab
Framing Information
Stick
Roof Framing:
2x4
Exterior Wall Framing:
Roof Pitch
9/12
Primary:
12/12
Secondary:
Insulation (R)
House And Ceiling Heights
9
First Floor Ceiling:
22' 10"
Maximum House Height:
Key Features
Attached
Carport
Covered Front Porch
Covered Rear Porch
Dining Room
Double Vanity Sink
Great Room
Kitchen Island
Laundry 1st Fl
L-Shaped
Primary Bdrm Main Floor
Mud Room
Open Floor Plan
Peninsula / Eating Bar
Rear-entry
Split Bedrooms
Suited for corner lot
Walk-in Closet

Our Guarantees

  • Only the highest quality plans
  • Int’l Residential Code Compliant
  • Full structural details on all plans
  • Best plan price guarantee
  • Free modification Estimates
  • Builder-ready construction drawings
  • Expert advice from leading designers
  •  PDFs NOW!™ plans in minutes
  • 100% satisfaction guarantee
  • Free Home Building Organizer