15% off ALL House Plans Sitewide
15% off ALL House Plans Sitewide

House Plan: DFD-11253

See All 22 Photos > (photographs may reflect modified homes)
© copyright by designer
SQ FT
4,749
BEDS
5
BATHS
6
STORIES
2
CARS
3
HOUSE PLANS SALE 
START AT  $1,232.50
For questions and help, live chat, email or call us at 877-895-5299
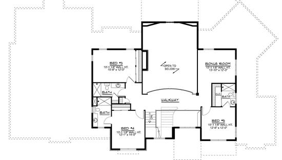
Floor Plans
Click to Zoom In on Floor Plan
 
About House Plan 11253:
House Plan 11253 combines timeless farmhouse style with the efficiency of modern living. Inside, the open floor plan features a vaulted great room, gourmet kitchen with a large island, and a pantry for extra storage. The first-floor primary suite includes dual closets, a spa-like bathroom, and direct porch access, while a guest suite adds convenience for family or visitors. Upstairs, you’ll find 3 additional bedrooms, a spacious bonus room, and a loft overlooking the great room below. With 5 bedrooms and 6 bathrooms total, this home adapts beautifully to the needs of a growing family. Outdoor living is a highlight, with a wraparound porch, rear porch, and multiple decks that create seamless indoor-outdoor flow. At 4,749 sq. ft., House Plan 11253 is ideal for homeowners seeking luxury, flexibility, and lasting curb appeal.
House Plan Pricing
STEP 1 Select Your Package

PDF Single Build


Digital plans emailed to you in PDF format that allows for printing copies and sharing electronically with contractors, subs, decorators, and more. This package includes a license to build the home one time.

PDF Single Build $1,450
Most recommended package

5 Printed Sets + PDF


Includes 5 physical printed blueprints shipped and delivered within 3-5 business days and a copyright release license to construct one home and to make copies. A complimentary PDF plan set is also emailed within 1 business day for easy sharing and local printing. 

5 Printed Sets + PDF $1,800
5 Printed Sets + PDF

PDF Unlimited Build


Digital plans with an unlimited build license emailed in PDF format, that allows for printing copies on a home printer or local print shop and sharing with contractors, subs, decorators and more 

PDF Unlimited Build $2,050
Digital plans including unlimited build license

CAD + PDF Single Build


This plan package is created in AutoCAD and delivered in .DWG format. CAD files are intended for use by design professionals, structural engineers, and builders to update plans for local building codes or to make revisions based on specific needs, lot requirements, and budget considerations. A complimentary PDF copy is included with this package for reference. CAD packages are delivered within 1 to 2 business days.
 
This package also comes with a copyright release for making revisions and printing unlimited copies.

For details on the specific CAD program used, please refer to the PLAN DETAILS section located above the floor plan on each plan page.

CAD + PDF Single Build $2,700
2D electronic editable computer files

CAD + PDF Unlimited Build


This plan package is created in AutoCAD and delivered in .DWG format. CAD files are intended for use by design professionals, structural engineers, and builders to update plans for local building codes or to make revisions based on specific needs, lot requirements, and budget considerations. A complimentary PDF copy is included with this package for reference. CAD packages are delivered within 1 to 2 business days.
 
This package also comes with a multi-use building license, granting permission to construct the home an unlimited number of times, along with a copyright release for making revisions and printing unlimited copies.
 
For details on the specific CAD program used, please refer to the PLAN DETAILS section located above the floor plan on each plan page.

CAD + PDF Unlimited Build $3,250
2D electronic editable computer files
STEP 2 Need To Reverse This Plan?
STEP 3 CHOOSE YOUR FOUNDATION
STEP 4 OPTIONAL ADD-ONS
Subtotal:
$1450
FREE SHIPPING
 
Plan Details
See All Details
Finished Square Footage
3,446 Sq. Ft.
Main Level:
1,303 Sq. Ft.
Upper Level:
4,749 Sq. Ft.
Total:
Room Details
5
Bedrooms:
6
Full Baths:
General House Information
2
Number of Stories:
99' 3"
Width:
64' 4"
Depth:
Single
Dwelling Number:
2nd Floor
Bonus Access:
Unfinished Square Footage
915 Sq. Ft.
Garage:
672 Sq. Ft.
Porch:
207 Sq. Ft.
Front Porch:
465 Sq. Ft.
Rear Porch:
721 Sq. Ft.
Deck:
GARAGE
Side
Garage Location:
3
Garage Size:
Exterior Style
Country
Farmhouse
Modern Farmhouse
Transitional
Collections
In-Law Suite
Kitchens
Luxury
Primary Suites
Mountain
Open Floor Plan
Outdoor Living
Vacation
Foundation
Basement
Crawlspace
Slab
Walkout
Framing Information
2x6
Exterior Wall Framing:
Roof Pitch
12/12
Primary:
10/12
Secondary:
Insulation (R)
19
Exterior Wall:
36
Ceiling:
House And Ceiling Heights
10
First Floor Ceiling:
10
Second Floor Ceiling:
34' 3"
Maximum House Height:
Key Features
2 Story Volume
Attached
Bonus Room
Covered Front Porch
Covered Rear Porch
Deck
Double Vanity Sink
Fireplace
Foyer
Great Room
Guest Suite
His and Hers Primary Closets
Home Office
In-law Suite
Kitchen Island
Laundry 1st Fl
Library/Media Rm
Loft / Balcony
Primary Bdrm Main Floor
Mud Room
Nook / Breakfast Area
Open Floor Plan
Outdoor Living Space
Separate Tub and Shower
Side-entry
Sitting Area
Suited for view lot
U-Shaped
Vaulted Ceilings
Vaulted Foyer
Vaulted Great Room/Living
Vaulted Kitchen
Vaulted Primary
Walk-in Closet
Walk-in Pantry
Wraparound Porch

Our Guarantees

  • Only the highest quality plans
  • Int’l Residential Code Compliant
  • Full structural details on all plans
  • Best plan price guarantee
  • Free modification Estimates
  • Builder-ready construction drawings
  • Expert advice from leading designers
  •  PDFs NOW!™ plans in minutes
  • 100% satisfaction guarantee
  • Free Home Building Organizer