15% off ALL House Plans Sitewide
15% off ALL House Plans Sitewide

House Plan: DFD-11284

See All 5 Photos > (photographs may reflect modified homes)
© copyright by designer
SQ FT
2,106
BEDS
4
BATHS
2.5
STORIES
1
CARS
3
HOUSE PLANS SALE 
START AT  $1,062.50
For questions and help, live chat, email or call us at 877-895-5299
Floor Plans
Click to Zoom In on Floor Plan
 
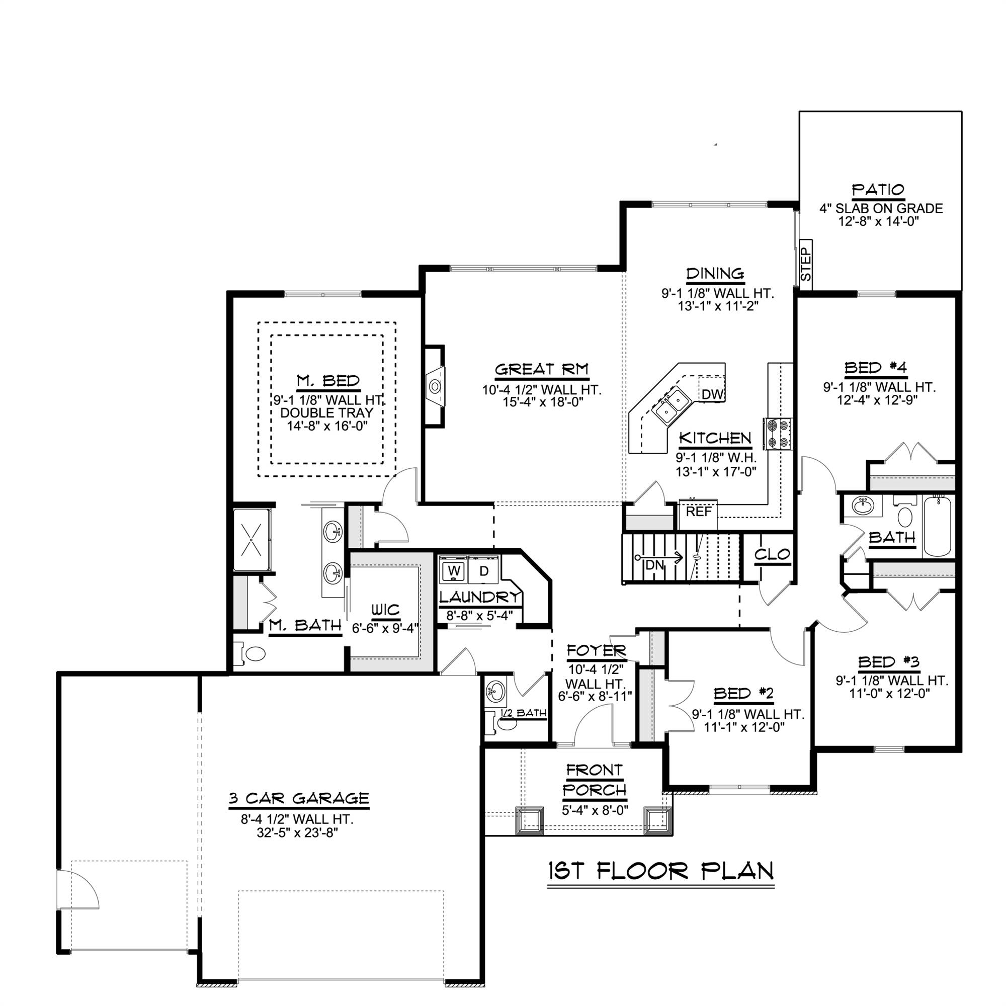
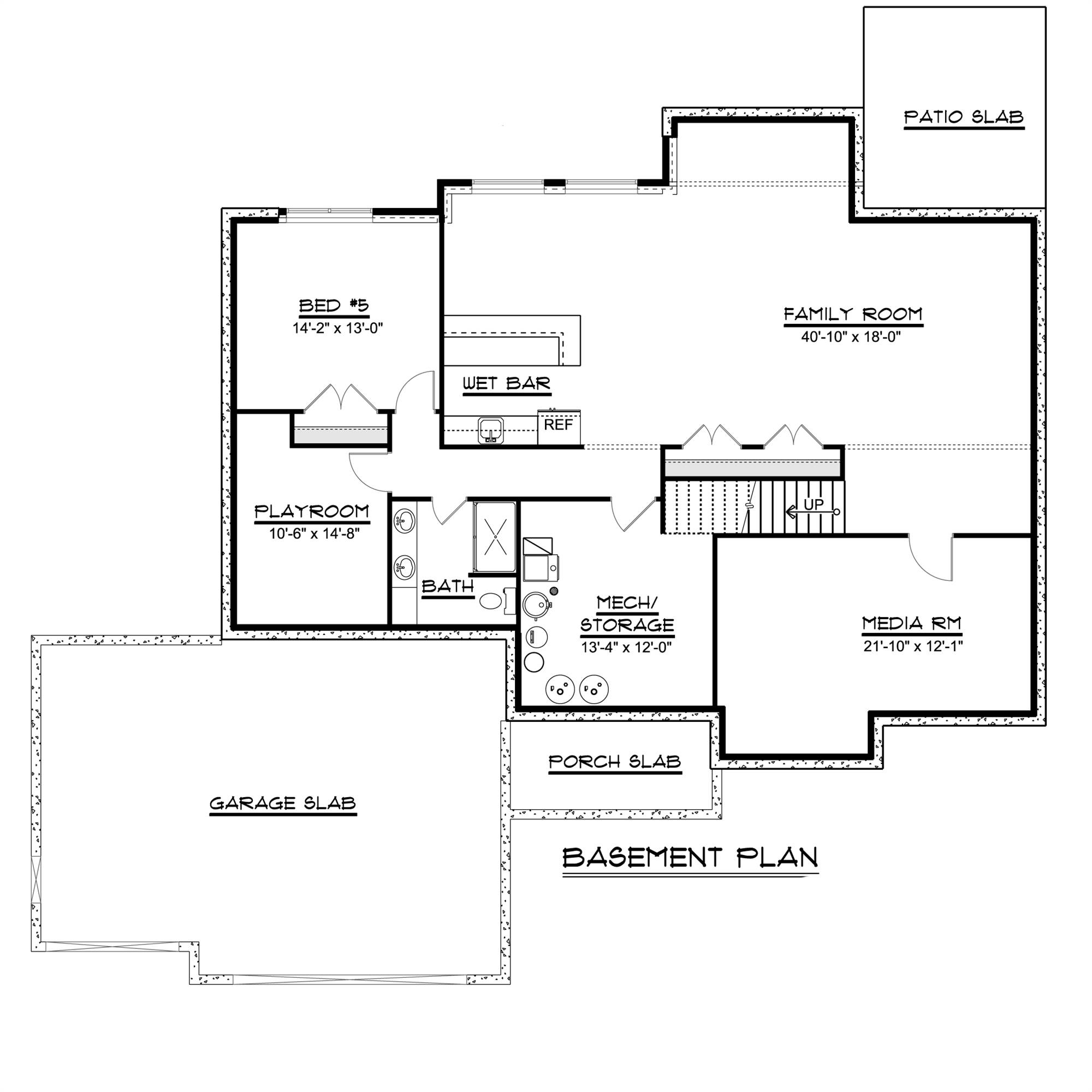
About House Plan 11284:
House Plan 11284 blends Craftsman charm with a functional ranch design. The 2,106 sq. ft. main level features a welcoming foyer, open kitchen with walk-in pantry, and a great room that flows into the dining space and outdoor patio. The private primary suite includes a spa-inspired bath and large walk-in closet, while three secondary bedrooms share a full bath in their own wing. A 3-car garage and a convenient laundry room complete the first floor. Designed with everyday living in mind, this home also includes a half bath for guests. For those wanting more space, the optional finished lower level adds a spacious family room, media room, playroom, wet bar, guest bedroom, and an additional bath. With its flexible layout, House Plan 11284 offers everything from cozy family living to impressive entertaining space.
House Plan Pricing
STEP 1 Select Your Package

PDF Single Build


Digital plans emailed to you in PDF format that allows for printing copies and sharing electronically with contractors, subs, decorators, and more. This package includes a license to build the home one time.

PDF Single Build $1,250
Most recommended package

5 Printed Sets + PDF


Includes 5 physical printed blueprints shipped and delivered within 3-5 business days and a copyright release license to construct one home and to make copies. A complimentary PDF plan set is also emailed within 1 business day for easy sharing and local printing. 

5 Printed Sets + PDF $1,600
5 Printed Sets + PDF

PDF Unlimited Build


Digital plans with an unlimited build license emailed in PDF format, that allows for printing copies on a home printer or local print shop and sharing with contractors, subs, decorators and more 

PDF Unlimited Build $1,850
Digital plans including unlimited build license

CAD + PDF Single Build


This plan package is created in AutoCAD and delivered in .DWG format. CAD files are intended for use by design professionals, structural engineers, and builders to update plans for local building codes or to make revisions based on specific needs, lot requirements, and budget considerations. A complimentary PDF copy is included with this package for reference. CAD packages are delivered within 1 to 2 business days.
 
This package also comes with a copyright release for making revisions and printing unlimited copies.

For details on the specific CAD program used, please refer to the PLAN DETAILS section located above the floor plan on each plan page.

CAD + PDF Single Build $2,300
2D electronic editable computer files

CAD + PDF Unlimited Build


This plan package is created in AutoCAD and delivered in .DWG format. CAD files are intended for use by design professionals, structural engineers, and builders to update plans for local building codes or to make revisions based on specific needs, lot requirements, and budget considerations. A complimentary PDF copy is included with this package for reference. CAD packages are delivered within 1 to 2 business days.
 
This package also comes with a multi-use building license, granting permission to construct the home an unlimited number of times, along with a copyright release for making revisions and printing unlimited copies.
 
For details on the specific CAD program used, please refer to the PLAN DETAILS section located above the floor plan on each plan page.

CAD + PDF Unlimited Build $2,850
2D electronic editable computer files
STEP 2 Need To Reverse This Plan?
STEP 3 CHOOSE YOUR FOUNDATION
STEP 4 OPTIONAL ADD-ONS
Subtotal:
$1250
FREE SHIPPING
 
Plan Details
See All Details
Finished Square Footage
2,106 Sq. Ft.
Main Level:
2,106 Sq. Ft.
Lower Level:
2,106 Sq. Ft.
Total:
Room Details
4
Bedrooms:
2
Full Baths:
1
Half Baths:
General House Information
1
Number of Stories:
70' 7"
Width:
61' 0"
Depth:
Single
Dwelling Number:
Unfinished Square Footage
779 Sq. Ft.
Garage:
98 Sq. Ft.
Porch:
177 Sq. Ft.
Deck:
GARAGE
Front
Garage Location:
3
Garage Size:
Exterior Style
Colonial
Cottage
Country
Craftsman
Ranch
Traditional
Collections
Split Bedroom
Foundation
Basement
Crawl Space
Slab
Walkout Included
Framing Information
Truss
Roof Framing:
2x6
Exterior Wall Framing:
Roof Pitch
10/12
Primary:
7/12
Secondary:
Insulation (R)
19
Exterior Wall:
40
Ceiling:
House And Ceiling Heights
9
First Floor Ceiling:
20' 1"
Maximum House Height:
Key Features
Attached
Double Vanity Sink
Family Room
Fireplace
Front Porch
Great Room
Kitchen Island
Laundry 1st Fl
Library/Media Rm
L-Shaped
Primary Bdrm Main Floor
Open Floor Plan
Pantry
Rec Room
Side-entry
Split Bedrooms
Storage Space
Suited for view lot
Walk-in Closet

Our Guarantees

  • Only the highest quality plans
  • Int’l Residential Code Compliant
  • Full structural details on all plans
  • Best plan price guarantee
  • Free modification Estimates
  • Builder-ready construction drawings
  • Expert advice from leading designers
  •  PDFs NOW!™ plans in minutes
  • 100% satisfaction guarantee
  • Free Home Building Organizer