15% off ALL House Plans Sitewide
15% off ALL House Plans Sitewide

House Plan: DFD-11295

See All 20 Photos > (photographs may reflect modified homes)
© copyright by designer
SQ FT
4,013
BEDS
4
BATHS
3.5
STORIES
2
CARS
3
HOUSE PLANS SALE 
START AT  $1,232.50
For questions and help, live chat, email or call us at 877-895-5299
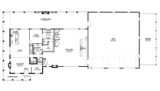
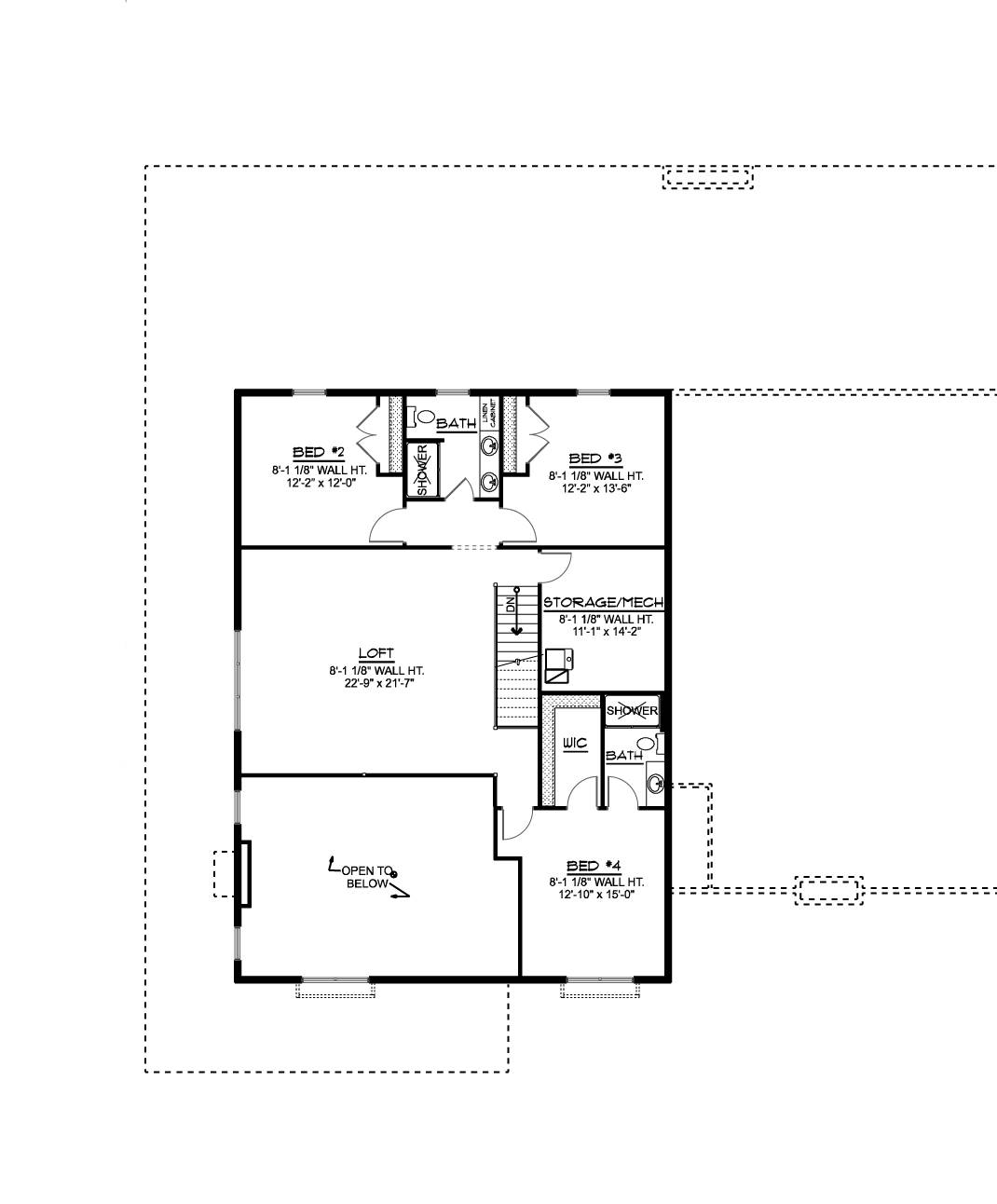
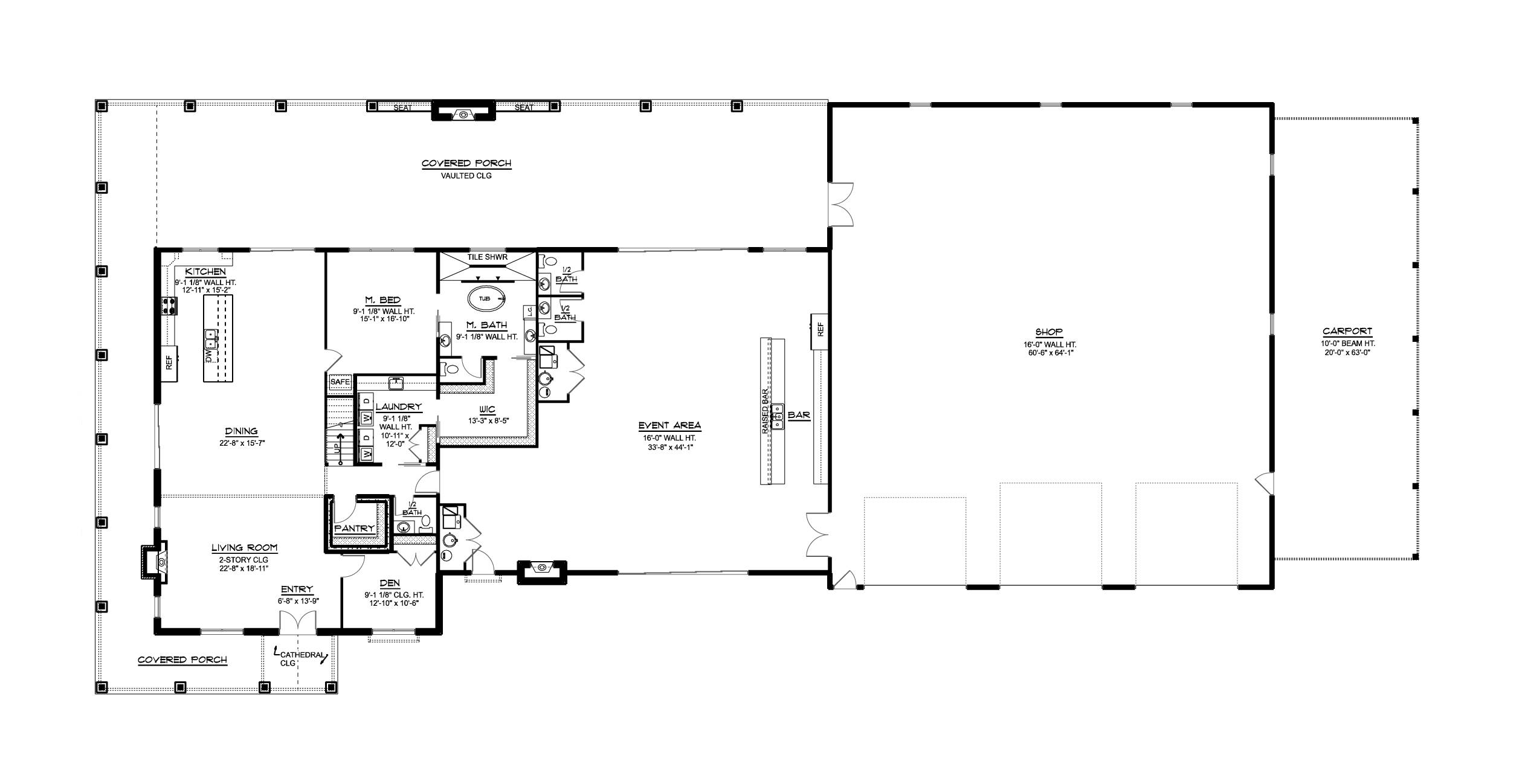
Floor Plans
Click to Zoom In on Floor Plan
 
About House Plan 11295:
House Plan 11295 is a luxury 2-story barndominium built for flexibility and entertaining. Inside its 4,013 square feet of living space, you’ll find an open floor plan that includes a vaulted great room, gourmet kitchen, and dining area with seamless access to covered outdoor spaces. The main level features a private primary suite with a soaking tub, walk-in shower, and dual vanities, while the upper floor offers three spacious bedrooms, a loft, and additional storage. A large event area, complete with a bar and adjoining shop, makes this design ideal for hosting gatherings or operating a home business. With an attached carport, oversized garage, and wraparound porch, this plan offers unmatched versatility. Combining rustic elegance and modern function, House Plan 11295 delivers the perfect barndominium for today’s country lifestyle.
House Plan Pricing
STEP 1 Select Your Package

5 Printed Sets + PDF


Includes 5 physical printed blueprint sets, shipped free via UPS within the Continental U.S. Printed sets ship within 1 business day and are delivered within 3 – 5 business days. A complimentary PDF plan set is also emailed within 1 business day for easy sharing and local printing. These plans may be used to construct one home.

5 Printed Sets + PDF $1,800
5 Printed Sets + PDF

PDF Single Build


Digital plans emailed to you in PDF format that allows for printing copies and sharing electronically with contractors, subs, decorators, and more. This package includes a license to build the home one time.

PDF Single Build $1,450
Most recommended package

PDF Unlimited Build


Digital plans with an unlimited build license emailed in PDF format, that allows for printing copies on a home printer or local print shop and sharing with contractors, subs, decorators and more 

PDF Unlimited Build $2,050
Digital plans including unlimited build license

CAD + PDF Single Build


This plan package is created in AutoCAD and delivered in .DWG format. CAD files are intended for use by design professionals, structural engineers, and builders to update plans for local building codes or to make revisions based on specific needs, lot requirements, and budget considerations. A complimentary PDF copy is included with this package for reference. CAD packages are delivered within 1 to 2 business days.
 
This package also comes with a copyright release for making revisions and printing unlimited copies.

For details on the specific CAD program used, please refer to the PLAN DETAILS section located above the floor plan on each plan page.

CAD + PDF Single Build $2,700
2D electronic editable computer files

CAD + PDF Unlimited Build


This plan package is created in AutoCAD and delivered in .DWG format. CAD files are intended for use by design professionals, structural engineers, and builders to update plans for local building codes or to make revisions based on specific needs, lot requirements, and budget considerations. A complimentary PDF copy is included with this package for reference. CAD packages are delivered within 1 to 2 business days.
 
This package also comes with a multi-use building license, granting permission to construct the home an unlimited number of times, along with a copyright release for making revisions and printing unlimited copies.
 
For details on the specific CAD program used, please refer to the PLAN DETAILS section located above the floor plan on each plan page.

CAD + PDF Unlimited Build $3,250
2D electronic editable computer files
STEP 2 Need To Reverse This Plan?
STEP 3 CHOOSE YOUR FOUNDATION
STEP 4 OPTIONAL ADD-ONS
Subtotal:
$1800
FREE SHIPPING
 
Plan Details
See All Details
Finished Square Footage
2,441 Sq. Ft.
Main Level:
1,572 Sq. Ft.
Upper Level:
4,013 Sq. Ft.
Total:
Room Details
4
Bedrooms:
3
Full Baths:
3
Half Baths:
General House Information
2
Number of Stories:
182' 0"
Width:
81' 0"
Depth:
Single
Dwelling Number:
None
Bonus Access:
Unfinished Square Footage
4103 Sq. Ft.
Garage:
2790 Sq. Ft.
Porch:
GARAGE
Front
Garage Location:
3
Garage Size:
Exterior Style
Barndominium
Country
Farmhouse
Modern Farmhouse
Transitional
Collections
In-Law Suite
Kitchens
Luxury
Primary Suites
Mountain
Open Floor Plan
Outdoor Living
Rectangular
Split Bedroom
Foundation
Basement
Crawl Space
Slab
Walkout
Framing Information
Truss
Roof Framing:
2x6
Exterior Wall Framing:
Roof Pitch
7/12
Primary:
5/12
Secondary:
Insulation (R)
13
Exterior Wall:
36
Ceiling:
House And Ceiling Heights
9
First Floor Ceiling:
8
Second Floor Ceiling:
34' 5"
Maximum House Height:
Key Features
2 Story Volume
Attached
Carport
Covered Front Porch
Covered Rear Porch
Double Vanity Sink
Fireplace
Foyer
Front-entry
Great Room
Guest Suite
Home Office
In-law Suite
Kitchen Island
Laundry 1st Fl
Loft / Balcony
L-Shaped
Primary Bdrm Main Floor
Nook / Breakfast Area
Open Floor Plan
Outdoor Living Space
Oversized
Rear Porch
Rec Room
Separate Tub and Shower
Split Bedrooms
Storage Space
Suited for view lot
Vaulted Ceilings
Walk-in Closet
Walk-in Pantry
Workshop
Wraparound Porch

Our Guarantees

  • Only the highest quality plans
  • Int’l Residential Code Compliant
  • Full structural details on all plans
  • Best plan price guarantee
  • Free modification Estimates
  • Builder-ready construction drawings
  • Expert advice from leading designers
  •  PDFs NOW!™ plans in minutes
  • 100% satisfaction guarantee
  • Free Home Building Organizer