House Plan: DFD-11309

See All 6 Photos > (photographs may reflect modified homes)
© copyright by designer
SQ FT
2,648
BEDS
4
BATHS
2.5
STORIES
2
CARS
2
PLANS FROM $1,395
For questions and help, live chat, email or call us at 877-895-5299
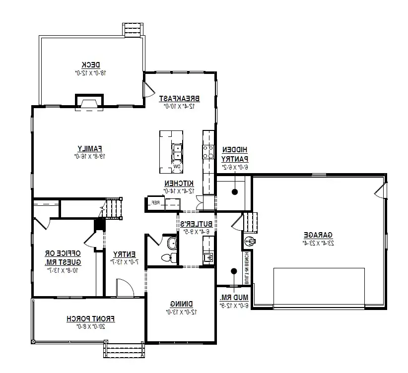
Floor Plans
Click to Zoom In on Floor Plan
 
About House Plan 11309:
House Plan 11309 delivers modern farmhouse living with 2,648 sq. ft. of heated space across two levels. The open-concept first floor highlights a chef’s kitchen with a hidden pantry, butler’s pantry, and an island overlooking the family room and breakfast nook. A mudroom with built-in bench connects the garage to the kitchen, making everyday routines simple and organized. Upstairs, the primary suite offers privacy with a spa-style bath and walk-in closet, while three additional bedrooms share a convenient hall bath. The optional basement expands the home with a recreation room, gym or media room, unfinished storage, and a fifth bedroom with a full bath. With 4–5 bedrooms, 2.5–3.5 bathrooms, and plenty of storage, this design suits families of all sizes. Front porch charm and a rear deck complete the farmhouse feel, making it perfect for relaxed yet functional living.
House Plan Pricing
STEP 1 Select Your Package

5 Printed Sets + PDF


Includes 5 physical printed blueprints shipped and delivered within 3-5 business days and a copyright release license to construct one home and to make copies. A complimentary PDF plan set is also emailed within 1 business day for easy sharing and local printing. 

5 Printed Sets + PDF $1,795
5 Printed Sets + PDF

PDF Single Build


Digital plans emailed to you in PDF format that allows for printing copies and sharing electronically with contractors, subs, decorators, and more. This package includes a license to build the home one time.

PDF Single Build $1,395
Most recommended package

PDF Unlimited Build


Digital plans with an unlimited build license emailed in PDF format, that allows for printing copies on a home printer or local print shop and sharing with contractors, subs, decorators and more 

PDF Unlimited Build $1,895
Digital plans including unlimited build license

CAD + PDF Single Build


This plan package is created in AutoCAD and delivered in .DWG format. CAD files are intended for use by design professionals, structural engineers, and builders to update plans for local building codes or to make revisions based on specific needs, lot requirements, and budget considerations. A complimentary PDF copy is included with this package for reference. CAD packages are delivered within 1 to 2 business days.
 
This package also comes with a copyright release for making revisions and printing unlimited copies.

For details on the specific CAD program used, please refer to the PLAN DETAILS section located above the floor plan on each plan page.

CAD + PDF Single Build $1,595
2D electronic editable computer files

CAD + PDF Unlimited Build


This plan package is created in AutoCAD and delivered in .DWG format. CAD files are intended for use by design professionals, structural engineers, and builders to update plans for local building codes or to make revisions based on specific needs, lot requirements, and budget considerations. A complimentary PDF copy is included with this package for reference. CAD packages are delivered within 1 to 2 business days.
 
This package also comes with a multi-use building license, granting permission to construct the home an unlimited number of times, along with a copyright release for making revisions and printing unlimited copies.
 
For details on the specific CAD program used, please refer to the PLAN DETAILS section located above the floor plan on each plan page.

CAD + PDF Unlimited Build $2,095
2D electronic editable computer files
STEP 2 Need To Reverse This Plan?
STEP 3 CHOOSE YOUR FOUNDATION
STEP 4 OPTIONAL ADD-ONS
Subtotal:
$1795
FREE SHIPPING
 
Plan Details
See All Details
Finished Square Footage
1,406 Sq. Ft.
Main Level:
1,242 Sq. Ft.
Upper Level:
1,416 Sq. Ft.
Lower Level:
2,648 Sq. Ft.
Total:
Room Details
4
Bedrooms:
2
Full Baths:
1
Half Baths:
General House Information
2
Number of Stories:
62' 8"
Width:
48' 0"
Depth:
Single
Dwelling Number:
Unfinished Square Footage
580 Sq. Ft.
Garage:
160 Sq. Ft.
Front Porch:
216 Sq. Ft.
Deck:
GARAGE
Front
Garage Location:
2
Garage Size:
Exterior Style
Country
Farmhouse
Modern Farmhouse
Collections
Open Floor Plan
Foundation
Basement
Crawl Space
Slab
Walkout Basement
Framing Information
2x4
Exterior Wall Framing:
Roof Pitch
7/12
Primary:
12/12
Secondary:
Insulation (R)
House And Ceiling Heights
9
First Floor Ceiling:
8
Second Floor Ceiling:
30' 0"
Maximum House Height:
Key Features
Attached
Butler's Pantry
Deck
Dining Room
Double Vanity Sink
Family Room
Fireplace
Foyer
Front Porch
Home Office
Kitchen Island
Laundry 2nd Fl
L-Shaped
Primary Bdrm Upstairs
Mud Room
Nook / Breakfast Area
Open Floor Plan
Pantry
Separate Tub and Shower
Suited for view lot
Walk-in Closet
Walk-in Pantry

Our Guarantees

  • Only the highest quality plans
  • Int’l Residential Code Compliant
  • Full structural details on all plans
  • Best plan price guarantee
  • Free modification Estimates
  • Builder-ready construction drawings
  • Expert advice from leading designers
  •  PDFs NOW!™ plans in minutes
  • 100% satisfaction guarantee
  • Free Home Building Organizer