House Plan: DFD-11334

See All 10 Photos > (photographs may reflect modified homes)
© copyright by designer
SQ FT
4,014
BEDS
5
BATHS
4
STORIES
2
CARS
3
PLANS FROM $2,495
For questions and help, live chat, email or call us at 877-895-5299
Floor Plans
Click to Zoom In on Floor Plan
 
About House Plan 11334:
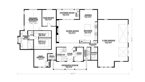
This charming 5-bedroom, 4-bath modern farmhouse offers 4,014 sq. ft. of beautifully designed living space. The heart of the home is a soaring two-story great room that flows effortlessly into the gourmet kitchen and dining area. A large island, butler walk-in pantry, and covered patio make entertaining easy and enjoyable. The main-level primary suite includes a spa-style bath and dual walk-in closets, while upstairs you’ll find a loft, media/game room, and three private bedrooms. Outdoor living is elevated with a built-in kitchen on the covered patio, perfect for grilling and relaxing. A flex room and mudroom add practical convenience. This home balances modern luxury with farmhouse charm, creating a warm and inviting space for family living. It’s the kind of home that makes everyday moments feel special.
House Plan Pricing
STEP 1 Select Your Package

PDF Single Build


Digital plans emailed to you in PDF format that allows for printing copies and sharing electronically with contractors, subs, decorators, and more. This package includes a license to build the home one time.

PDF Single Build $2,495
Most recommended package

PDF + 5 Sets


Five Printed Sets of Residential Construction Drawings that are typically 24” x 36” documents and come with a license to construct a single residence shipped to a physical address. Most jurisdictions require up to four copies of your house plans when applying for a building permit. Also includes a PDF Plan Package, are our most popular choice which allows you to print as many copies as you need and to electronically send files to your builder, subcontractors, bank/mortgage reps, material stores, decorators, and more.
PDF + 5 Sets $2,745
A five set package

PDF Unlimited Build


Digital plans with an unlimited build license emailed in PDF format, that allows for printing copies on a home printer or local print shop and sharing with contractors, subs, decorators and more 

PDF Unlimited Build $3,095
Digital plans including unlimited build license

CAD + PDF Unlimited Build


This plan package is created in AutoCAD and delivered in .DWG format. CAD files are intended for use by design professionals, structural engineers, and builders to update plans for local building codes or to make revisions based on specific needs, lot requirements, and budget considerations. A complimentary PDF copy is included with this package for reference. CAD packages are delivered within 1 to 2 business days.
 
This package also comes with a multi-use building license, granting permission to construct the home an unlimited number of times, along with a copyright release for making revisions and printing unlimited copies.
 
For details on the specific CAD program used, please refer to the PLAN DETAILS section located above the floor plan on each plan page.

CAD + PDF Unlimited Build $3,495
2D electronic editable computer files
STEP 2 Need To Reverse This Plan?
STEP 3 CHOOSE YOUR FOUNDATION
STEP 4 OPTIONAL ADD-ONS
Subtotal:
$2495
FREE SHIPPING
 
Plan Details
See All Details
Finished Square Footage
2,666 Sq. Ft.
Main Level:
1,348 Sq. Ft.
Upper Level:
4,014 Sq. Ft.
Total:
Room Details
5
Bedrooms:
4
Full Baths:
General House Information
2
Number of Stories:
96' 0"
Width:
52' 8"
Depth:
Single
Dwelling Number:
Unfinished Square Footage
1006 Sq. Ft.
Garage:
208 Sq. Ft.
Porch:
170 Sq. Ft.
Deck:
GARAGE
Side
Garage Location:
3
Garage Size:
Exterior Style
Country
Farmhouse
Modern Farmhouse
Collections
Kitchens
Primary Suites
Split Bedroom
Foundation
Crawl Space
Slab
Framing Information
Slab
Roof Framing:
2x6
Exterior Wall Framing:
Roof Pitch
6/12
Primary:
Insulation (R)
House And Ceiling Heights
10
First Floor Ceiling:
10
Second Floor Ceiling:
31' 0"
Maximum House Height:
Key Features
Attached
Covered Front Porch
Covered Rear Porch
Dining Room
Double Vanity Sink
Family Room
Fireplace
Foyer
His and Hers Primary Closets
Home Office
Kitchen Island
Laundry 1st Fl
Library/Media Rm
Loft / Balcony
L-Shaped
Primary Bdrm Main Floor
Mud Room
Outdoor Kitchen
Separate Tub and Shower
Side-entry
Split Bedrooms
Storage Space
Suited for corner lot
Walk-in Closet
Walk-in Pantry

Our Guarantees

  • Only the highest quality plans
  • Int’l Residential Code Compliant
  • Full structural details on all plans
  • Best plan price guarantee
  • Free modification Estimates
  • Builder-ready construction drawings
  • Expert advice from leading designers
  •  PDFs NOW!™ plans in minutes
  • 100% satisfaction guarantee
  • Free Home Building Organizer