20% Off House Plans Sitewide Ends Sunday
20% Off House Plans Sitewide Ends Sunday

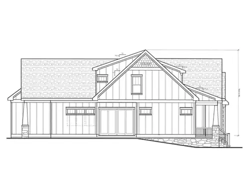
House Plan: DFD-1136

See All 4 Photos > (photographs may reflect modified homes)
© copyright by designer
SQ FT
2,405
BEDS
3
BATHS
2.5
STORIES
2
CARS
2
HOUSE PLANS SALE 
START AT  $720.00
For questions and help, live chat, email or call us at 877-895-5299
Floor Plans
Click to Zoom In on Floor Plan
 
About House Plan 1136:
A rocker can nestle on the small front porch. The covered side porch off the dining room, and a rear porch provide backyard access. This narrow cottage is a surprisingly open plan.

The view from the entry allows you to see all the way through the house. Ten ft. first floor ceilings add to the openness of the floor plan. The cook top on the breakfast bar island looks into the keeping room and provides a view to the rear porch making this a bright and airy space. An optional 2nd fireplace adds that cozy element.

With the master bedroom on the main floor this modest cottage is perfect for the single adult or empty-nester couple. The closet expands under the staircase providing extra storage. The master bath is designed to meet wheelchair access making this ideal for aging in place. Two bedrooms and a sitting area with expandable attic complete the second floor providing everything needed for a future family or those occasional guests.

House Plan Pricing
STEP 1 Select Your Package

PDF Single Build


Digital plans emailed to you in PDF format that allows for printing copies and sharing electronically with contractors, subs, decorators, and more. This package includes a license to build the home one time.

PDF Single Build $900
Most recommended package
STEP 2 CHOOSE YOUR FOUNDATION
STEP 3 OPTIONAL ADD-ONS
Subtotal:
$900
FREE SHIPPING
 
Plan Details
See All Details
Finished Square Footage
1,561 Sq. Ft.
Main Level:
844 Sq. Ft.
Upper Level:
2,405 Sq. Ft.
Total:
Room Details
3
Bedrooms:
2
Full Baths:
1
Half Baths:
General House Information
2
Number of Stories:
52' 0"
Width:
63' 0"
Depth:
Single
Dwelling Number:
2nd Floor
Bonus Access:
Unfinished Square Footage
506 Sq. Ft.
Garage:
97 Sq. Ft.
Porch:
56 Sq. Ft.
Deck:
144 Sq. Ft.
Patio:
296 Sq. Ft.
Bonus Room:
GARAGE
Side
Garage Location:
2
Garage Size:
Exterior Style
Bungalow
Cottage
Craftsman
Collections
Concept Plan
Empty Nester
Split Bedroom
Foundation
Basement Alternate
Slab
Framing Information
Stick
Roof Framing:
2x4
Exterior Wall Framing:
Roof Pitch
12/12
Primary:
Roof Load
20
Live:
10
Dead:
Insulation (R)
Per IRC Climate Zones
House And Ceiling Heights
10
First Floor Ceiling:
8
Second Floor Ceiling:
25' 4"
Maximum House Height:
Key Features
Attached
Basement
Bonus Room
Country Kitchen
Covered Front Porch
Dining Room
Double Vanity Sink
Family Room
Fireplace
Kitchen Island
Laundry 1st Fl
Loft / Balcony
Primary Bdrm Main Floor
Open Floor Plan
Rear Porch
Separate Tub and Shower
Slab
Split Bedrooms
Suited for narrow lot
Unfinished Space
Vaulted Ceilings
Walk-in Closet

Our Guarantees

  • Only the highest quality plans
  • Int’l Residential Code Compliant
  • Full structural details on all plans
  • Best plan price guarantee
  • Free modification Estimates
  • Builder-ready construction drawings
  • Expert advice from leading designers
  •  PDFs NOW!™ plans in minutes
  • 100% satisfaction guarantee
  • Free Home Building Organizer