15% off ALL House Plans Sitewide
15% off ALL House Plans Sitewide

House Plan: DFD-11363

See All 4 Photos > (photographs may reflect modified homes)
© copyright by designer
SQ FT
1,190
BEDS
3
BATHS
2
STORIES
1
CARS
0
HOUSE PLANS SALE 
START AT  $1,466.25
For questions and help, live chat, email or call us at 877-895-5299
Floor Plans
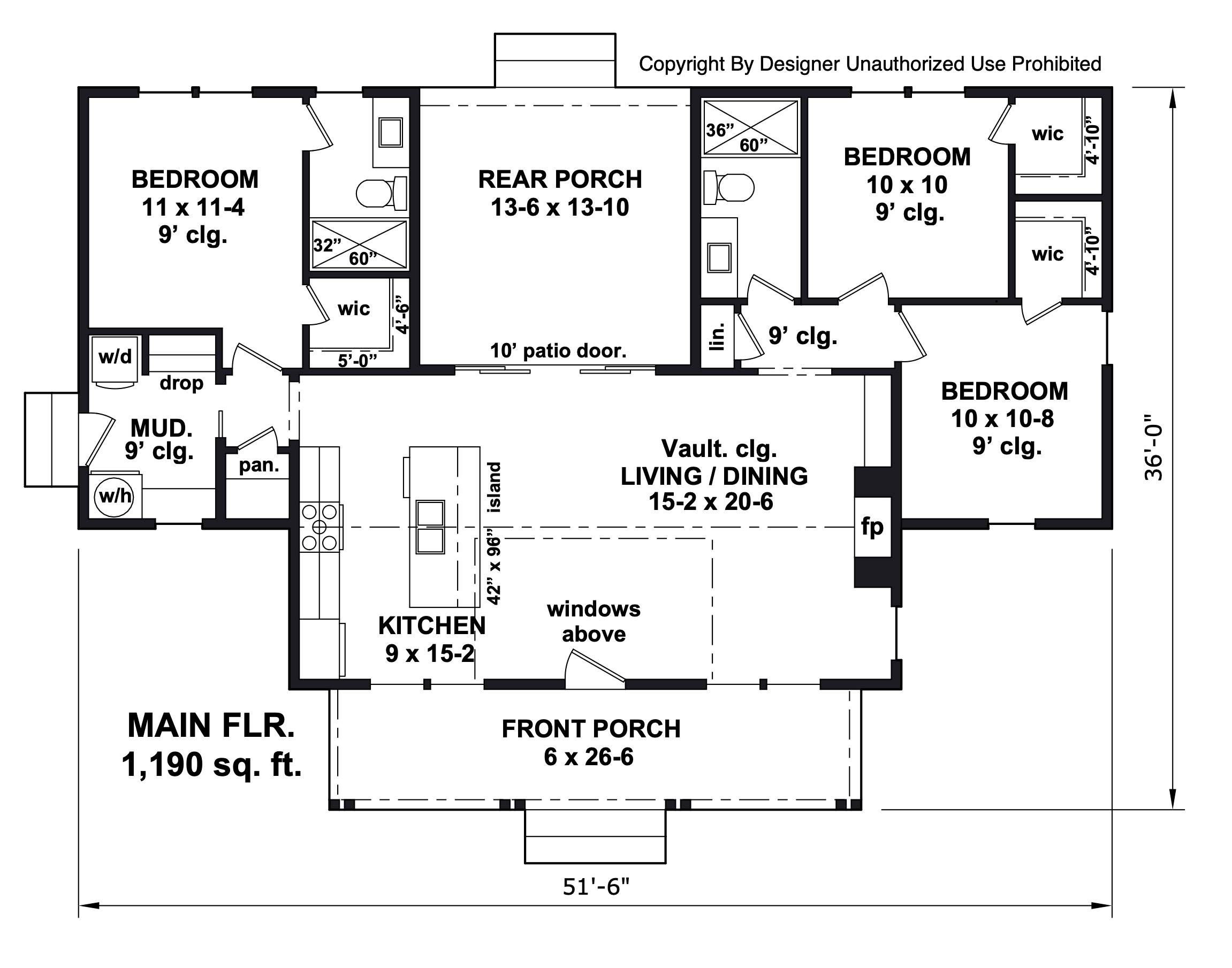
Click to Zoom In on Floor Plan
 
About House Plan 11363:
Plan 11363 is a farmhouse-inspired cottage that offers a well-organized, open layout designed for today’s lifestyles. The vaulted living and dining area serves as the home’s bright central hub, anchored by a fireplace and surrounded by large windows that fill the space with natural light. The kitchen includes a large island ideal for casual dining and entertaining, along with a nearby pantry for added storage. Three bedrooms are thoughtfully arranged—the primary suite enjoys a walk-in closet and private bath, while two secondary bedrooms, each with their own walk-in closets, share a full bathroom. Sliding doors lead to a rear covered porch that’s perfect for outdoor relaxation, and a practical mudroom off the kitchen includes a washer and dryer, storage cubbies, and the home’s water heater, all designed to keep the living areas clutter-free. Plan 11363 balances farmhouse charm with modern convenience in a comfortable single-level home.
House Plan Pricing
STEP 1 Select Your Package

PDF Single Build


Digital plans emailed to you in PDF format that allows for printing copies and sharing electronically with contractors, subs, decorators, and more. This package includes a license to build the home one time.

PDF Single Build $1,725
Most recommended package

5 Printed Sets


Five Printed Sets of Residential Construction Drawings are typically 24” x 36” documents and come with a license to construct a single residence shipped to a physical address. Keep in mind PDF Plan Packages are our most popular choice which allows you to print as many copies as you need and to electronically send files to your builder, subcontractors, etc.

5 Printed Sets $1,925
Five printed sets of house plans

8 Printed Sets


Eight Printed Sets of Construction Drawings, typically 24” x 36” documents, with a license to construct a single residence shipped to your physical address. PDF Plan Packages are our most popular choice which allows you to print as many copies as you need and to electronically send files to your builder, subcontractors, bank/mortgage reps, material stores, decorators and more.

8 Printed Sets $2,025
Eight printed sets of house plans

5 Printed Sets + PDF


Includes 5 physical printed blueprints shipped and delivered within 3-5 business days and a copyright release license to construct one home and to make copies. A complimentary PDF plan set is also emailed within 1 business day for easy sharing and local printing. 

5 Printed Sets + PDF $2,025
5 Printed Sets + PDF

CAD + PDF Single Build


This plan package is created in AutoCAD and delivered in .DWG format. CAD files are intended for use by design professionals, structural engineers, and builders to update plans for local building codes or to make revisions based on specific needs, lot requirements, and budget considerations. A complimentary PDF copy is included with this package for reference. CAD packages are delivered within 1 to 2 business days.
 
This package also comes with a copyright release for making revisions and printing unlimited copies.

For details on the specific CAD program used, please refer to the PLAN DETAILS section located above the floor plan on each plan page.

CAD + PDF Single Build $2,450
2D electronic editable computer files
STEP 2 Need To Reverse This Plan?
STEP 3 CHOOSE YOUR FOUNDATION
STEP 4 OPTIONAL ADD-ONS
Subtotal:
$1725
FREE SHIPPING
 
Plan Details
See All Details
Finished Square Footage
1,190 Sq. Ft.
Main Level:
1,190 Sq. Ft.
Total:
Room Details
3
Bedrooms:
2
Full Baths:
General House Information
1
Number of Stories:
51' 6"
Width:
36' 0"
Depth:
Single
Dwelling Number:
None
Bonus Access:
Unfinished Square Footage
GARAGE
0
Garage Size:
Exterior Style
Bungalow
Cottage
Country
Farmhouse
Modern Farmhouse
Ranch
Collections
Affordable
Budget
Empty Nester
First Home
Kitchens
Primary Suites
Open Floor Plan
Split Bedroom
Foundation
Crawl Space
Slab Foundation
Framing Information
Truss
Roof Framing:
2x6
Exterior Wall Framing:
Roof Pitch
9/12
Primary:
Insulation (R)
House And Ceiling Heights
9
First Floor Ceiling:
24' 0"
Maximum House Height:
Key Features
Covered Front Porch
Covered Rear Porch
Fireplace
Great Room
Kitchen Island
Laundry 1st Fl
Primary Bdrm Main Floor
Mud Room
Open Floor Plan
Peninsula / Eating Bar
Split Bedrooms
Suited for corner lot
Vaulted Great Room/Living
Walk-in Closet
Walk-in Pantry

Our Guarantees

  • Only the highest quality plans
  • Int’l Residential Code Compliant
  • Full structural details on all plans
  • Best plan price guarantee
  • Free modification Estimates
  • Builder-ready construction drawings
  • Expert advice from leading designers
  •  PDFs NOW!™ plans in minutes
  • 100% satisfaction guarantee
  • Free Home Building Organizer