20% off ALL House Plans Sitewide
20% off ALL House Plans Sitewide

House Plan: DFD-11364

See All 4 Photos > (photographs may reflect modified homes)
© copyright by designer
SQ FT
1,190
BEDS
3
BATHS
2
STORIES
1
CARS
0
HOUSE PLANS SALE 
START AT  $1,380.00
For questions and help, live chat, email or call us at 877-895-5299
Floor Plans
Click to Zoom In on Floor Plan
 
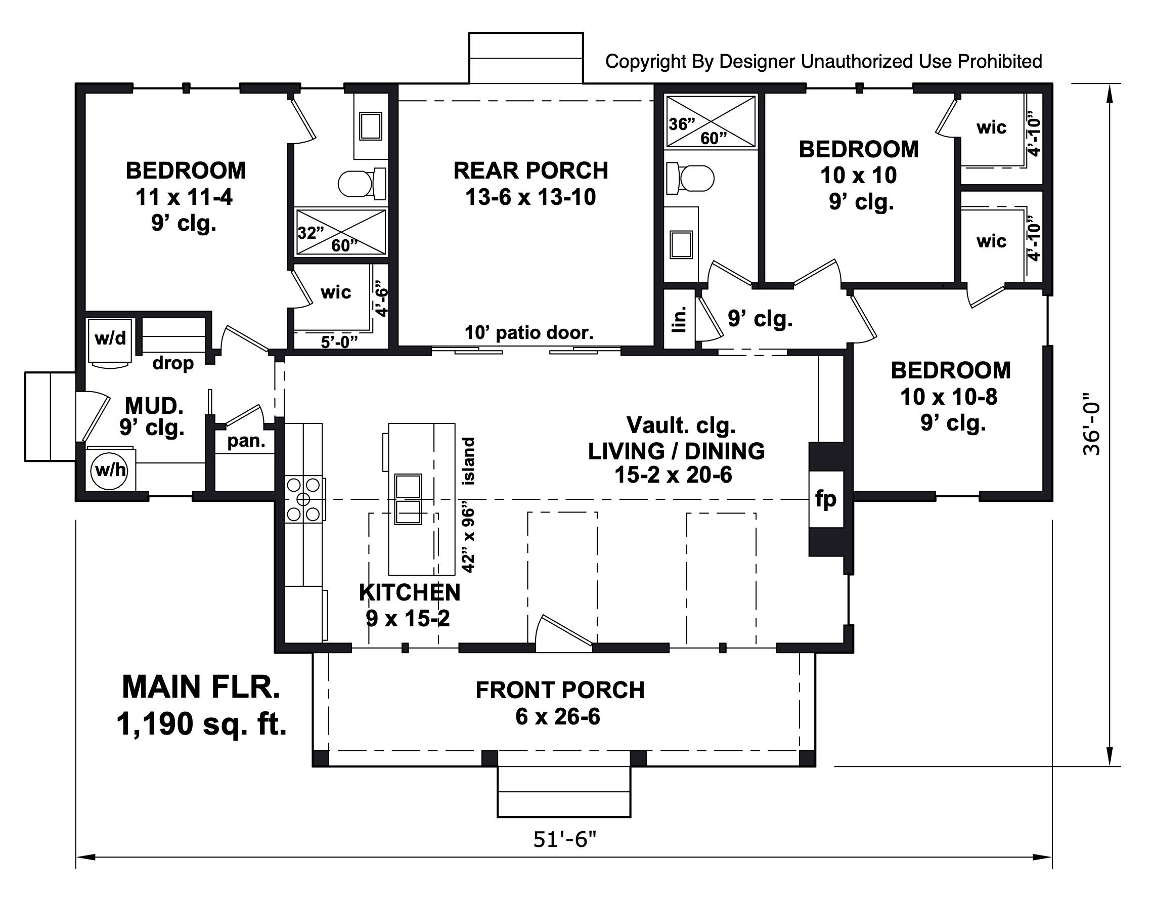
About House Plan 11364:
House Plan 11364 is a charming farmhouse-style cottage that maximizes space and comfort. The vaulted living and dining room serves as the heart of the home, where expansive windows and a fireplace create a bright, welcoming atmosphere. The kitchen sits just steps away, with a large island that doubles as a prep space and dining hub, plus a walk-in pantry for added storage. A sliding patio door opens to a covered porch, making outdoor living effortless. The primary suite includes a walk-in closet and easy access to a full bath, while two additional bedrooms—each with their own walk-in closets—are located near a second bathroom. Completing the plan is a mudroom with washer and dryer, storage cubbies, and the home’s water heater, tucked neatly out of sight. This plan offers an efficient, family-friendly design with timeless farmhouse character.
House Plan Pricing
STEP 1 Select Your Package

PDF Single Build


Digital plans emailed to you in PDF format that allows for printing copies and sharing electronically with contractors, subs, decorators, and more. This package includes a license to build the home one time.

PDF Single Build $1,725
Most recommended package

5 Printed Sets


Five Printed Sets of Residential Construction Drawings are typically 24” x 36” documents and come with a license to construct a single residence shipped to a physical address. Keep in mind PDF Plan Packages are our most popular choice which allows you to print as many copies as you need and to electronically send files to your builder, subcontractors, etc.

5 Printed Sets $1,925
Five printed sets of house plans

8 Printed Sets


Eight Printed Sets of Construction Drawings, typically 24” x 36” documents, with a license to construct a single residence shipped to your physical address. PDF Plan Packages are our most popular choice which allows you to print as many copies as you need and to electronically send files to your builder, subcontractors, bank/mortgage reps, material stores, decorators and more.

8 Printed Sets $2,025
Eight printed sets of house plans

5 Printed Sets + PDF


Digital plan emailed to you in PDF format that allows for printing copies on a home printer or local print shop and sharing with contractors, subs, decorators, and more. PLUS five printed sets shipped and delivered 3-5 business days.

5 Printed Sets + PDF $2,025
Digital plans plus 5 printed sets

CAD + PDF Single Build


CAD files are a complete set of construction drawings delivered electronically. They can be used for any type of modification—including major design changes and engineering—and include a release granting permission to modify the plan. Most CAD plan orders are emailed the same or next business day.
 
This package also comes with a PDF set of plans and a copyright release for making modifications and printing unlimited copies.
 
CAD files are provided in .dwg format. For details on the specific CAD program used, please refer to the PLAN DETAILS section located above the floor plan on each plan’s page.

CAD + PDF Single Build $2,450
2D electronic editable computer files
STEP 2 Need To Reverse This Plan?
STEP 3 CHOOSE YOUR FOUNDATION
STEP 4 OPTIONAL ADD-ONS
Subtotal:
$1725
FREE SHIPPING
 
Plan Details
See All Details
Finished Square Footage
1,190 Sq. Ft.
Main Level:
1,190 Sq. Ft.
Total:
Room Details
3
Bedrooms:
2
Full Baths:
General House Information
1
Number of Stories:
51' 6"
Width:
36' 0"
Depth:
Single
Dwelling Number:
None
Bonus Access:
Unfinished Square Footage
GARAGE
0
Garage Size:
Exterior Style
Cottage
Country
Craftsman
Farmhouse
Modern Farmhouse
Ranch
Traditional
Collections
Affordable
Budget
Empty Nester
First Home
Kitchens
Primary Suites
Open Floor Plan
Split Bedroom
Foundation
Crawl Space
Slab Foundation
Framing Information
Truss
Roof Framing:
2x6
Exterior Wall Framing:
Roof Pitch
9/12
Primary:
Insulation (R)
Key Features
Covered Front Porch
Covered Rear Porch
Fireplace
Great Room
Kitchen Island
Laundry 1st Fl
Primary Bdrm Main Floor
Mud Room
Open Floor Plan
Peninsula / Eating Bar
Split Bedrooms
Suited for corner lot
Vaulted Great Room/Living
Walk-in Closet
Walk-in Pantry

Our Guarantees

  • Only the highest quality plans
  • Int’l Residential Code Compliant
  • Full structural details on all plans
  • Best plan price guarantee
  • Free modification Estimates
  • Builder-ready construction drawings
  • Expert advice from leading designers
  •  PDFs NOW!™ plans in minutes
  • 100% satisfaction guarantee
  • Free Home Building Organizer