House Plan: DFD-11385

See All 8 Photos > (photographs may reflect modified homes)
© copyright by designer
SQ FT
3,680
BEDS
5
BATHS
3.5
STORIES
2
CARS
2
PLANS FROM $1,395
For questions and help, live chat, email or call us at 877-895-5299
Floor Plans
Click to Zoom In on Floor Plan
 
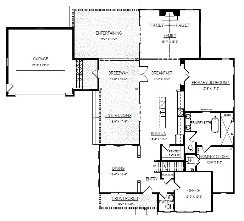
About House Plan 11385:
If you need a large farmhouse for your growing family, give House Plan 11385 a try! This home offers 3,600 square feet with five bedrooms and three-and-a-half bathrooms across its two-story layout. The main level has a traditional feel with an office and a formal dining room flanking the foyer, the island kitchen beside a breakfast area, and a vaulted living area tucked away in back. There's also a luxurious five-piece primary suite with its own laundry in the walk-in closet as well as ample outdoor space on the deck that connects the house to the two-car garage. Upstairs, you'll find another primary suite with a four-piece bath, three bedrooms that share a four-piece hall bath, and the laundry room spread around the loft. As you can imagine, this design is perfect for large families and hosting!
House Plan Pricing
STEP 1 Select Your Package

PDF Single Build


Digital plans emailed to you in PDF format that allows for printing copies and sharing electronically with contractors, subs, decorators, and more. This package includes a license to build the home one time.

PDF Single Build $1,395
Most recommended package

CAD + PDF Single Build


This plan package is created in AutoCAD and delivered in .DWG format. CAD files are intended for use by design professionals, structural engineers, and builders to update plans for local building codes or to make revisions based on specific needs, lot requirements, and budget considerations. A complimentary PDF copy is included with this package for reference. CAD packages are delivered within 1 to 2 business days.
 
This package also comes with a copyright release for making revisions and printing unlimited copies.

For details on the specific CAD program used, please refer to the PLAN DETAILS section located above the floor plan on each plan page.

CAD + PDF Single Build $1,595
2D electronic editable computer files

5 Printed Sets + PDF


Includes 5 physical printed blueprint sets, shipped free via UPS within the U.S. Printed sets ship within 1 business day and are delivered within 3 – 5 business days. A complimentary PDF plan set is also emailed within 1 business day for easy sharing and local printing. These plans may be used to construct one home.

5 Printed Sets + PDF $1,795
5 Printed Sets + PDF

PDF Unlimited Build


Digital plans with an unlimited build license emailed in PDF format, that allows for printing copies on a home printer or local print shop and sharing with contractors, subs, decorators and more 

PDF Unlimited Build $1,895
Digital plans including unlimited build license

CAD + PDF Unlimited Build


This plan package is created in AutoCAD and delivered in .DWG format. CAD files are intended for use by design professionals, structural engineers, and builders to update plans for local building codes or to make revisions based on specific needs, lot requirements, and budget considerations. A complimentary PDF copy is included with this package for reference. CAD packages are delivered within 1 to 2 business days.
 
This package also comes with a multi-use building license, granting permission to construct the home an unlimited number of times, along with a copyright release for making revisions and printing unlimited copies.
 
For details on the specific CAD program used, please refer to the PLAN DETAILS section located above the floor plan on each plan page.

CAD + PDF Unlimited Build $2,095
2D electronic editable computer files
STEP 2 Need To Reverse This Plan?
STEP 3 CHOOSE YOUR FOUNDATION
STEP 4 OPTIONAL ADD-ONS
Subtotal:
$1395
FREE SHIPPING
 
Plan Details
See All Details
Finished Square Footage
2,000 Sq. Ft.
Main Level:
1,680 Sq. Ft.
Upper Level:
3,680 Sq. Ft.
Total:
Room Details
5
Bedrooms:
3
Full Baths:
1
Half Baths:
General House Information
2
Number of Stories:
74' 0"
Width:
66' 0"
Depth:
Single
Dwelling Number:
None
Bonus Access:
Unfinished Square Footage
574 Sq. Ft.
Garage:
95 Sq. Ft.
Front Porch:
700 Sq. Ft.
Rear Porch:
GARAGE
Side
Garage Location:
2
Garage Size:
Exterior Style
Farmhouse
Modern Farmhouse
Traditional
Collections
Luxury
Primary Suites
Open Floor Plan
Outdoor Living
Split Bedroom
Foundation
Crawl Space
Framing Information
Combination
Roof Framing:
2x4
Exterior Wall Framing:
Roof Pitch
5/12
Primary:
10/12
Secondary:
Insulation (R)
House And Ceiling Heights
9
First Floor Ceiling:
8
Second Floor Ceiling:
29' 0"
Maximum House Height:
Key Features
2 Primary Suites
Breezeway
Covered Front Porch
Deck
Detached
Dining Room
Double Vanity Sink
Family Room
Family Style
Fireplace
Formal LR
Foyer
Front-entry
Home Office
Kitchen Island
Laundry 1st Fl
Laundry 2nd Fl
Loft / Balcony
Primary Bdrm Main Floor
Primary Bdrm Upstairs
Nook / Breakfast Area
Rear Porch
Separate Tub and Shower
Split Bedrooms
Walk-in Closet
Walk-in Pantry

Our Guarantees

  • Only the highest quality plans
  • Int’l Residential Code Compliant
  • Full structural details on all plans
  • Best plan price guarantee
  • Free modification Estimates
  • Builder-ready construction drawings
  • Expert advice from leading designers
  •  PDFs NOW!™ plans in minutes
  • 100% satisfaction guarantee
  • Free Home Building Organizer