House Plan: DFD-11400

See All 12 Photos > (photographs may reflect modified homes)
© copyright by designer
SQ FT
2,905
BEDS
4
BATHS
2.5
STORIES
2
CARS
2
PLANS FROM $1,395
For questions and help, live chat, email or call us at 877-895-5299
Floor Plans
Click to Zoom In on Floor Plan
 
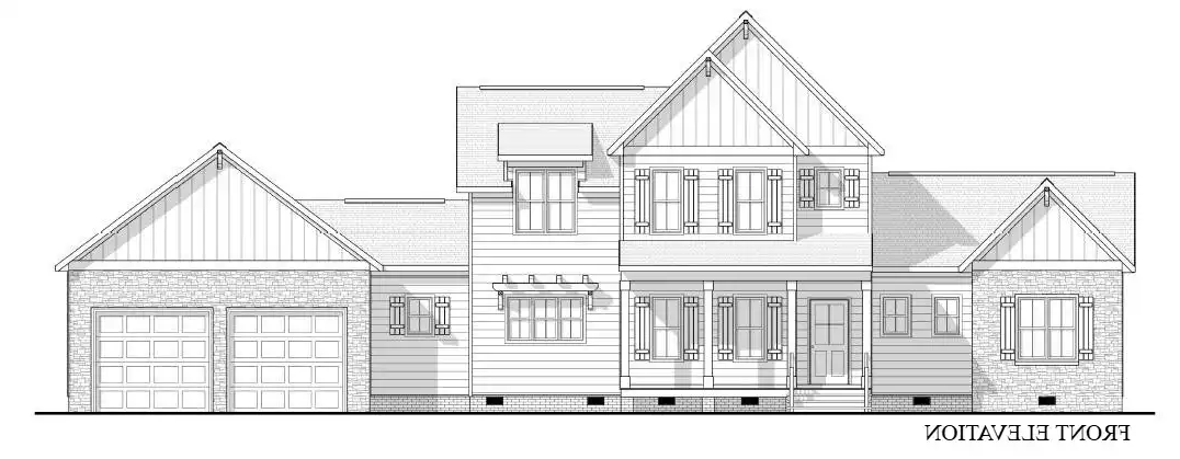
About House Plan 11400:
House Plan 11400 blends timeless farmhouse design with a versatile family layout. With 2,905 sq. ft. of living space, this home features 4 bedrooms and 2.5 bathrooms across two stories. The main level highlights a large open kitchen with a center island and butler’s pantry, a breakfast nook, and a warm family room that flows seamlessly together. A spacious primary suite is also on the first floor, complete with a luxurious bath offering a soaking tub, walk-in shower, dual vanities, and a walk-in closet. Upstairs, three additional bedrooms, a full bathroom, a loft, and a convenient laundry room provide comfort for family and guests alike. A front porch adds curb appeal while the rear porch extends living outdoors. This farmhouse plan is perfect for homeowners seeking open-concept living with practical details for everyday life.
House Plan Pricing
STEP 1 Select Your Package

5 Printed Sets + PDF


Includes 5 physical printed blueprints shipped and delivered within 3-5 business days and a copyright release license to construct one home and to make copies. A complimentary PDF plan set is also emailed within 1 business day for easy sharing and local printing. 

5 Printed Sets + PDF $1,795
5 Printed Sets + PDF

PDF Single Build


Digital plans emailed to you in PDF format that allows for printing copies and sharing electronically with contractors, subs, decorators, and more. This package includes a license to build the home one time.

PDF Single Build $1,395
Most recommended package

PDF Unlimited Build


Digital plans with an unlimited build license emailed in PDF format, that allows for printing copies on a home printer or local print shop and sharing with contractors, subs, decorators and more 

PDF Unlimited Build $1,895
Digital plans including unlimited build license

CAD + PDF Single Build


This plan package is created in AutoCAD and delivered in .DWG format. CAD files are intended for use by design professionals, structural engineers, and builders to update plans for local building codes or to make revisions based on specific needs, lot requirements, and budget considerations. A complimentary PDF copy is included with this package for reference. CAD packages are delivered within 1 to 2 business days.
 
This package also comes with a copyright release for making revisions and printing unlimited copies.

For details on the specific CAD program used, please refer to the PLAN DETAILS section located above the floor plan on each plan page.

CAD + PDF Single Build $1,595
2D electronic editable computer files

CAD + PDF Unlimited Build


This plan package is created in AutoCAD and delivered in .DWG format. CAD files are intended for use by design professionals, structural engineers, and builders to update plans for local building codes or to make revisions based on specific needs, lot requirements, and budget considerations. A complimentary PDF copy is included with this package for reference. CAD packages are delivered within 1 to 2 business days.
 
This package also comes with a multi-use building license, granting permission to construct the home an unlimited number of times, along with a copyright release for making revisions and printing unlimited copies.
 
For details on the specific CAD program used, please refer to the PLAN DETAILS section located above the floor plan on each plan page.

CAD + PDF Unlimited Build $2,095
2D electronic editable computer files
STEP 2 Need To Reverse This Plan?
STEP 3 CHOOSE YOUR FOUNDATION
STEP 4 OPTIONAL ADD-ONS
Subtotal:
$1795
FREE SHIPPING
 
Plan Details
See All Details
Finished Square Footage
1,789 Sq. Ft.
Main Level:
1,116 Sq. Ft.
Upper Level:
2,905 Sq. Ft.
Total:
Room Details
4
Bedrooms:
2
Full Baths:
1
Half Baths:
General House Information
2
Number of Stories:
84' 0"
Width:
42' 0"
Depth:
Single
Dwelling Number:
Unfinished Square Footage
638 Sq. Ft.
Garage:
GARAGE
Front
Garage Location:
2
Garage Size:
Exterior Style
Farmhouse
Modern Farmhouse
Collections
Open Floor Plan
Foundation
Crawl Space
Framing Information
Truss
Roof Framing:
2x4
Exterior Wall Framing:
Roof Pitch
6/12
Primary:
12/12
Secondary:
Insulation (R)
House And Ceiling Heights
9
First Floor Ceiling:
8
Second Floor Ceiling:
32' 0"
Maximum House Height:
Key Features
Attached
Butler's Pantry
Dining Room
Double Vanity Sink
Family Room
Fireplace
Foyer
Front Porch
Kitchen Island
Laundry 2nd Fl
L-Shaped
Primary Bdrm Main Floor
Mud Room
Nook / Breakfast Area
Open Floor Plan
Pantry
Rear Porch
Separate Tub and Shower
Walk-in Closet

Our Guarantees

  • Only the highest quality plans
  • Int’l Residential Code Compliant
  • Full structural details on all plans
  • Best plan price guarantee
  • Free modification Estimates
  • Builder-ready construction drawings
  • Expert advice from leading designers
  •  PDFs NOW!™ plans in minutes
  • 100% satisfaction guarantee
  • Free Home Building Organizer