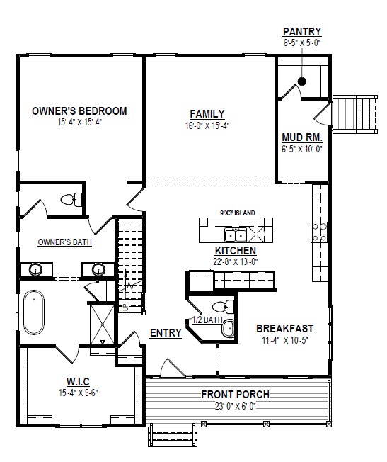
The Norberry is a stunning modern farmhouse offering 3,312 sq. ft. of living space across two stories. Inside, you’ll find a bright and open main floor featuring a gourmet kitchen with a large 9' x 3' island, a breakfast nook, and a family room perfect for entertaining. The first-floor primary suite is a private retreat with a spa-style bath that includes dual sinks, a soaking tub, a walk-in shower, and an oversized closet. Upstairs, four additional bedrooms each include their own walk-in closet, along with two full baths and a central loft for relaxation or study space. A second-floor laundry room adds convenience, while the mudroom and pantry keep everything organized. Outside, a charming front porch enhances curb appeal and offers a welcoming entry. This farmhouse design combines timeless style with modern functionality, making it ideal for family living.