15% off ALL House Plans Sitewide
15% off ALL House Plans Sitewide

House Plan: DFD-11402

See All 6 Photos > (photographs may reflect modified homes)
© copyright by designer
SQ FT
1,908
BEDS
3
BATHS
2
STORIES
1
CARS
2
HOUSE PLANS SALE 
START AT  $973.25
For questions and help, live chat, email or call us at 877-895-5299
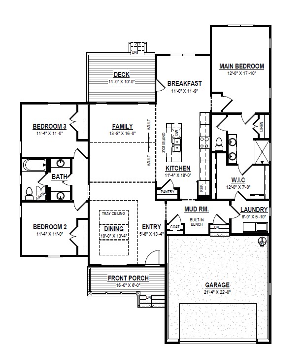
Floor Plans
Click to Zoom In on Floor Plan
 
About House Plan 11402:
With 1,908 square feet of heated space, this home blends comfort, warmth, and an easygoing flow that suits everyday family life. The vaulted ceilings in the great room create a bright, open center for gathering and relaxing. The kitchen features an island, pantry, and breakfast nook, offering both convenience and inviting spaces for meals throughout the day. A split-bedroom arrangement places the primary suite on its own side, complete with a spacious walk-in closet and double vanity. The foyer, mud room, and first-floor laundry bring helpful organization to the main level. A covered front porch welcomes guests, while the rear deck offers a relaxing outdoor retreat. With its gentle layout and cozy features, this home provides a wonderfully comfortable place to settle into daily living.
House Plan Pricing
STEP 1 Select Your Package

PDF Single Build


Digital plans emailed to you in PDF format that allows for printing copies and sharing electronically with contractors, subs, decorators, and more. This package includes a license to build the home one time.

PDF Single Build $1,145
Most recommended package

CAD + PDF Single Build


This plan package is created in AutoCAD and delivered in .DWG format. CAD files are intended for use by design professionals, structural engineers, and builders to update plans for local building codes or to make revisions based on specific needs, lot requirements, and budget considerations. A complimentary PDF copy is included with this package for reference. CAD packages are delivered within 1 to 2 business days.
 
This package also comes with a copyright release for making revisions and printing unlimited copies.

For details on the specific CAD program used, please refer to the PLAN DETAILS section located above the floor plan on each plan page.

CAD + PDF Single Build $1,345
2D electronic editable computer files

5 Printed Sets + PDF


Includes 5 physical printed blueprint sets, shipped free via UPS within the U.S. Printed sets ship within 1 business day and are delivered within 3 – 5 business days. A complimentary PDF plan set is also emailed within 1 business day for easy sharing and local printing. These plans may be used to construct one home.

5 Printed Sets + PDF $1,495
5 Printed Sets + PDF

PDF Unlimited Build


Digital plans with an unlimited build license emailed in PDF format, that allows for printing copies on a home printer or local print shop and sharing with contractors, subs, decorators and more 

PDF Unlimited Build $1,645
Digital plans including unlimited build license

CAD + PDF Unlimited Build


This plan package is created in AutoCAD and delivered in .DWG format. CAD files are intended for use by design professionals, structural engineers, and builders to update plans for local building codes or to make revisions based on specific needs, lot requirements, and budget considerations. A complimentary PDF copy is included with this package for reference. CAD packages are delivered within 1 to 2 business days.
 
This package also comes with a multi-use building license, granting permission to construct the home an unlimited number of times, along with a copyright release for making revisions and printing unlimited copies.
 
For details on the specific CAD program used, please refer to the PLAN DETAILS section located above the floor plan on each plan page.

CAD + PDF Unlimited Build $1,845
2D electronic editable computer files
STEP 2 Need To Reverse This Plan?
STEP 3 CHOOSE YOUR FOUNDATION
STEP 4 OPTIONAL ADD-ONS
Subtotal:
$1145
FREE SHIPPING
 
Plan Details
See All Details
Finished Square Footage
1,908 Sq. Ft.
Main Level:
1,908 Sq. Ft.
Total:
Room Details
3
Bedrooms:
2
Full Baths:
General House Information
1
Number of Stories:
52' 0"
Width:
66' 0"
Depth:
Single
Dwelling Number:
Unfinished Square Footage
96 Sq. Ft.
Front Porch:
140 Sq. Ft.
Deck:
GARAGE
Front
Garage Location:
2
Garage Size:
Exterior Style
Cottage
Country
Farmhouse
Modern Farmhouse
Collections
Open Floor Plan
Foundation
Crawl Space
Slab
Framing Information
Truss
Roof Framing:
2x4
Exterior Wall Framing:
Roof Pitch
9/12
Primary:
10/12
Secondary:
Insulation (R)
House And Ceiling Heights
9
First Floor Ceiling:
24' 0"
Maximum House Height:
Key Features
Attached
Deck
Dining Room
Double Vanity Sink
Family Room
Foyer
Front Porch
Kitchen Island
Laundry 1st Fl
Primary Bdrm Main Floor
Mud Room
Nook / Breakfast Area
Pantry
Split Bedrooms
Vaulted Ceilings
Vaulted Great Room/Living
Walk-in Closet

Our Guarantees

  • Only the highest quality plans
  • Int’l Residential Code Compliant
  • Full structural details on all plans
  • Best plan price guarantee
  • Free modification Estimates
  • Builder-ready construction drawings
  • Expert advice from leading designers
  •  PDFs NOW!™ plans in minutes
  • 100% satisfaction guarantee
  • Free Home Building Organizer