15% off ALL House Plans Sitewide
15% off ALL House Plans Sitewide

House Plan: DFD-11446

See All 5 Photos > (photographs may reflect modified homes)
© copyright by designer
SQ FT
4,913
BEDS
4
BATHS
4
STORIES
2
CARS
3
HOUSE PLANS SALE 
START AT  $1,232.50
For questions and help, live chat, email or call us at 877-895-5299
Floor Plans
Click to Zoom In on Floor Plan
 
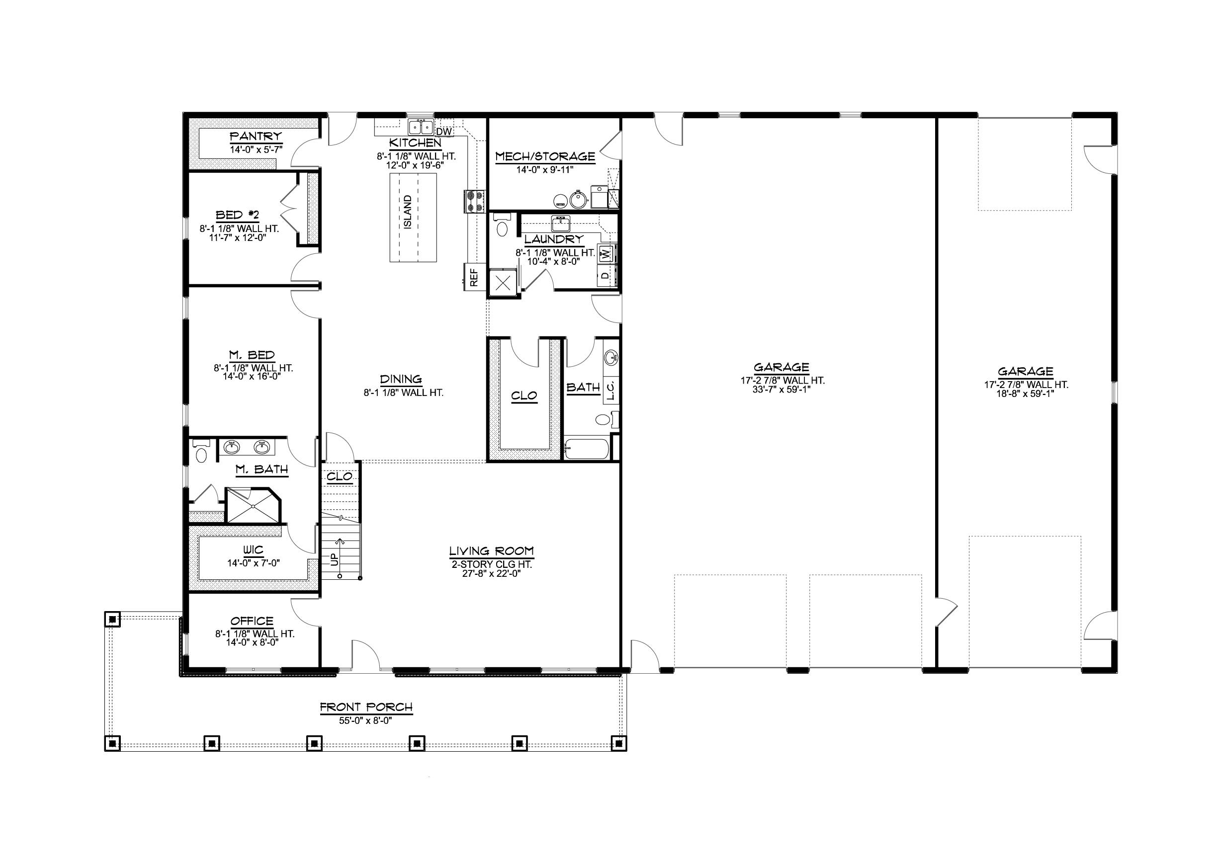
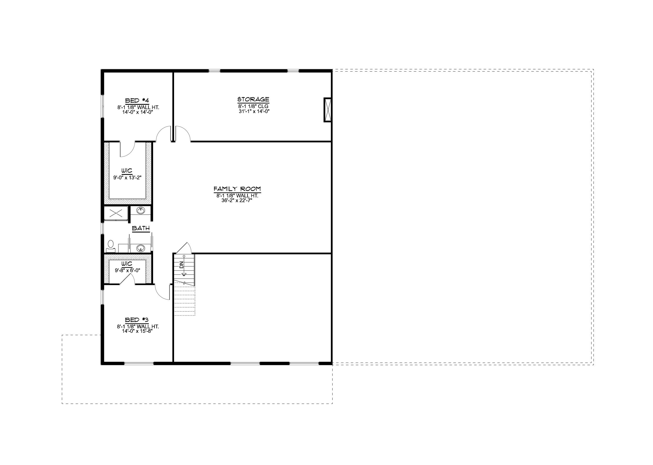
About House Plan 11446:
House Plan 11446 delivers the perfect mix of function and style in a 4,913 sq. ft. barndominium layout. This home offers 4 bedrooms and 4 bathrooms, including a luxurious main-floor primary suite with a spa-like bath and expansive walk-in closet. The open-concept living space highlights a soaring two-story great room, dining area, and gourmet kitchen with a walk-in pantry. Upstairs, two bedrooms share a full bath and connect to a spacious family room, while storage rooms keep the home organized. An additional main-floor bedroom adds versatility for guests or family. The oversized garage includes space for multiple vehicles plus a dedicated RV bay, making it ideal for families with recreational needs. With its bold exterior and functional interior flow, House Plan 11446 is designed to impress.
House Plan Pricing
STEP 1 Select Your Package

PDF Single Build


Digital plans emailed to you in PDF format that allows for printing copies and sharing electronically with contractors, subs, decorators, and more. This package includes a license to build the home one time.

PDF Single Build $1,450
Most recommended package

5 Printed Sets + PDF


Includes 5 physical printed blueprints shipped and delivered within 3-5 business days and a copyright release license to construct one home and to make copies. A complimentary PDF plan set is also emailed within 1 business day for easy sharing and local printing. 

5 Printed Sets + PDF $1,800
5 Printed Sets + PDF

PDF Unlimited Build


Digital plans with an unlimited build license emailed in PDF format, that allows for printing copies on a home printer or local print shop and sharing with contractors, subs, decorators and more 

PDF Unlimited Build $2,050
Digital plans including unlimited build license

CAD + PDF Single Build


This plan package is created in AutoCAD and delivered in .DWG format. CAD files are intended for use by design professionals, structural engineers, and builders to update plans for local building codes or to make revisions based on specific needs, lot requirements, and budget considerations. A complimentary PDF copy is included with this package for reference. CAD packages are delivered within 1 to 2 business days.
 
This package also comes with a copyright release for making revisions and printing unlimited copies.

For details on the specific CAD program used, please refer to the PLAN DETAILS section located above the floor plan on each plan page.

CAD + PDF Single Build $2,700
2D electronic editable computer files

CAD + PDF Unlimited Build


This plan package is created in AutoCAD and delivered in .DWG format. CAD files are intended for use by design professionals, structural engineers, and builders to update plans for local building codes or to make revisions based on specific needs, lot requirements, and budget considerations. A complimentary PDF copy is included with this package for reference. CAD packages are delivered within 1 to 2 business days.
 
This package also comes with a multi-use building license, granting permission to construct the home an unlimited number of times, along with a copyright release for making revisions and printing unlimited copies.
 
For details on the specific CAD program used, please refer to the PLAN DETAILS section located above the floor plan on each plan page.

CAD + PDF Unlimited Build $3,250
2D electronic editable computer files
STEP 2 Need To Reverse This Plan?
STEP 3 CHOOSE YOUR FOUNDATION
STEP 4 OPTIONAL ADD-ONS
Subtotal:
$1450
FREE SHIPPING
 
Plan Details
See All Details
Finished Square Footage
2,820 Sq. Ft.
Main Level:
2,093 Sq. Ft.
Upper Level:
4,913 Sq. Ft.
Total:
Room Details
4
Bedrooms:
4
Full Baths:
General House Information
2
Number of Stories:
108' 0"
Width:
68' 0"
Depth:
Single
Dwelling Number:
Unfinished Square Footage
3180 Sq. Ft.
Garage:
463 Sq. Ft.
Porch:
GARAGE
Side
Garage Location:
3
Garage Size:
Exterior Style
Barndominium
Country
Craftsman
Modern Farmhouse
Collections
Kitchens
Open Floor Plan
Foundation
Basement
Crawlspace
Slab
Walkout
Framing Information
Truss
Roof Framing:
2x6
Exterior Wall Framing:
Roof Pitch
4/12
Primary:
5/12
Secondary:
Insulation (R)
19
Exterior Wall:
36
Ceiling:
House And Ceiling Heights
8
First Floor Ceiling:
8
Second Floor Ceiling:
27' 11"
Maximum House Height:
Key Features
2 Story Volume
Attached
Covered Front Porch
Double Vanity Sink
Family Room
Front-entry
Great Room
Home Office
Kitchen Island
Laundry 1st Fl
L-Shaped
Primary Bdrm Main Floor
Nook / Breakfast Area
Open Floor Plan
Oversized
Rear-entry
RV Garage
Storage Space
Suited for view lot
Walk-in Closet
Walk-in Pantry

Our Guarantees

  • Only the highest quality plans
  • Int’l Residential Code Compliant
  • Full structural details on all plans
  • Best plan price guarantee
  • Free modification Estimates
  • Builder-ready construction drawings
  • Expert advice from leading designers
  •  PDFs NOW!™ plans in minutes
  • 100% satisfaction guarantee
  • Free Home Building Organizer