20% off ALL House Plans Sitewide
20% off ALL House Plans Sitewide

House Plan: DFD-11475

See All 18 Photos > (photographs may reflect modified homes)
© copyright by designer
SQ FT
2,484
BEDS
3
BATHS
2.5
STORIES
2
CARS
3
HOUSE PLANS SALE 
START AT  $1,036.00
For questions and help, live chat, email or call us at 877-895-5299
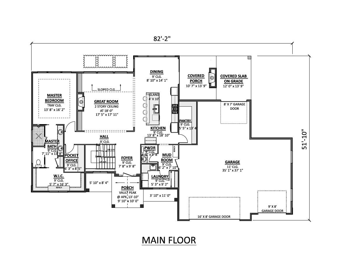
Floor Plans
Click to Zoom In on Floor Plan
 
About House Plan 11475:
Offering 2,478 square feet, this thoughtfully designed plan provides charm, function, and flexibility for today’s families. The open layout connects the great room, dining area, and kitchen, creating a comfortable setting for both entertaining and daily routines. The kitchen shines with its central island, butler’s pantry, and easy flow to the rear covered porch for outdoor meals. The main-level primary suite includes a spa-like bath and walk-in closet, while two additional bedrooms and a loft upstairs provide plenty of space for family or guests. A welcoming front porch adds curb appeal, while the mudroom and workshop keep things organized. With influences of Colonial, Farmhouse, and Southern style, this plan blends classic details with modern convenience. This home makes everyday living both easy and inviting.
House Plan Pricing
STEP 1 Select Your Package

PDF Single Build


Digital plans emailed to you in PDF format that allows for printing copies and sharing electronically with contractors, subs, decorators, and more. This package includes a license to build the home one time.

PDF Single Build $1,295
Most recommended package

5 Printed Sets + PDF


Includes 5 physical printed blueprint sets, shipped free via UPS within the U.S. Printed sets ship within 1 business day and are delivered within 3 – 5 business days. A complimentary PDF plan set is also emailed within 1 business day for easy sharing and local printing. These plans may be used to construct one home.

5 Printed Sets + PDF $1,545
5 Printed Sets + PDF

CAD + PDF Single Build


This plan package is created in AutoCAD and delivered in .DWG format. CAD files are intended for use by design professionals, structural engineers, and builders to update plans for local building codes or to make revisions based on specific needs, lot requirements, and budget considerations. A complimentary PDF copy is included with this package for reference. CAD packages are delivered within 1 to 2 business days.
 
This package also comes with a copyright release for making revisions and printing unlimited copies.

For details on the specific CAD program used, please refer to the PLAN DETAILS section located above the floor plan on each plan page.

CAD + PDF Single Build $2,095
2D electronic editable computer files

CAD + PDF Unlimited Build


This plan package is created in AutoCAD and delivered in .DWG format. CAD files are intended for use by design professionals, structural engineers, and builders to update plans for local building codes or to make revisions based on specific needs, lot requirements, and budget considerations. A complimentary PDF copy is included with this package for reference. CAD packages are delivered within 1 to 2 business days.
 
This package also comes with a multi-use building license, granting permission to construct the home an unlimited number of times, along with a copyright release for making revisions and printing unlimited copies.
 
For details on the specific CAD program used, please refer to the PLAN DETAILS section located above the floor plan on each plan page.

CAD + PDF Unlimited Build $2,595
2D electronic editable computer files
STEP 2 Need To Reverse This Plan?
STEP 3 CHOOSE YOUR FOUNDATION
STEP 4 OPTIONAL ADD-ONS
Subtotal:
$1295
FREE SHIPPING
 
Plan Details
See All Details
Finished Square Footage
1,811 Sq. Ft.
Main Level:
673 Sq. Ft.
Upper Level:
1,608 Sq. Ft.
Lower Level:
2,484 Sq. Ft.
Total:
Room Details
3
Bedrooms:
2
Full Baths:
1
Half Baths:
General House Information
2
Number of Stories:
82' 2"
Width:
51' 10"
Depth:
Single
Dwelling Number:
Unfinished Square Footage
1095 Sq. Ft.
Garage:
190 Sq. Ft.
Front Porch:
315 Sq. Ft.
Rear Porch:
GARAGE
Front
Garage Location:
3
Garage Size:
Exterior Style
Cape Cod
Colonial
Country
Craftsman
Farmhouse
Southern
Traditional
Collections
Affordable
First Home
Luxury
Open Floor Plan
Split Bedroom
Foundation
Basement
Crawl Space
Slab
Walkout Basement
Framing Information
Truss
Roof Framing:
2x4
Exterior Wall Framing:
Roof Pitch
10/12
Primary:
9/12
Secondary:
Insulation (R)
House And Ceiling Heights
9
First Floor Ceiling:
8
Second Floor Ceiling:
29' 8"
Maximum House Height:
Key Features
Attached
Butler's Pantry
Country Kitchen
Covered Rear Porch
Dining Room
Double Vanity Sink
Fireplace
Foyer
Front Porch
Front-entry
Great Room
Home Office
Kitchen Island
Laundry 1st Fl
Loft / Balcony
L-Shaped
Primary Bdrm Main Floor
Mud Room
Open Floor Plan
Peninsula / Eating Bar
Split Bedrooms
Suited for corner lot
Walk-in Closet
Workshop

Our Guarantees

  • Only the highest quality plans
  • Int’l Residential Code Compliant
  • Full structural details on all plans
  • Best plan price guarantee
  • Free modification Estimates
  • Builder-ready construction drawings
  • Expert advice from leading designers
  •  PDFs NOW!™ plans in minutes
  • 100% satisfaction guarantee
  • Free Home Building Organizer