20% off ALL House Plans Sitewide

House Plan: DFD-11506

See All 6 Photos > (photographs may reflect modified homes)
© copyright by designer
SQ FT
2,322
BEDS
4
BATHS
2.5
STORIES
2
CARS
0
HOUSE PLANS SALE 
START AT  $1,000.00
For questions and help, live chat, email or call us at 877-895-5299
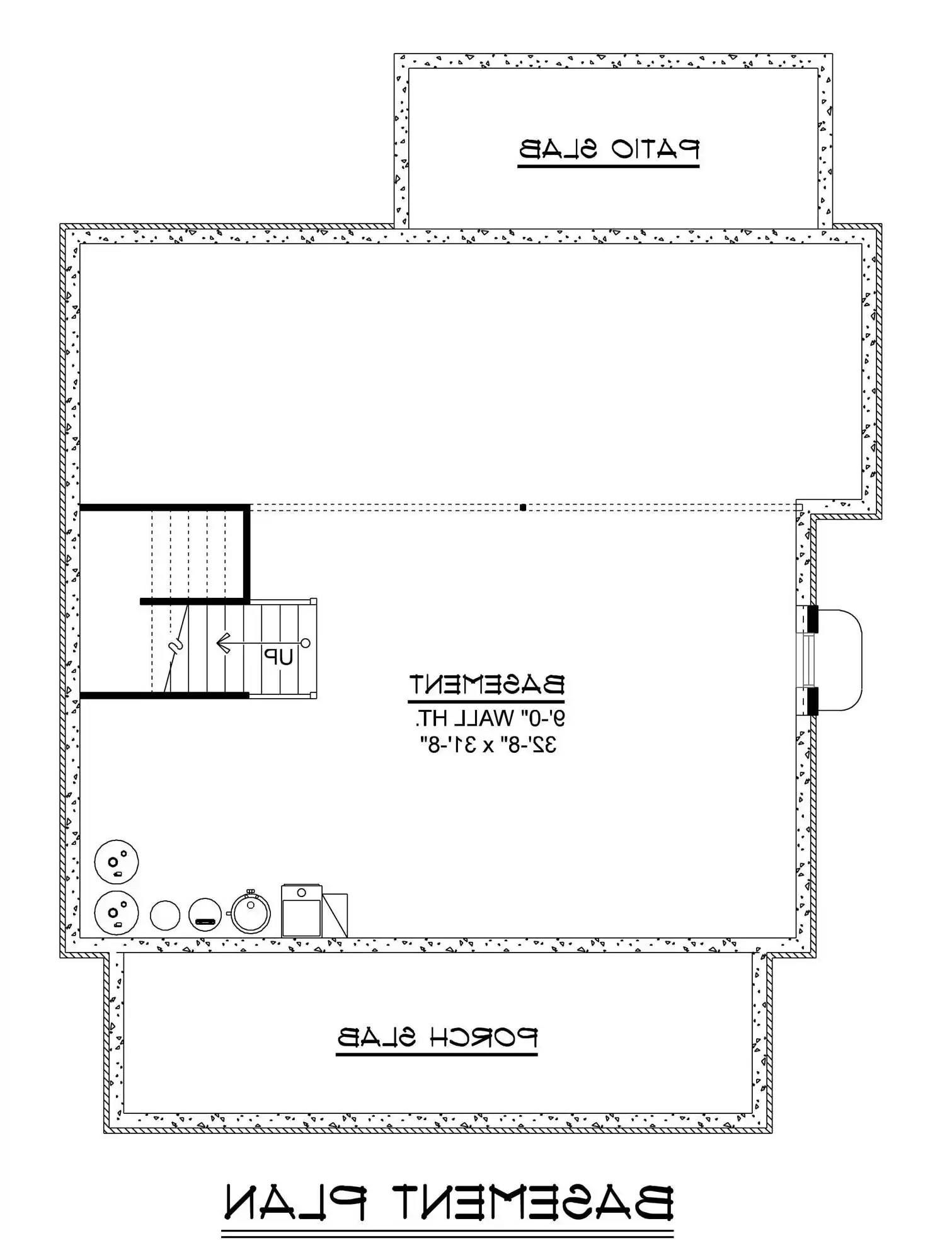
Floor Plans
Click to Zoom In on Floor Plan
 
About House Plan 11506:
House Plan 11506 is a lovely two-story traditional home with 2,322 square feet, four bedrooms, and two-and-a-half baths. The main level includes the common areas, including the living room and the eat-in kitchen with the island kitchen beside dining space. There's also an office in front and the laundry room and powder room in the back hallway. The upstairs bedrooms include a three-piece primary suite and three bedrooms that share a divided four-piece hall bath. 
House Plan Pricing
STEP 1 Select Your Package

PDF Single Build


Digital plans emailed to you in PDF format that allows for printing copies and sharing electronically with contractors, subs, decorators, and more. This package includes a license to build the home one time.

PDF Single Build $1,250
Most recommended package

5 Printed Sets + PDF


Includes 5 physical printed blueprint sets, shipped free via UPS within the U.S. Printed sets ship within 1 business day and are delivered within 3 – 5 business days. A complimentary PDF plan set is also emailed within 1 business day for easy sharing and local printing. These plans may be used to construct one home.

5 Printed Sets + PDF $1,600
5 Printed Sets + PDF

PDF Unlimited Build


Digital plans with an unlimited build license emailed in PDF format, that allows for printing copies on a home printer or local print shop and sharing with contractors, subs, decorators and more 

PDF Unlimited Build $1,850
Digital plans including unlimited build license

CAD + PDF Single Build


This plan package is created in AutoCAD and delivered in .DWG format. CAD files are intended for use by design professionals, structural engineers, and builders to update plans for local building codes or to make revisions based on specific needs, lot requirements, and budget considerations. A complimentary PDF copy is included with this package for reference. CAD packages are delivered within 1 to 2 business days.
 
This package also comes with a copyright release for making revisions and printing unlimited copies.

For details on the specific CAD program used, please refer to the PLAN DETAILS section located above the floor plan on each plan page.

CAD + PDF Single Build $2,300
2D electronic editable computer files

CAD + PDF Unlimited Build


This plan package is created in AutoCAD and delivered in .DWG format. CAD files are intended for use by design professionals, structural engineers, and builders to update plans for local building codes or to make revisions based on specific needs, lot requirements, and budget considerations. A complimentary PDF copy is included with this package for reference. CAD packages are delivered within 1 to 2 business days.
 
This package also comes with a multi-use building license, granting permission to construct the home an unlimited number of times, along with a copyright release for making revisions and printing unlimited copies.
 
For details on the specific CAD program used, please refer to the PLAN DETAILS section located above the floor plan on each plan page.

CAD + PDF Unlimited Build $2,850
2D electronic editable computer files
STEP 2 Need To Reverse This Plan?
STEP 3 CHOOSE YOUR FOUNDATION
STEP 4 OPTIONAL ADD-ONS
Subtotal:
$1250
FREE SHIPPING
 
Plan Details
See All Details
Finished Square Footage
1,161 Sq. Ft.
Main Level:
1,161 Sq. Ft.
Upper Level:
1,161 Sq. Ft.
Lower Level:
2,322 Sq. Ft.
Total:
Room Details
4
Bedrooms:
2
Full Baths:
1
Half Baths:
General House Information
2
Number of Stories:
37' 0"
Width:
49' 2"
Depth:
Single
Dwelling Number:
None
Bonus Access:
Unfinished Square Footage
248 Sq. Ft.
Front Porch:
166 Sq. Ft.
Deck:
GARAGE
0
Garage Size:
Exterior Style
Colonial
Cottage
Country
Traditional
Collections
Affordable
Budget
First Home
Kitchens
Vacation
Foundation
Basement
Crawl Space
Slab
Walkout
Framing Information
Truss
Roof Framing:
2x6
Exterior Wall Framing:
Roof Pitch
6/12
Primary:
3/12
Secondary:
Insulation (R)
19
Exterior Wall:
36
Interior Wall:
House And Ceiling Heights
9
First Floor Ceiling:
8
Second Floor Ceiling:
28' 2"
Maximum House Height:
Key Features
Country Kitchen
Covered Front Porch
Dining Room
Family Style
Formal LR
Home Office
Kitchen Island
Laundry 1st Fl
L-Shaped
Primary Bdrm Upstairs
None
Nook / Breakfast Area
Pantry
Rear Porch
Suited for narrow lot
Walk-in Closet

Our Guarantees

  • Only the highest quality plans
  • Int’l Residential Code Compliant
  • Full structural details on all plans
  • Best plan price guarantee
  • Free modification Estimates
  • Builder-ready construction drawings
  • Expert advice from leading designers
  •  PDFs NOW!™ plans in minutes
  • 100% satisfaction guarantee
  • Free Home Building Organizer