20% off ALL House Plans Sitewide
20% off ALL House Plans Sitewide

House Plan: DFD-11535

See All 5 Photos > (photographs may reflect modified homes)
© copyright by designer
SQ FT
2,041
BEDS
3
BATHS
2.5
STORIES
1
CARS
3
HOUSE PLANS SALE 
START AT  $1,000.00
For questions and help, live chat, email or call us at 877-895-5299
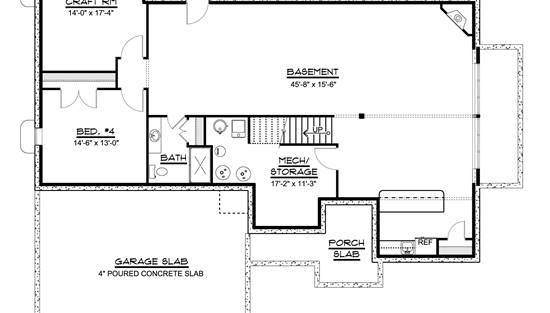
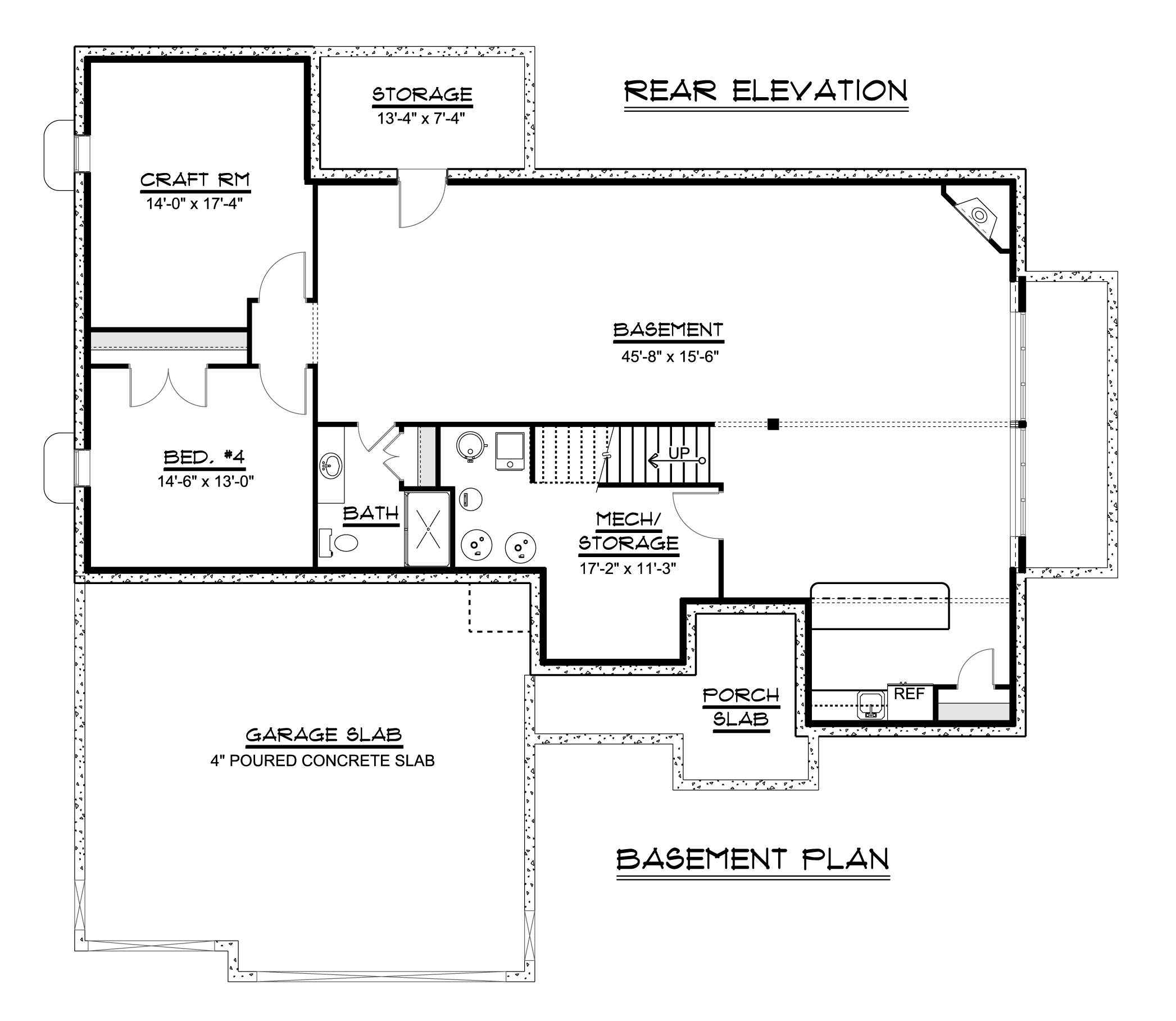
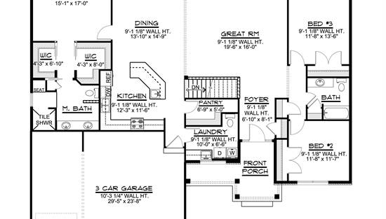
Floor Plans
Click to Zoom In on Floor Plan
 
About House Plan 11535:
House Plan 11535 is a lovely country-style ranch with a front-entry three-car garage that makes it perfect for many neighborhood lots. The 2,041-square-foot interior offers three bedrooms and two-and-a-half bathrooms in a split-bed layout. In the middle, the great room provides open-concept living space and a unique kitchen that connects to the walk-in pantry, the laundry/powder room, and the garage. Make sure not to miss the his and her walk-in closets in the primary suite, or all the potential afforded by the basement floor plan--yours for the finishing, if you want! 
House Plan Pricing
STEP 1 Select Your Package

PDF Single Build


Digital plans emailed to you in PDF format that allows for printing copies and sharing electronically with contractors, subs, decorators, and more. This package includes a license to build the home one time.

PDF Single Build $1,250
Most recommended package

5 Printed Sets + PDF


Digital plan emailed to you in PDF format that allows for printing copies on a home printer or local print shop and sharing with contractors, subs, decorators, and more. PLUS five printed sets shipped and delivered 3-5 business days.

5 Printed Sets + PDF $1,600
Digital plans plus 5 printed sets

PDF Unlimited Build


Digital plans with an unlimited build license emailed in PDF format, that allows for printing copies on a home printer or local print shop and sharing with contractors, subs, decorators and more 

PDF Unlimited Build $1,850
Digital plans including unlimited build license

CAD + PDF Single Build


CAD files are a complete set of construction drawings delivered electronically. They can be used for any type of modification—including major design changes and engineering—and include a release granting permission to modify the plan. Most CAD plan orders are emailed the same or next business day.
 
This package also comes with a PDF set of plans and a copyright release for making modifications and printing unlimited copies.
 
CAD files are provided in .dwg format. For details on the specific CAD program used, please refer to the PLAN DETAILS section located above the floor plan on each plan’s page.

CAD + PDF Single Build $2,300
2D electronic editable computer files

CAD + PDF Unlimited Build


CAD files are a complete set of construction drawings delivered electronically. They can be used for any type of modification—including major design changes and engineering—and include a release granting permission to modify the plan. Most CAD plan orders are emailed the same or next business day.
 
This package also comes with a PDF set of plans and a multi-use building license, granting permission to construct the home an unlimited number of times, along with a copyright release for making modifications and printing unlimited copies.
 
CAD files are provided in .dwg format. For details on the specific CAD program used, please refer to the PLAN DETAILS section located above the floor plan on each plan’s page.

CAD + PDF Unlimited Build $2,850
2D electronic editable computer files
STEP 2 Need To Reverse This Plan?
STEP 3 CHOOSE YOUR FOUNDATION
STEP 4 OPTIONAL ADD-ONS
Subtotal:
$1250
FREE SHIPPING
 
Plan Details
See All Details
Finished Square Footage
2,041 Sq. Ft.
Main Level:
2,041 Sq. Ft.
Lower Level:
2,041 Sq. Ft.
Total:
Room Details
3
Bedrooms:
2
Full Baths:
1
Half Baths:
General House Information
1
Number of Stories:
62' 0"
Width:
61' 0"
Depth:
Single
Dwelling Number:
None
Bonus Access:
Unfinished Square Footage
747 Sq. Ft.
Garage:
131 Sq. Ft.
Front Porch:
112 Sq. Ft.
Deck:
GARAGE
Front
Garage Location:
3
Garage Size:
Exterior Style
Country
Ranch
Traditional
Collections
Primary Suites
Open Floor Plan
Split Bedroom
Foundation
Basement
Crawl Space
Slab
Walkout
Framing Information
Truss
Roof Framing:
2x6
Exterior Wall Framing:
Roof Pitch
6/12
Primary:
Insulation (R)
19
Exterior Wall:
36
Ceiling:
House And Ceiling Heights
9
First Floor Ceiling:
18' 11"
Maximum House Height:
Key Features
Attached
Covered Front Porch
Covered Rear Porch
Double Vanity Sink
Foyer
Front-entry
Great Room
His and Hers Primary Closets
Kitchen Island
Laundry 1st Fl
L-Shaped
Primary Bdrm Main Floor
Open Floor Plan
Split Bedrooms
Walk-in Closet
Walk-in Pantry

Our Guarantees

  • Only the highest quality plans
  • Int’l Residential Code Compliant
  • Full structural details on all plans
  • Best plan price guarantee
  • Free modification Estimates
  • Builder-ready construction drawings
  • Expert advice from leading designers
  •  PDFs NOW!™ plans in minutes
  • 100% satisfaction guarantee
  • Free Home Building Organizer